查看完整案例


收藏

下载
KUN SHANG DESIGN
地址:中国|广州
Address: Guangzhou, China
项目:汇景新城龙熹山
properties for sale:Huijing new town
户型:平层
Unit type:Leveling
面积:160㎡
Acreage:160㎡
风格:现代风
Style: modern style
序言:
本案是一套160㎡的三室一厅现代风案例。设计师通过独特的设计与新奇的巧思,为业主打造一个富有艺术气息的理想之家。
客餐
厅
Living Room
通铺的瓷砖让空间在视觉上更开阔。无主灯的设计为室内带来柔和均匀的光线,在足够明亮的同时又保证了舒适。
沙发对面的装饰画其实是一台电视,电视窄窄的边框制作的非常像画框,平时关闭的时候就是一副装饰画,打开就可以正常作为电视使用。
厨房 Activity Room
大多数人一进门就会被这个设计独特的厨房惊艳到。厨房正面和侧面有两个玻璃推拉门,拉过来拼到一起,原本的开放的厨房就被封闭起来了,既满足了业主想要开放式厨房的想法,也满足了业主家人希望给厨房加门的期望。
厨房这的岛台设计也很有趣,前面是鞋柜,后边是放各种厨具的抽屉,不仅收纳空间非常大,岛台的台面也很宽敞,足够使用者在上面大展身手。
岩板繁复的花纹在整体简单大方的环境中,成为了恰到好处的点缀。
卧室 Bedroom
自带天然纹理的木质的地板,美观又舒适,自有一种温润之感。无主灯设计带来柔和的光线,让整个房间都显得十分温馨。通往阳台的门隐藏在墙壁中,不仅隐蔽,还十分美观。
多功能房 Multifunction room
多功能房的面积虽然不大却暗藏玄机,一张墨菲床的使用成功解决了房间面积小的难题。平时床收进侧面的柜子里,不占空间,可以将房间作为瑜伽房或健身房使用。需要的时候将床拉下来,又成了一间客房,十分的方便。
卫生间
Bedroom
卫生间的淋浴区与马桶做了一门到顶式的玻璃门,防止味道跑出来。并且在中间进行了隔断,同时使用也不会相互妨碍。一体式浴室柜,没有结合粘缝处的一体式台盆没有卫生死角。抽拉式水龙头易于清洁。收纳空间也很充足。同时因为面积够大,进门处还有一部分可以作为衣帽间。
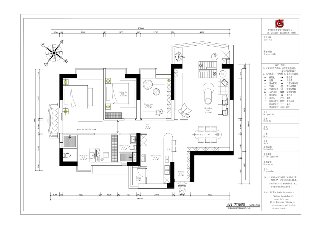
户型图 House type diagram
--
If you need to reprint, please indicate the
source.
图 | 坤尚设计
Figure | from kunshang design
E N D
客服
消息
收藏
下载
最近























