查看完整案例


收藏

下载
本项目是位于广东东莞品牌展厅,设计师以人们对于自然之美的追求为切入点,温度美学设计,运用柔和的色彩、舒缓的光线及温暖的材质打造空间的氛围。
设计师将展品与观者的交互关系作为塑造空间的依托,在结合产品天然属性的基础上不断提取设计概念,最终呈现在作品中。
01 SPATIAL 空 间
空间的边界感不仅仅是一种生理上的感受,更是一种心灵上的体验。它让我们明白,我们生活在一个有限的世界中,但这个世界却充满了无限的可能。
正是这种边界感,激发了我们对未知的探索和对美好生活的追求。
P. 01
P. 02
P. 03
P. 04
遵循去繁从简的态度,极具条理,于明暗之间,捕捉光影魅力。
P. 05
P. 06
02TIME
时 间
将时间的元素融入到空间设计中,壁龛的设计,光影在梯级上留下刻度,从而感受到了时间的流淌。
在这里,顾客可以放慢脚步,静心感受时间的韵律,让心灵得到片刻的宁静。
P. 07
P. 08
P. 09
P. 10
把大圆柱保留了毛坯的水泥,裸露的原始肌理藏着自由肆意嚣张,也是一种独一无二的美。与其他空间形成一种强烈的差异感,新与旧并置共生,带来鲜明而真实的自然美感。
P. 11
P. 12
P. 13
P. 14
简约并不意味着简单,而是在细节中寻求平衡与和谐。
因此,设计师将简约的设计理念融入到空间中,让空间焕发出独特的魅力。
P. 15
P. 16
P. 17
P. 18
P. 19
• 03
ORDER
秩 序
疏密有致的线条和艺术感的灯光设计相互呼应、相得益彰,共同营造出一个引人入胜、富有情感的空间环境,让人沉浸其中,感受到空间的深邃与魅力。
P. 20
P. 21
P. 22
空间中,线条布局既有规律又有变化,通过疏密有致的排列,形成了丰富多彩的空间结构。
P. 23
P. 24
P. 25
P. 26
动态感与节奏感,形成和谐平衡的建筑秩序。线条的延伸和交错、家具的布局、光线的投射以及阴影的形成,都在不断地营造着空间的动态美感。
P. 27
P. 28
P. 29
P. 30
• 04
UNBOUNDED
无界
在这个无界的空间里,设计师用设计创造出无限可能。
让空间变得无比灵活和多元,探索这个无界的空间,感受设计的无限可能。
P. 31
P. 32
P. 33
P. 34 大理石纹瓷砖的纹理独特且富有层次感,使得整个空间充满动感,如同一面艺术画卷。
P. 35
P. 36
皮质椅子紧挨着壁炉,仿佛在诉说着一段温馨的故事。
而背景中的灯光则为这个空间注入了柔和的氛围,温度与美学完美融合。
P. 37
P. 38
阳光透过窗户洒在墙上,形成了斑驳的光影,为这个空间带来了艺术感和舒适感。
P. 39
P. 40
P. 41
P. 42
P. 43
P. 44
P. 45
P. 46
从建筑的结构到灯光的布置,每一个细节都可以被精心设计和安排,以创造出一个与众不同的空间体验。
P. 47
P. 48
P. 49
• 05
ART 艺 术
楼梯的踏步采用悬挑式分离设计,营造轻盈通透感。
同时楼梯的色调与墙面一致,希望以一张白纸的状态,让顶部带有指向性,模拟太阳的灯光落在楼梯上。
P. 50
P. 51
P. 52 光线穿过踏步空隙,落在底部的枯山水景观,可以感知从清晨到落日的光线变化,整个楼梯空间因为光的参与,丰富了对时间的感受。
P. 53
P. 54
P. 55
P. 56
P. 57
有序的线条、家具的排列和色彩的搭配,空间呈现出一种稳定而和谐的氛围,使人感受到一种愉悦和安宁的氛围。
P. 58
P. 59
P. 60
• 06
BUILD
构 建
光与影的折射,柔与刚的交融,平衡人与空间的秩序美感。
光线穿透孔洞,投射在墙面上,形成柔和的光影斑驳,为空间增添了一层神秘而温暖的氛围。
P. 61
P. 62
P. 63
P. 64
水泥构件砌筑的镂空墙,使空间呈现出独特的艺术感及空间秩序,增加空间的灵动性。
P. 65
P. 66
P. 67
P. 68
P. 69
在整个空间中,从线条到点缀,从宏观到微观,无处不体现着设计师对情感的精妙把控。
P. 70
P. 71
P. 72
P. 73
P. 74
每一处细节都被精心设计,呈现出不同的情感感知。
材质的选择、灯光的照射、肌理的表现,相互映衬,相得益彰,为空间注入了别样的诗意日常。
P. 75
P. 76
P. 77
• 07
ANALYSIS
DIAGRAM
分析图
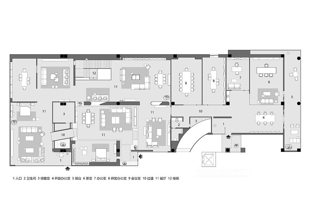
平面图 P. 78
平面图 P. 79
INFO
- 项目名称 - 慕兰卡
- 硬装设计 - 全线品牌设计
- 软装设计 - 素琢软装
- 主创设计 - 孔德俨 肖志洪
- 项目面积 - 1800㎡
- 项目地址 - 广东 东莞
DESIGNER
孔德俨
主创设计师
东莞市全线企业形象策划有限公司,简称:全线设计。创立于 2001 年,23 年来专注于家具品牌整合设计,成功服务国内外超 500 余家家具品牌。现今已发展成为集“品牌策划、平面设计、摄影设计、空间设计、软装设计、自媒体运营”于一体的品牌整合设计机构。
MAGNUM OPUS
全线设计 • 简奢野度
全线设计 • 静谧之美
全线设计 • 心宇自然
客服
消息
收藏
下载
最近





















































































