查看完整案例


收藏

下载
01
郝泽伟设计
室内是建筑的灵魂,是人与环境的联系,是人类艺术与物质文明的结合。
使用理性的设计语言重构空间秩序,以简洁的木、白线条构建空间骨架,虚与实、光与影,或穿插、或咬合、或透视,空间关系层层递进,传递出丰富的空间张力。
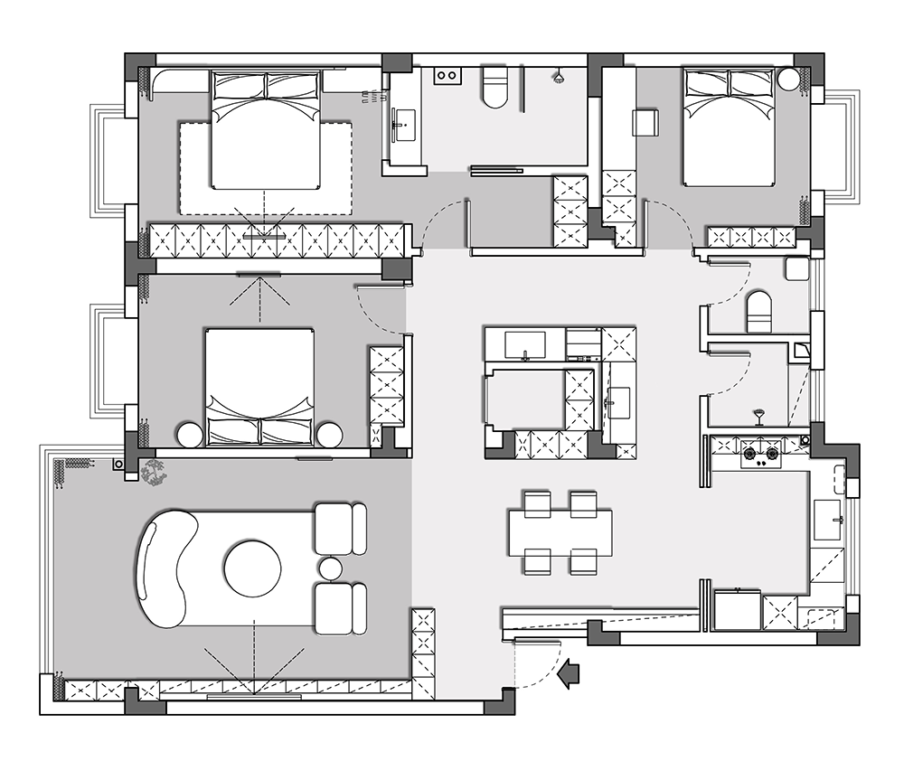
结合客户需求,调整原有房屋结构,在公区中置入一个“白色盒子”围绕这个盒子形成“洄游动线”这个”白色盒子“将公区和私区串联起来,弱化原始过道狭长、逼仄的空间感受,将原本单一的动线变成“洄游动线”
洄游动线规划得更加流畅、自然,让人们在空间中行走活动更加方便、舒适,打破了传统设计思维,将家居空间变成一个互动、通透的整体,不但提高空间的利用率,而且增强家庭成员之间的互动和沟通。
从清晨的第一缕阳光,到夜晚的星辰月光,坐在卧室落地窗前,感受不同时段的变化,人与空间无声对话,家成为我们最信赖的倾诉对象。
平面图
项目地址:合肥·徽州人家
项目面积:150㎡
设计单位:郝泽伟设计工作室
项目摄影:白夜视觉
02
锵设计
本案业主为90后年轻夫妻,男业主从事IT行业,女业主从事教师行业对于空间的调性,业主希望整体是温润舒展的,且有适合猫咪活动的场所。
整体空间以木为笔触,描绘山海归于室的安稳。
大面积木饰面铺陈,还原木之本色,使得自然之息渗入,赋予空间新质力。
以浅色系沙发点缀空间,在围合的场域内形成温暖的磁场,低饱和的色温,经由光的洗礼,累加出空间柔和的印象。
秉持一致性的原则,餐桌选用木质来迎合空间主题,并通过结构组合的手法把原本笨重的柜体进行拆开重组,使其拥有实用与装饰的双重属性。
榫卯结构作为传统木艺的核心,一榫一卯之间蕴含着精深而微妙的平衡。
设计师将客厅阳台打通并入到书房中,共享地台的书房与阳台区域,被统一做抬高设计。
作为回忆的载体,卧室延用质朴的色调,以留白的手法记录空间的动态影像。
分离的卧室与洗漱区间,以地台高度的差异建产生形式上的界定。
触「木」可及,喻为新生。稍众即逝的年华与瞬息万变的生活如木之纹理,以自然的方式被记录。
平面图
项目名称:槐 · Sophora
设计公司:锵设计
项目地点:浙江温州
项目面积:137㎡
主案设计:王锵力
项目摄影:吴昌乐
延伸阅读
现在必须加
“星标”
才能第一时间收到推送
客服
消息
收藏
下载
最近























































