查看完整案例

收藏

下载
夏帕瑞丽,一位连香奈儿都曾羡慕的设计师, 强调了对服装的个人适应的重要性。他主张不应强迫衣物去迁就个人的体型,相反,个体应致力于调整自身以配合服装的要求。
这种理念同样适用于平面设计领域,在设计流程中,平面布置图不仅是起始阶段的关键步骤,更是整个设计项目的核心和精髓。正如个人气质反映了人的内在素养、性格、兴趣和文化背景,一个房屋的平面布局也映射出该空间的“气质”。这种“气质”融合了环境的修养、性格、兴趣及文化底蕴,是家的灵魂。当一个居住空间拥有明确的“气质”,其随后的软装和硬装配套将更能够突显出卓越的整体效果。
NO.1
平面布局的重要性
在专业设计领域,尤其是在室内设计中,平面布局的构思与规划被公认为是一大核心挑战。其复杂性源自于平面配置的广泛选择和设计方案之间的巨大差异,这要求设计师具备高度的设计敏锐度和创新思维。
随着社会的发展,客户对居住环境的需求不断演化,他们日渐认识到精心策划的平面布置对于提升居住空间功能性与舒适性的重要性。这种认识提升了对设计师专业技能的预期,使得设计师必须持续提高自身能力,以满足日益增长的客户期望,确保所设计的空间能充分满足居民的生活质量需求。
在专业领域的设计理念中,优秀的平面设计应当追求功能性与效率,而并非仅仅依赖于表面的创意和视觉效果。一个精心规划的平面布置关注于系统性和综合性,确保每个空间的设计都符合人体工程学原则,最大化利用每一寸空间,既不造成浪费也不引起拥挤感。
NO.2
设计不是“搬运工”
在当前的室内设计领域,一些自称为设计师的个体并未真正实践设计的核心理念。他们的行为更类似于对家居元素的单纯搬运,将家具从素材库直接迁移到设计图纸上,而忽略了关键的尺寸比例与空间适应性的调整。
例如,当业主提出想在客厅中安置一个鱼缸,这些所谓设计师便简单从图库中复制模型至客厅的设计之中。这种操作与搬动物品的搬运工无异,缺乏创造性和个性化的考量,仅仅是按照业主的要求进行机械式的布局。
咱们设计师啊,得先跟业主聊聊,搞清楚他们想要啥,生活习惯啥样的。然后呢,就开始弄那个平面图,让家里的每一寸地方都派上用场,功能也得合情合理。至于家具摆放,多数时候是现场发挥,因为有时候图库里的图块跟业主的家不太搭。
设计这事儿吧,就是得多跟客户交流,互相理解深入了,才能搞出让人满意的作品。
NO.3
平面布置分析
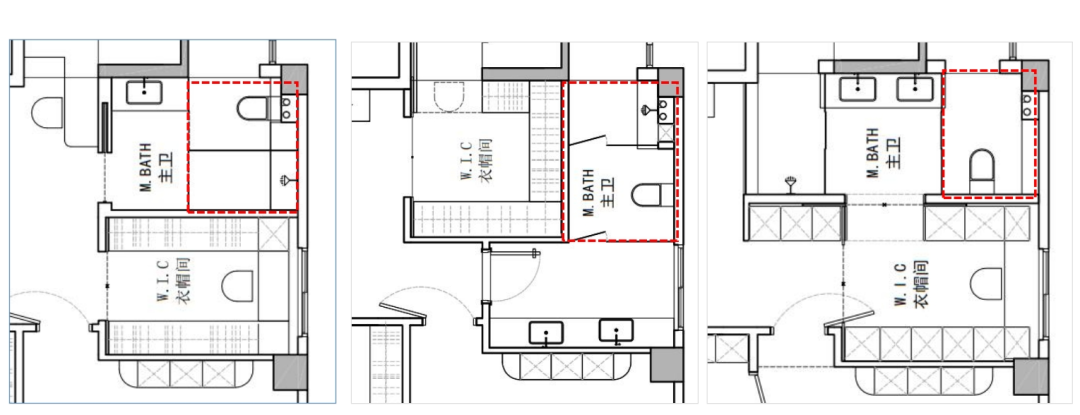
案例一:主卧卫生间平面的优化
从1到2到3最终方案的确认,1方案是年轻客户洗手间的初衷想法,3方案是设计师最后梳理的方案。从舒适性,实用性,美观性帮客户进行分析梳理,客户非常满意!
案例二:转角自建房
客户找了N家设计,还是找不到最理想的方案。优化后的方案很好的弱化了承重柱,让整个平面更加整体,空间更加舒适。
NO.4
平面布置需考虑的因素
嗨,你知道吗,要打造一个牛的不行的家居设计,我们得先跟业主混熟脸儿。得搞清楚他们的家庭情况、生活习惯,还有他们平时爱干啥,是不是啥大佬身份之类的。咱们得深入了解,得去他们家看看,就像侦探一样寻找线索,那些小细节可是大有来头的!
只有这样,咱们才能挖出业主真正的需求,发现他们为啥对一些东西情有独钟。只有把这些都摸透了,咱们才能搞出真正打动人心的设计,那才叫一个赞呢!
设计师们,他们可不仅仅是业主的忠实听众和日常生活的超级侦探,他们还得拥有像蜘蛛侠一样多维度的超能力!
在设计平面图时,他们得从高矮、宽窄、长短,甚至可能还要从颜色鲜艳到低调奢华有深度的多个角度来打量,确保设计出来的作品能让人眼前一亮,而不是让人觉得像是走进了一个迷宫。简而言之,设计师的工作就像是在做一场精彩的多维度魔术表演,而他们的观众,可是对生活品质有着高要求的业主们哦!
在制定平面设计方案时,最为关键与无可替代的原则是“适宜性”。这一概念包含了对居住者情感的契合以及对其生活方式的适应。每一处细节都应针对性地考虑,避免采取任何想当然的设计决策。设计师的任务是在诸多可行性中,精准定位并实施最为恰当的解决方案。
整
理 | 小哲
栏目 | “设计有话说”
客服
消息
收藏
下载
最近








