查看完整案例

收藏

下载
日本摄影棚木村裕二将这座东京的房子藏在高高的白色墙后面,以保护居民的隐私(幻灯片)。
K屋的客户希望私人露台能在户外放松,但房子在一条比正常交通繁忙的街道上,所以木村裕二设计(Yuji Kimura Design)在面向马路的三层墙的侧面隐藏了阳台。
木村解释说:“由于房主要求有一个有甲板空间的住宅,所以我建造了一堵大墙,挡住了道路上的视线,把房子设计成一个由东向西延伸的拉长盒子。”
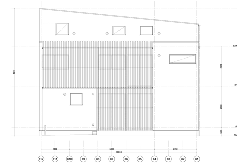
前面的立面在一楼有一个小窗户,让光线进入入口处,在第一层有一个更大的开口,使卧室和上面的露台照在房子的那一边。
卧室和露台沿南面布置,白天享受良好的自然光线,有板条木材和半透明的面板,以屏蔽露台与路人。
在北面的正面,较小的水平狭缝窗户将光线带入起居室和底层的卫生间,以及一楼的浴室和走廊。
储藏室集中在一楼的入口大厅里,全高的橱柜被建在墙上和凹的把手里,使它们看起来更加流线型。
大厅通向开放式的居住空间,后面是厨房和餐厅,旁边是书房。底层还有一个厕所,门一直延伸到天花板,所以当关闭时,感觉更像是墙壁的一部分。
一个钢楼梯有开放的木材踏板,使更多的光线流动之间的上下层。
私人区域集中在一楼,一边有三个卧室,另一边有一个浴室和一个单独的厕所。和楼下的厕所一样,这些房间还配有全高的门,使它们在关闭时不那么引人注目。
在这两层楼中,木村幸治都使用了一种简单的材料调色板,即白色墙壁和轻型木材地板。
摄影是由太田拓美拍摄的。
以下是木村佑志设计的更多信息:
东京K楼
这所房子的外观是白色的,前面堵着一堵大墙。
该遗址位于交通比较繁忙的地区,两边都有房屋环绕,就在后面。由于房主要求有一个有甲板空间的住宅,我建造了一堵大墙,挡住了道路上的视线,把房子设计成一个由东向西延伸的拉长的盒子。
卧室布置在南部,大窗户集中在南侧,以带来阳光。相比之下,北面则有开槽窗口。
应业主要求,入口大厅沿整个地面设有大型储藏室.旁边是一片空地,里面有客厅和厨房用餐者。薄钢楼梯的放置方式,使这两个空间轻轻地分开。
这个楼梯井一直延伸到阁楼,帮助把光线带入房子的内部。
二楼有浴室、卫生间和卧室,通向阳台。
设计:裕济木村设计建筑:三里欧高望镇。建筑面积:120.1平方米,建筑面积:47.99平方米,总面积95.98平方米。
站点计划-单击以获得更大的图像
底层-点击以获得更大的图像
一楼-点击更大的图像
部分-单击以获取更大的图像。
标高-点击以获取更大的图像
客服
消息
收藏
下载
最近























