查看完整案例

收藏

下载
© Oscar Hernández
奥斯卡·埃尔南德斯
架构师提供的文本描述。在大学校园里,建筑和景观应该融合成对人的能力的认可和享受,在体育和文化活动中更是如此。在这一努力中,ITESM Aguascalientes校园的DAE大楼(学生事务)提议创建一个平台,通过整合各种活动来突出这一经验,这些活动都包含在一个大盒子中、一个人才容器、一个带有一层喷出的色调的蒙托布洛克中,它通过光的通道显示了精神的堆积。960个圆形射孔在一天的过程中被转换,给建筑静态对象一个动态的目标。
Text description provided by the architects. On a college campus, the architecture and the landscape should merge into a recognition and enjoyment of human capabilities, even more so in sports and cultural activities. In that effort, the DAE building (Student Affairs) at ITESM Aguascalientes Campus, proposes to create a platform that highlights this experience by integrating diverse activities, all contained in a large box, a container of talent, a monoblock with an envelope of effervescent tone showing the cumulus of spirits through the passage of light. 960 circular perforations are transformed in the course of the day, giving a dynamic target to the architectural static object.
© Oscar Hernández
奥斯卡·埃尔南德斯
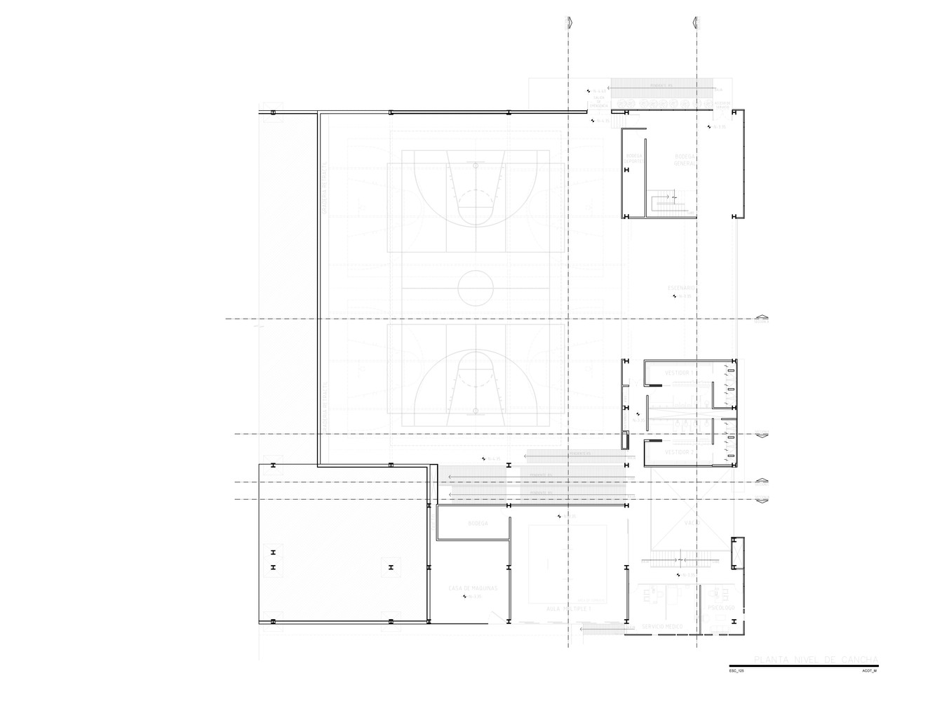
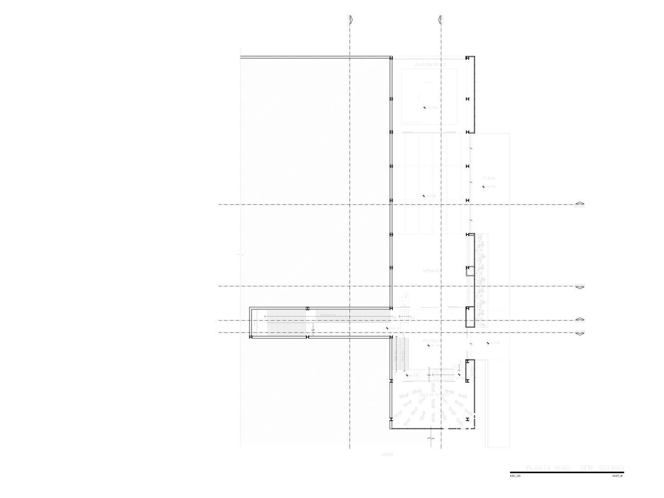
它与校园的其他部分形成了一种结构,因为它认识到了它的位置,形成了城市的壮丽景色,而不把它们与其他建筑物隔开。它跟踪一个构成轴,这是项目的脊柱在不同的层次,适应地形的背景,从而使普遍无障碍。
A fabric is generated with the rest of the campus as it recognizes its position, framing the great views of the city without blocking them from the rest of the buildings. It traces a compositional axis that is the spine of the project at different levels, adapting to the topography of the context, thus enabling universal accessibility.
© Oscar Hernández
奥斯卡·埃尔南德斯
这座建筑是在不同的层次上设计的,适合现场的地形,并通过连接整个系统的坡道绘制为轴线的垂直积分单元,同时在顶部生成一个阳台,成为城市的窗口。
The building is designed on different levels adapting to the topography of the site, and draws as axis a vertical integrating element through ramps that connect the entire system, while generating a balcony at the top that becomes a window to the city.
这个分销商的空间作为一个开放的街道对天空,自然光和通风的所有空间组成的节目。充分的交叉通风是由于空间允许开放在南面,产生内部舒适不需要机械或电气系统,这将能源消耗最小化。
This distributor space acts as an open street to the sky, with natural light and ventilation for all the spaces that make up the program. Adequate cross ventilation is created due to the spaces that allow the openings on the south facade, generating an interior comfort requiring no mechanical or electrical systems, which minimizes the energy consumption.
© Oscar Hernández
奥斯卡·埃尔南德斯
DAE建筑成为动态转化的能量盒。
The DAE building becomes an effervescent energy box of dynamic transformation.
Architects Arkylab, Mauricio Ruiz
Location Avenida Eugenio Garza Sada, Barranquilla, Aguascalientes, Mexico
Category Offices
Architect in Charge Luis Morán (Arkylab) y Mauricio Ruiz
Project Year 2011
Photography Oscar Hernández, Ana Rangel
客服
消息
收藏
下载
最近



































