查看完整案例


收藏

下载
薰衣草
Romantic and noble, picturesque
浪漫而高贵,如诗如画
一人皆有梦,这是一种虚幻却真实的体验,超越了现实空间界限,设计如同造梦,它充满了奇迹。
薰衣草
品位升级
驱动体验式经济崛起
现当下,年轻一代消费者逐渐成为消费市场的主力,其消费审美与品味追求从需求本身、到产品内容、再到文化精神,正在向“体验式”升级。因而,在传统装饰主义盛行的今天,网红打卡等这类体验式商业模式正在逐步崛起,客户更多注重是文化、是体验、是生活态度,同时,亦为传统的模式带来更多改良与创新的可能。
设计总监|孙连峰
设计师|马晴川李艳
摄影师|孙冠军
薰衣草
『 平面图 』
薰衣草
一楼平面图
薰衣草
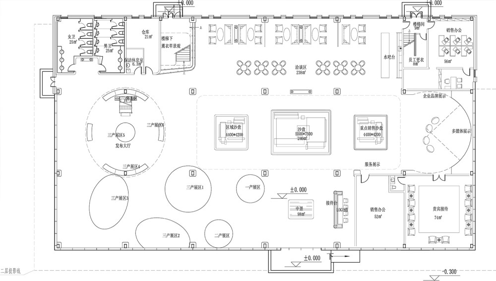
二楼平面图
思·理想的旅行
前台区域
造梦城的旅途被开始唤醒,这是一幅自由的梦幻蓝图,一个演绎梦幻普罗旺斯的世界。
薰衣草
薰衣草
观·微观世界
沙盘区域
强调“美是普遍的愉悦”,设计将自然区位优势巧妙融入产品力之中,吸引以家庭为主的旅游客停驻、置业并转化。
薰衣草
想·逐梦心声
洽谈区域
洽谈区中通过整体软装设计优雅、浪漫空间基调,进行局部点缀,浪漫气息与时尚兼备。
薰衣草
薰衣草
薰衣草
想·逐梦心声
深度洽谈区
自然与空间以灵动的美学语素,营造弧形或圆形的围合布局,艺术的秩序感中。
薰衣草
薰衣草
望·筑梦未来
功能区域 - VIP 区
以简约而不简单为主题,紫色为主调,搭配纯洁的白色,给人以高雅的感觉。
薰衣草
行·方向与设想
办公区域-- 会议室
配有先进的视频传播、电子屏幕、四周同时传译等先进设备,可满足不同规格会议的需要。可接纳几百人不同规模的会议。
薰衣草
薰衣草
薰衣草
行·方向与设想
办公区域-- 客餐
餐厅的色彩不同,它以鲜明高贵的白、紫色为主色调;大量的使用水晶吊灯,目的就是让每一个食客,在这里忘记都市的嘈杂,进入美丽的雍容空间
项目名称|薰衣草营销展示中心
设计公司|广州思美装饰设计工程有限公司
甲方单位|恒信集团
项目日期|2020 年 06 月
项目地点|山东·潍坊
薰衣草
客服
消息
收藏
下载
最近





















