查看完整案例

收藏

下载
澳大利亚威尔士梅杰工作室将悉尼一家19世纪的警察局改建成一家餐厅,餐厅内有玻璃延伸,入口有百叶窗,突出在旧砖墙之上。
这座建筑位于悉尼市中心历史悠久的岩石区,最初由政府建筑师詹姆斯·巴尼特(JamesBarnet)在19世纪80年代初设计,采用帕拉迪安风格的正面。
警察局于1974关闭,大楼随后被各种业主占用。它于2009空置,因此威尔斯梅杰受到悉尼港前滨管理局的邀请,监督其翻修工作。
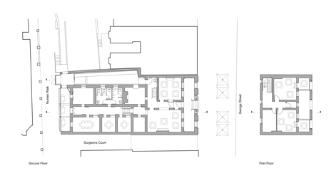
新古典主义的两层立面保持原来的状态,而后面的单层砖结构则被改造成适合作为餐厅使用。
立面后面的两层原先都设有办公室,由木制楼梯连接,现在已改建成餐厅。
其中两个空间,位于双高度入口门廊的对面,特色阳台,保留原来的锻铁栏杆。
单层后部包括以前的储物室、充电室和一个集合室,这些房间已经被改造成更多的餐厅。
监狱的许多原始特色都保存在这些空间中,包括金属电池门和窗玻璃。
一条狭窄的走廊通向建筑物的中间,朝向釉面延伸,从拱形屋顶覆盖的屋顶窗接收自然光。
新增加的特色是全高的玻璃墙,可以俯瞰该地点后面的行人专用区街道。
它坚固的黑漆钢结构补充了未被渲染的砖墙,而遮住新入口的百叶窗让人想起了监狱栅栏的垂直线条。
位于监狱和附近一栋大楼之间的一个原运动场被改建为餐厅的厨房厨房,而有玻璃的入口也提供了通往一个凸起的露台的通道。
摄影是由凯瑟琳路。
以下是威尔士少校的一些信息:
前岩石警察局
1880年代初,澳大利亚政府建筑师JamesBarnet以Palladian水闸的形式设计了这座大楼,直到1974年代才开始作为警察局运作。
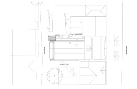
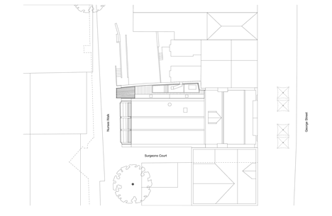
站点计划-单击以获得更大的图像
在接下来的35年里,这座建筑被各种租户占用,不时出现空置和修复的现象,从2009到今天,这栋建筑一直无人居住。
平面图-点击以获取更大的图像
悉尼港前滨管理局聘请威尔士梅杰设计改造和补充,以使该建筑物可用作餐厅或咖啡馆。
前仰角-点击以获得更大的图像
在护士步行街正面的大楼里,引入了一个坚固优雅的新餐厅和入口。原来的运动场被改造成一个商业厨房翼,在以前的囚室、充电室、集合室和办公室里为新餐厅提供服务。
侧面标高-点击以获得更大的图像
优雅详细的元素使用黄铜,铜,玻璃和黑色油漆钢看到,该建筑将重新接触岩石的方式,完全不同于它的原意。
客服
消息
收藏
下载
最近


















