查看完整案例


收藏

下载
Houses, Sokolov, Czech Republic
设计师:JRA Jarousek.Rochova.Architekti
面积: 325 m²
年份:2020
摄影:Filip Slapal
建造商: AXOR, Reynaers Aluminium, Arco, Godelmann, Magis, Flos, Normstahl
设计团队:JRA Jarousek Rochová Architekti
The landscape of the Sokolovsko region surprised us with its beauty, which we had no idea about before. All more because of that it was interesting for us to design the house in this for our new location. The slightly sloping plot is located at the end of the small city near the forest. We wanted the house to float into the landscape so that the architecture blends from the city to nature with trees and ponds. We have preserved the original birches and other trees and incorporate them into each garden area.
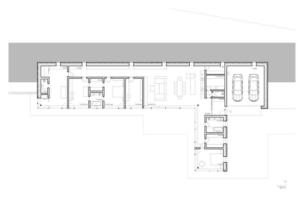
Thanks to the sloped terrain of the plot, we embed the single-story building into the slope along its long side. The house is hidden behind stone massive wall from the street and from the entrance area and as a contrast opens to the private garden by the full light glazed wall. We have placed the main longitudinal mass of the house in the upper part of the plot. On this
We have designed perpendicular wing dividing outdoor space into the entrance area and private garden. Because of the embed house in the slope, you can overlook the cross colorful green roof the surrounding landscape from the street. Structural walls and ceilings are made from reinforced concrete. Stone walls were designed as a sandwich wall with embedded thermal insulation.
Aluminum windows in the stone walls align with the walls. To achieve the lightness of the glazed facade, we have designed a full-height window facade system, where the thickness of the roof is hidden behind the glazing system. It was important for us a game between each part of this facade, the game of large glazed areas, smaller windows, full fixed or opening segments. The windows are made from triple insulating glass with sun protection. We have used natural materials as massive sandstone stone blocks, in the interior, we used the wood oak floor in combination with oak veneer and lacquered furniture parts.
项目完工照片 | Finished Photos
设计师:JRA Jarousek.Rochova.Architekti
分类:Houses
语言:英语
阅读原文
客服
消息
收藏
下载
最近






























