查看完整案例

收藏

下载
© Philip Vile
(菲力浦)
架构师提供的文本描述。利物浦人是一个新剧院,在公开的欧洲竞争中获胜,这是一家国际知名的生产公司。工作范围包括400个座位适应性强的礼堂、一个较小的表演和发展空间、一个大型彩排室、公共门厅、展览空间、餐饮和酒吧设施,以及辅助办公室、车间和附属空间。整个外观是一个大型的,合作的公共艺术作品。该设计结合热大规模建设与一系列自然通风系统和低能技术基础设施,以实现BREEAM的良好评价,这一复杂和人口稠密的城市建筑。
Text description provided by the architects. The Liverpool Everyman is a new theatre, won in open European competition, for an internationally regarded producing company. The scope of work includes a 400 seat adaptable auditorium, a smaller performance and development space, a large rehearsal room, public foyers, exhibition spaces, catering and bar facilities, along with supporting offices, workshops and ancillary spaces. The entire façade is a large, collaborative work of public art. The design combines thermally massive construction with a series of natural ventilation systems and low energy technical infrastructures to achieve a BREEAM Excellent rating for this complex and densely inhabited urban building.
© Philip Vile
(菲力浦)
在利物浦文化中,人人都占有重要的位置。最初的剧院是从19世纪的希望堂教堂改建而来的,作为创意、欢乐和异议的中心(通常集中在它的地下小酒馆),它很好地服务于这座城市,但到了新的千年,这座建筑需要完全更换,以便为迅速扩大的生产和参与方案服务。霍沃斯·汤普金斯(Haworth Tompkins)的简介是设计一座技术先进、适应性强的新剧院,它将保留老建筑友好、人口稀少的可达性,展示该组织的文化包容价值、社区参与和当地创造力,并体现利物浦人民的集体身份。这座新建筑位于霍普街同样敏感、历史悠久的市中心,紧邻利物浦天主教大教堂,四周环绕着18世纪和19世纪的上市建筑,因此,在外部公共领域保持敏感性和公告的平衡是一个重要的设计标准。该简报的另一个核心方面是设计一座在建筑和使用中都具有非凡能源效率的城市公共建筑。
The Everyman holds an important place in Liverpool culture. The original theatre, converted from the 19th century Hope Hall chapel, had served the city well as a centre of creativity, conviviality and dissent (often centred in its subterranean Bistro) but by the new millennium the building was in need of complete replacement to serve a rapidly expanding production and participation programme. Haworth Tompkins’ brief was to design a technically advanced and highly adaptable new theatre that would retain the friendly, demotic accessibility of the old building, project the organisation’s values of cultural inclusion, community engagement and local creativity, and encapsulate the collective identity of the people of Liverpool. The new building occupies the same sensitive, historic city centre site in Hope Street, immediately adjacent to Liverpool’s Catholic cathedral and surrounded by 18th and 19th century listed buildings, so a balance of sensitivity and announcement in the external public realm was a significant design criterion. Another central aspect of the brief was to design an urban public building with exceptional energy efficiency both in construction and in use.
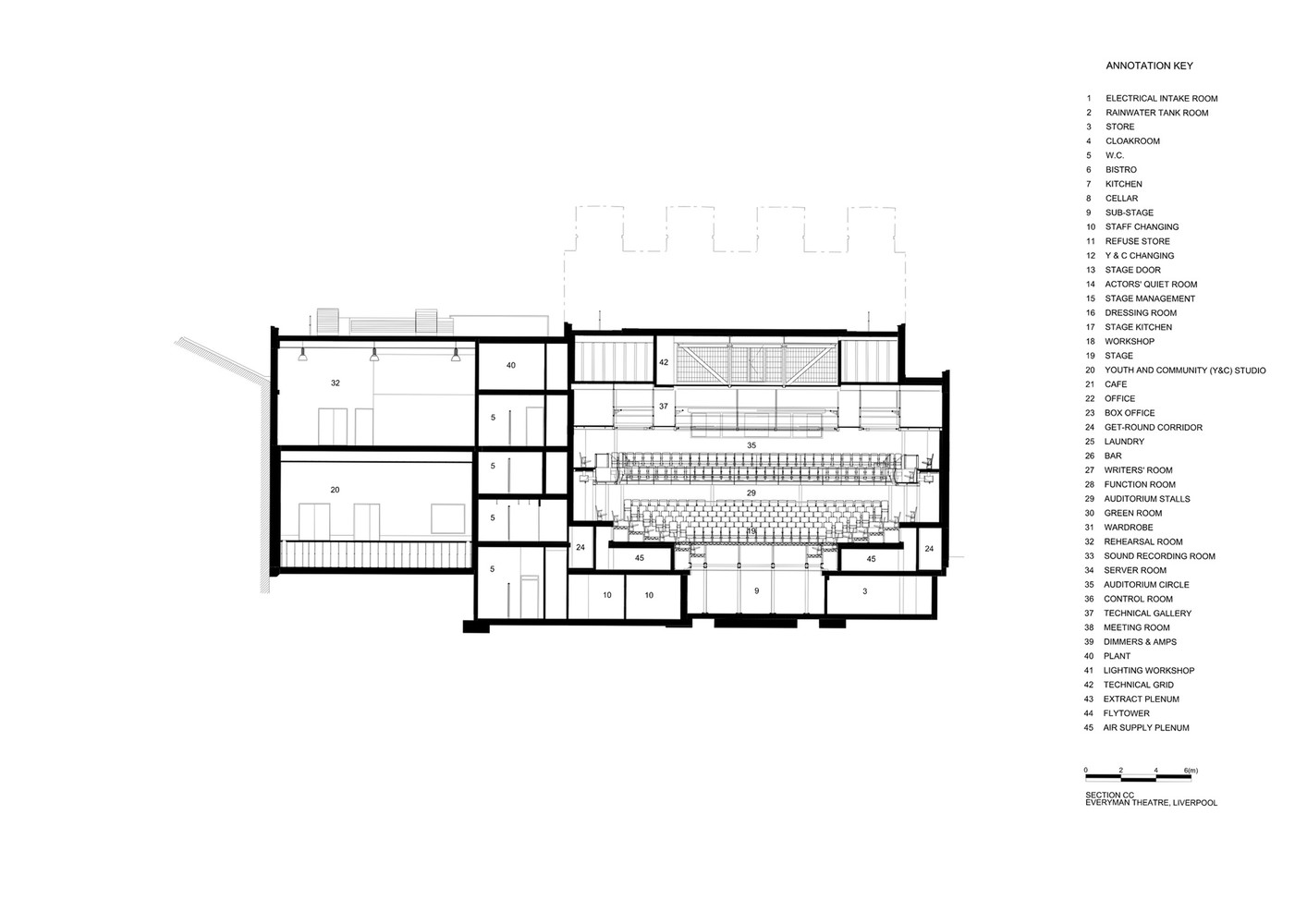
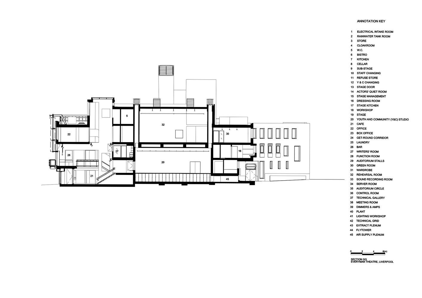
该建筑利用复杂和受限的场地几何学,将公共空间安排在一系列半层楼的周围,建立了一个从街道到礼堂的连续蜿蜒的长廊。门厅和餐饮空间被安排在三层,包括一个新的小酒馆,最高的是一个长长的钢琴鼻孔门厅俯瞰街道。大礼堂是一个由400个座位组成的可适应的推力舞台空间,由重建的希望大厅砖建造而成,并表现为门厅的内墙。这栋建筑包含了许多创造性的工作空间,包括彩排室、工作坊、音响工作室、俯瞰门厅的作品室和EV1-这是一间专门为“青年人人剧院”(Young Everyman Playhouse)提供教育和社区团体的工作室。一个多样化的残疾问题小组从一开始就对设计进行了监测。
The building makes use of the complex and constrained site geometry by arranging the public spaces around a series of half levels, establishing a continuous winding promenade from street to auditorium. Foyers and catering spaces are arranged on three levels including a new Bistro, culminating in a long piano nobile foyer overlooking the street. The auditorium is an adaptable thrust stage space of 400 seats, constructed from the reclaimed bricks of Hope Hall and manifesting itself as the internal walls of the foyers. The building incorporates numerous creative workspaces, with a rehearsal room, workshops, a sound studio, a Writers’ Room overlooking the foyer, and EV1 - a special studio dedicated to the Young Everyman Playhouse education and community groups. A diverse disability group has monitored the design from the outset.
© Philip Vile
(菲力浦)
外部,当地的红砖被选为墙壁和四个大型通风堆叠,使建筑有一个独特的轮廓,并与周围的建筑网格。这座建筑面向西面的主要建筑是一件大型公共艺术品,由105个可移动的金属遮阳篷组成,每个墨镜上都有一幅真人大小的、切水的、当代利物浦居民的肖像。该项目与利物浦摄影师丹·肯扬合作,让城市社区的每一阶层都参与了一系列的公共活动,这样建成的大楼就可以被解读为一个完整的家庭集体快照,反映了整个城市人口的多样性。排印师和艺术家杰克·蒂尔森为新版本的标志性红色“人人”设计了一种特殊字体,而定期合作的视觉艺术家安东尼·马林诺夫斯基为大厅制作了一幅大的彩绘天花板,以补充由砖、黑钢、橡木、再生伊洛科、深彩色胶合板和原状混凝土组成的内部调色板。
Externally, local red brick was selected for the walls and four large ventilation stacks, giving the building a distinct silhouette and meshing it into the surrounding architecture. The main west facing façade of the building is as a large-scale public work of art consisting of 105 moveable metal sunshades, each one carrying a life-sized, water-cut portrait of a contemporary Liverpool resident. Working with Liverpool photographer Dan Kenyon, the project engaged every section of the city’s community in a series of public events, so that the completed building can be read as a collective family snapshot of the population in all its diversity. Typographer and artist Jake Tilson created a special font for a new version of the iconic red ‘Everyman’ sign, whilst regular collaborating visual artist Antoni Malinowski made a large painted ceiling piece for the foyer, to complement an internal palette of brickwork, black steel, oak, reclaimed Iroko, deeply coloured plywood and pale in situ concrete.
© Philip Vile
(菲力浦)
人人从一开始就被认为是可持续良好做法的典范。早先的一项可行性研究包括在一个新的地点建造一座更大、更昂贵的建筑,但霍沃斯·汤普金斯(Haworth Tompkins)认为,原址的连续性和紧凑性非常重要。仔细拆除现有的结构,所有十九世纪的砖块被打捞回来,作为新礼堂的外壳,并回收屋顶结构的木材。通过有效利用遗址足迹,豪沃思·汤普金斯避免了购买更大场地的需要,并拆除了更多相邻的建筑。与客户团队一起,他们将空间简报提炼成最密集、最具适应性的形式。
The Everyman has been conceived from the outset as an exemplar of sustainable good practice. An earlier feasibility study had included a much larger and more expensive building on a new site, but Haworth Tompkins argued for the importance of continuity and compactness on the original site. Carefully dismantling the existing structure, all the nineteenth century bricks were salvaged for reuse as the shell of the new auditorium and recycled the timbers of the roof structure. By making efficient use of the site footprint Haworth Tompkins avoided the need to acquire a bigger site and demolish more adjoining buildings. Together with the client team they distilled the space brief into its densest and most adaptable form.
© Philip Vile
(菲力浦)
在将项目的空间和材料需求降到最低之后,织物的设计达到了BREEAM的优异评价,这对于城市剧院建筑来说是不寻常的。主要性能和工作空间的自然通风是通过大屋顶通风口和底层进水口实现的,采用热质量进行预冷却,而门厅通过开口屏风和一个大的光网进行通风。完全暴露的混凝土结构(水泥替代率很高)和再生砖墙提供了极好的热质量,而定向和开窗设计优化了太阳的响应-整个西面被设计成一个可移动遮阳的大屏幕。办公室和附属空间通过打开的窗户通风。
Having minimised the space and material requirement of the project, the fabric was designed to achieve a BREEAM Excellent rating, unusual for an urban theatre building. Natural ventilation for the main performance and workspaces is achieved via large roof vents and underfloor intake plenums, using thermal mass for pre-cooling, and the foyers are vented via opening screens and a large lightwell. The fully exposed concrete structure (with a high percentage of cement replacement) and reclaimed brickwork walls provide excellent thermal mass, while the orientation and fenestration design optimize solar response - the entire west façade is designed as a large screen of moveable sunshades. Offices and ancillary spaces are ventilated via opening windows.
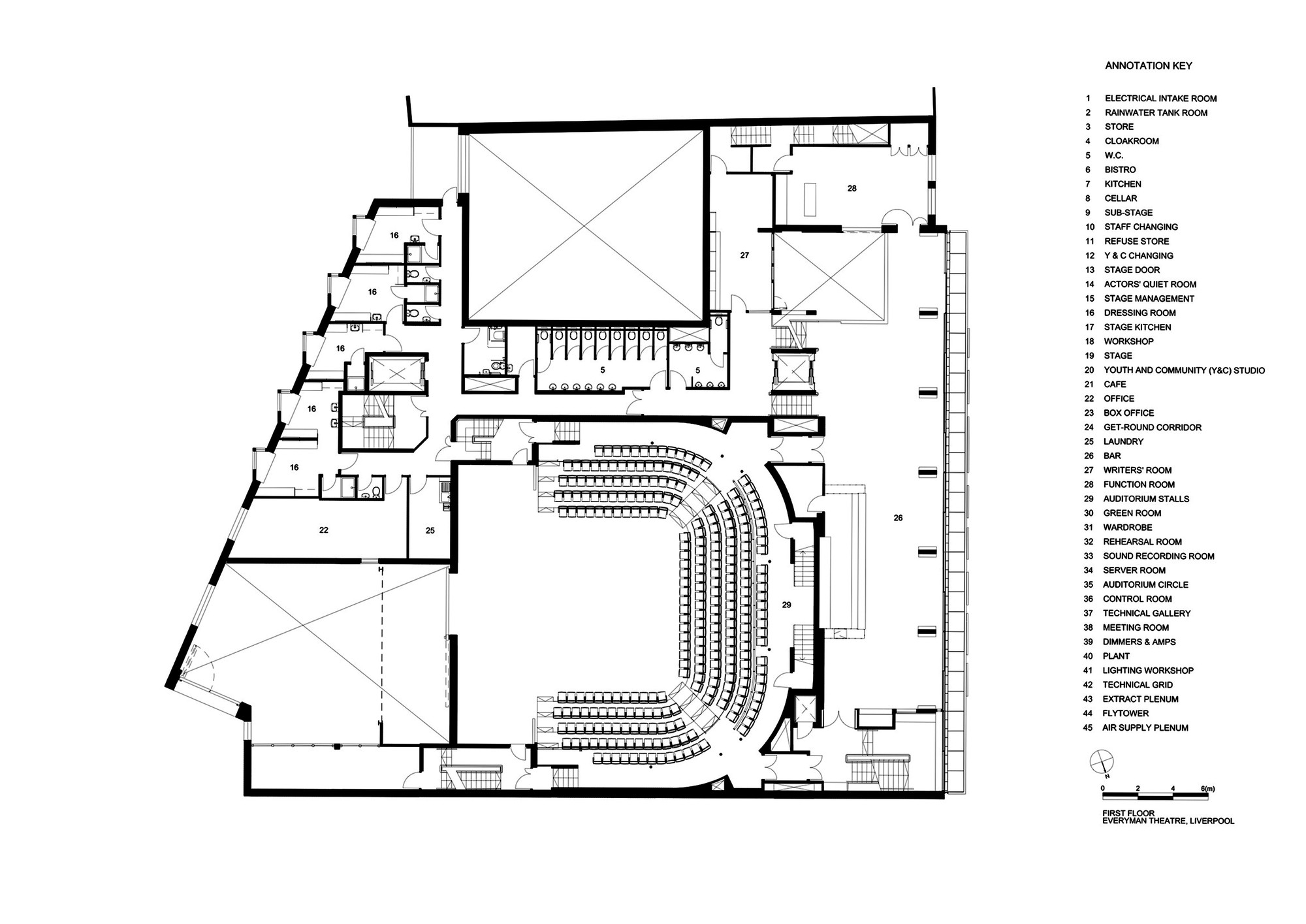
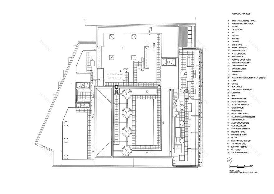
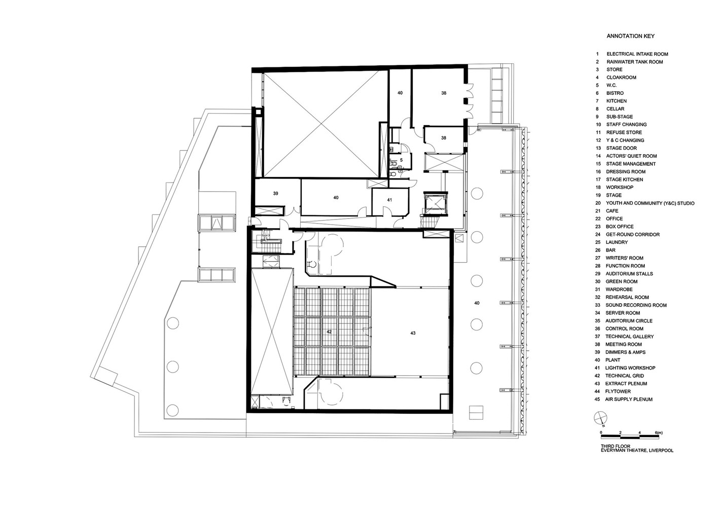
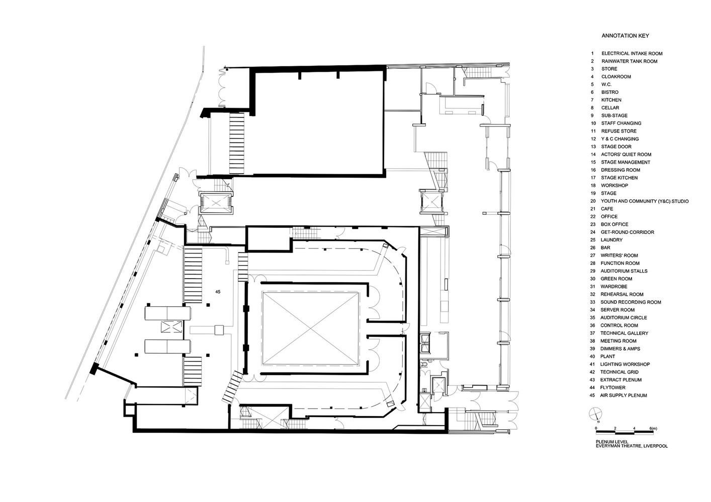
Floor Plan
这座建筑花了近十年的时间来构思、达成共识、筹集资金、设计和建造,而这一设计将确保艺术家、观众和工作人员的长期未来享受生活。
The building has taken almost a decade of intensive teamwork to conceive, achieve consensus, fundraise, design and build, and the design will ensure a long future life of enjoyment by a diverse population of artists, audiences and staff.
Architects Haworth Tompkins
Location 7-11 Hope Street, Liverpool, Merseyside L1 9BQ, United Kingdom
Category Renovation
Area 4690.0 sqm
Project Year 2013
Photographs Philip Vile
客服
消息
收藏
下载
最近
































