查看完整案例

收藏

下载
© Pedro Kok
(佩德罗角)
架构师提供的文本描述。这是一个面向美国学校的中学项目,学生和教师在一起生活在一个校园里。该设计是2004年2月由国家SESC举办的一项竞赛的获胜者。
Text description provided by the architects. This is a project for a secondary school in the line of American schools, in which students and teachers live together in a campus. The design was the winner of a competition held by the National SESC in February 2004.
© Pedro Kok
(佩德罗角)
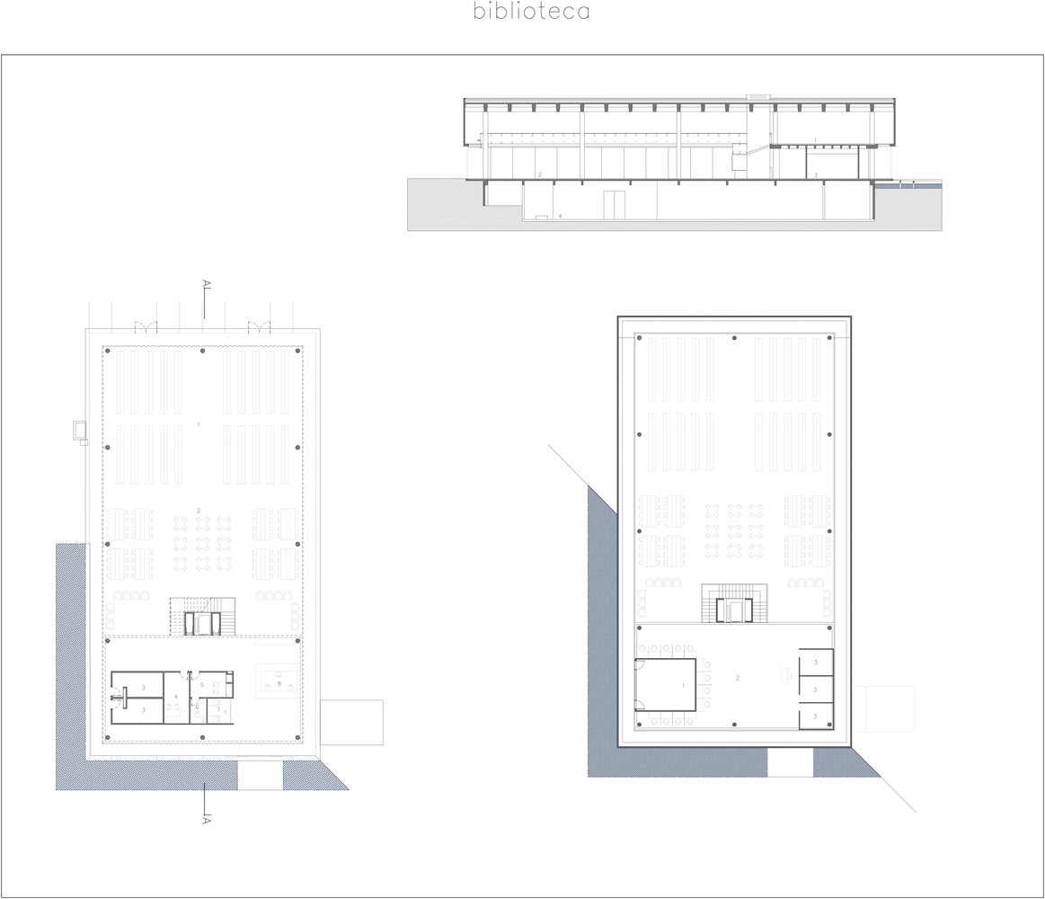
这所学校是为500个14-17岁的学生设计的,位于里约热内卢BarradaTijuca 13万平方米的地区。该项目除了为学生和教师提供教室和住宿区域外,还包括各种公共建筑:餐厅、图书馆、行政管理、竞技场、体育综合体和一个有600个座位的剧院。
Designed for 500 students aged 14-17 years old, the school stands on an area of 130,000 m2 in Barra da Tijuca, Rio de Janeiro. The project includes, in addition to classrooms and accommodation areas for students and teachers, various common buildings: restaurant, library, administration, amphitheater, sports complex and a 600-seat theater.
© Pedro Kok
(佩德罗角)
校园建在湖边,周围环绕着周边的道路和自行车道。在发展基础设施项目和美化环境时,生态关怀被广泛考虑,其中包括绿色屋顶和水再利用系统。
The campus is built around a lake and is surrounded by peripheral internal roads and bike paths. Ecological care is widely considered in the development of infrastructure projects and landscaping, with the inclusion of green roofs and water reuse systems.
Architects Indio da Costa Arquitetura
Location Escola SESC de Ensino Médio - Av. Ayrton Senna - Jacarepaguá, Rio - Rio de Janeiro, 22775-004, Brasil
Category Schools
Project Architect Luiz Eduardo Indio da Costa
Co-authors Claudia Amorim, Carlota Sampaio, Lourenço Gimenez
Technical Team Maria Teresa Mesquita, Ana Rita Figueira, André Barreto, Ligia Cury, Mariana Cailaux, Rodrigo Carneiro, Christian Smith, Joyce Camillo, Maurício Duarte, Igor de Vetyemy, Roberta Leite, Cesar Jordão
Project Area 55000.0 m2
Project Year 2007
Photography Pedro Kok, Cesar Duarte
客服
消息
收藏
下载
最近



























