查看完整案例


收藏

下载
Casas, Mathura, India
设计师:SEZA Architects & Interior Designers
面积:2 m²
年份:2019
摄影:Dinesh Mehta
提供协助:Hansgrohe, Villeroy & Boch, Adobe, AutoDesk, Blum India Pvt. Ltd., Crestron, Durall Systems India (P) Ltd, Flos (Indoor lighting), Hafele india Pvt. Ltd., Iguzzini (outdoor lighting), Schueco India Pvt Ltd, Siemens India Pvt. Ltd., Simpolo Vitrified Pvt. Ltd.
负责建筑师:Seema Puri Mullan, Zarir Mullan
Equipo:Seema Puri, Zarir Mullan, Makrand Kalambe, Oswin Mascarenhas, Abhijit Hingankar, Siddhesh Aroskar
Construcción:Tavase and Associates
景观设计:Oasis Designs
Consultores Mep:Techno Group
合作者:Firefly, LSI, Bhavik Arts
设计师描述 | Designer description:
Las líneas son la base de cualquier estructura, y para mantener intacta la pureza de la forma, decidimos diseñar en base a un juego de líneas para crear un lenguaje visual fuerte. El resultado se obtiene en una serie de líneas, algunas delgadas, otras gruesas, algunas horizontales y otras verticales.
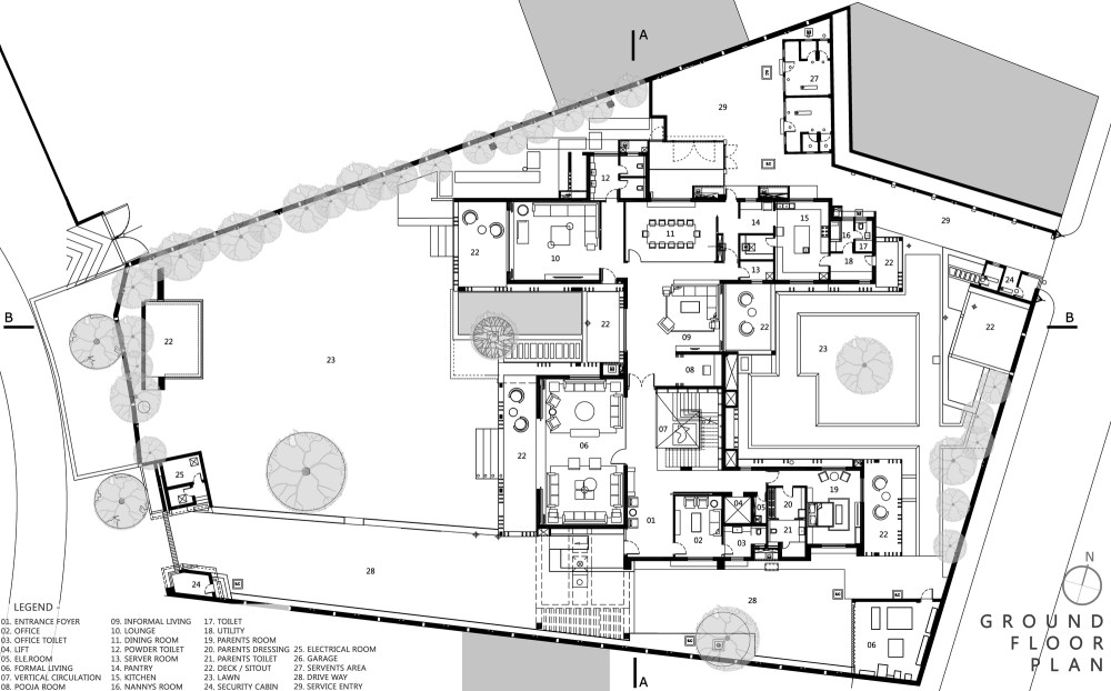
Esta propiedad en Mathura, en el norte de la India, es una casa de vacaciones para una familia que está destinada a disfrutar de un tiempo de calidad juntos. El sitio cuenta con árboles hermosos alrededor, que fueron integrados dentro del diseño.
En la entrada, los árboles se integran y dan forma al flujo, generando una experiencia de entrada significativa. El clima tropical impulsó el diseño; por lo tanto, todas las habitaciones están dispuestas para permitir la ventilación. Cada una de ellas se abre a grandes terrazas cubiertas que están protegidas por perfiles de madera. El plan forma así un pequeño patio delantero con un cuerpo de agua y un patio trasero más grande y privado al que se abren las habitaciones.
El juego rítmico de estos perfiles de madera también se convierte en el lenguaje de diseño de la estructura. El diseño resultante es una fusión de conceptos tradicionales con un sabor contemporáneo. La arquitectura es tal que los espacios parecen fusionarse entre sí y se puede ver directamente a través del patio delantero hacia la parte trasera desde el mismo lugar. Todas las áreas públicas están en el nivel inferior mientras que los dormitorios privados están en el segundo piso. Todas las habitaciones crean una narrativa con su diseño. El salón familiar se abre al cuerpo de agua en la parte delantera y, simultáneamente, se conecta con la cancha trasera, lo que brinda hermosas vistas. El teatro también se abre a una cubierta que termina cerca del cuerpo de agua.
El volumen de cada piso superior se retrasa del inferior para crear terrazas para las habitaciones superiores. Utilizamos un sistema de doble pared con un espacio de aire de 50 mm para proporcionar aislamiento y por lo tanto reducir la transferencia de calor en el interior. Los asientos están colocados estratégicamente para que se sienta protegido por la forma construida y disfrute de su conexión con la naturaleza. El equilibrio entre los espacios construidos y los espacios abiertos proporciona suficiente iluminación natural y la orientación este-oeste de la mayoría de las ventanas proporciona ventilación a través de toda la casa. Todo el proyecto gira en torno a esta dilución de los límites entre el interior y el exterior, creando una intensa dinámica espacial.
项目完工照片 | Finished Photos
设计师:SEZA Architects \u0026 Interior Designers
分类:Casas
语言:西班牙语
阅读原文
客服
消息
收藏
下载
最近





































