查看完整案例

收藏

下载
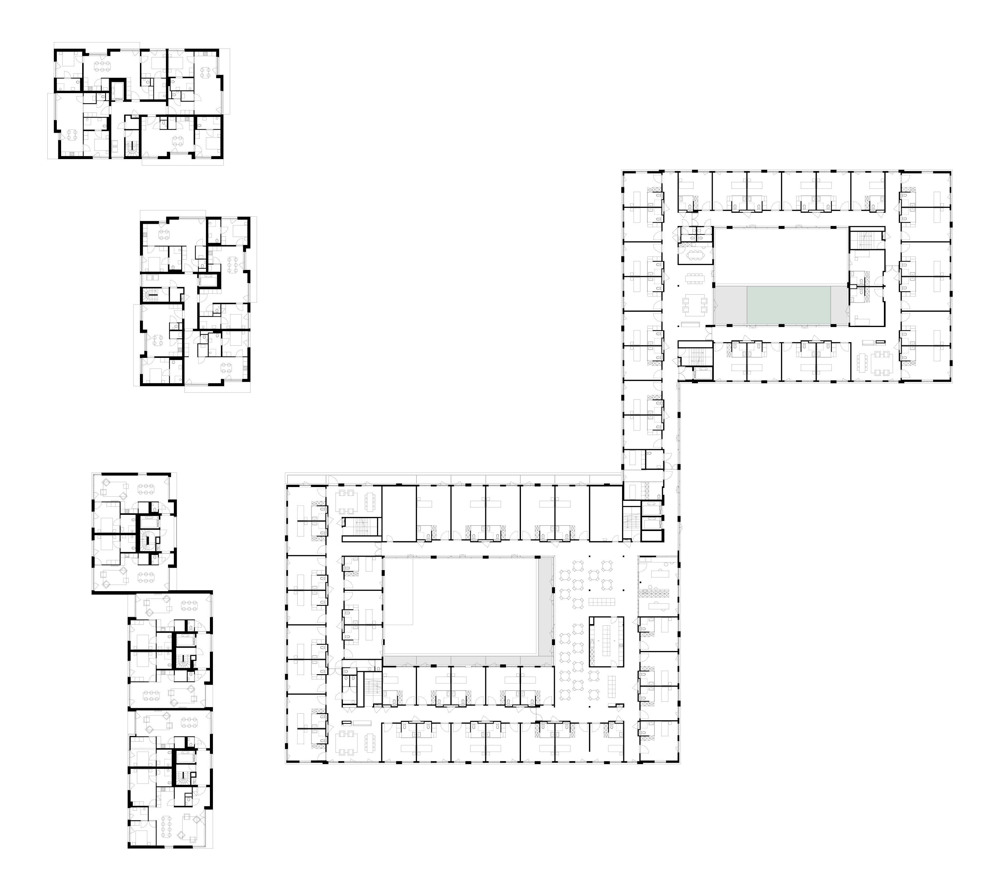
养老院和其他社会服务经常被解释为相同的模式:无数的房间连接在一起的长走廊。这种方案是对这些建筑功能的一次胜利,但却是对其家庭生活的一次失败。在护理中心Mayerhof,这个合理的方案的局限性受到质疑,而空间是在其中一个社区可以增长。各种各样的公共和开放地区增加了当地的家庭生活。
通过将疗养院定位在现场的8位图中,就会产生无限的循环,将每一层的所有房间连接起来。在这个功能图中,插入了社会互动的地方。线性走廊围绕着两个大的空隙展开,在建筑中创造了不同的视角和一种概览感。随着程序向上层的减少,梯田出现在每一层,有一个最佳的方向和保护免受风。每个房间都可以看到疗养院中心的这些开放空间,也可以看到大楼周围的绿地。其结果是一个非常轻的体积,沐浴在自然光和空间。
除了护理,三卷独立的书提供辅助生活,作为庄严的哨兵俯瞰现有的疗养院。带有露台的大开口位于疗养院与周围房屋之间的住宅区内。所有的房产都有两个或三个立面,让自然光进入生活空间,以及一个扩大的走廊,容纳共同的功能。
新的建筑物被植入到现有疗养院周围的自由空间中,在建造过程中仍在使用。联合居住区和地下通道将不同的功能结合在一起。否则,他们作为自治的部分,但生活作为一个独特的住宅护理环境的综合组成部分,重点是终身生活和护理。
选择三个入口处,建造街道和室内空间,以及大小和外观各异的建筑物,使这一新环境让人想起城市的结构,与通常居住此类项目的单调环境有很大不同。疗养院是在反射铝包层中建造的,用作阳光的帆布。辅助生活住宅有一个庄严的砌体装饰与暴露混凝土环形梁。
Mayerhof CARE校园是一个小城镇,功能和家庭生活融合在一个新鲜的环境中;社会互动、安全和不同需求的人的融合处于中心位置。它是一个由合理的结构和有尊严地衰老的地方连接在一起的社区。
摄影:蒂姆·范德·韦尔德摄影
Firm Areal Architecten
Type Government + Health › Aging Facility Medical Facility Landscape + Planning › Masterplan Residential › Apartment Multi Unit Housing
YEAR 2013
SIZE 25,000 sqft - 100,000 sqft
BUDGET $10M - 50M
keywords:architecture, architecture news, interiors, interior design, portfolio, spec, brands, marketplace, products Elderly Care Campus Mayerhof
关键词:建筑,建筑新闻,室内设计,组合,规格,品牌,市场,老年护理校园梅耶霍夫
客服
消息
收藏
下载
最近


































