查看完整案例

收藏

下载
© Fernando Guerra – FG+SG
费尔南多·格拉-FG SG
架构师提供的文本描述。1927年,利马港市集建成时,它引起了公众对其位置利弊的讨论,尽管似乎没有人对其优雅的设计提出任何负面的评论。70年后,我们仍然可以看到它与市中心和梧桐树林荫道的关系。
Text description provided by the architects. When Ponte de Lima Municipal Market was built in 1927 it was the cause of public discussions concerning the pros and cons of its location, although no negative remarks seem to have been made about its elegant design. 70 years later we can still see its somewhat domineering relationship, from the height of its granite base, with the city centre and the avenue of plane trees.
原先面向河岸的建筑有两个结构良好的机翼和三个塔,而后面的附属设施质量较低。中央庭院后来“暂时”盖上了金属结构和锌板。
The original construction facing the riverfront had two well-constructed wings and three towers, whilst the later attachments were of lesser quality. The central courtyard was later roofed over “provisionally” with a metallic structure and zinc sheeting.
© Fernando Guerra – FG+SG
费尔南多·格拉-FG SG
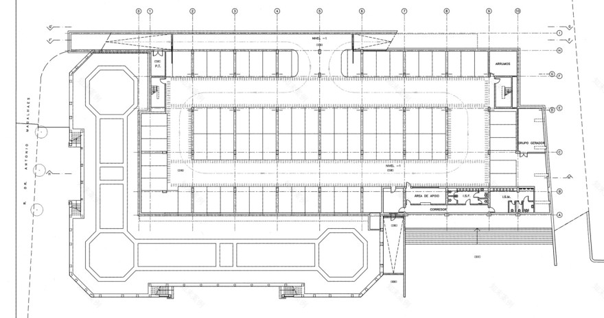
恢复市场的项目包括改造现有建筑、增加商店数量和建造一个可容纳100辆汽车的地下公园。这意味着东翼和南翼必须被摧毁。取而代之的是一个有两层商店的新楼面,它的长度和原来的机翼一样长。有了这个解决方案,市场不再是长方形的,而是U形的,内部对城市和河流开放。
The project to recover the Market involved remodelling the existing building, increasing the number of shops and building an underground park for 100 cars. This meant that the east and south wings had to be demolished. They were replaced by a new wing with two storeys of shops, which was the same length as the original wing. With this solution the market was no longer rectangular but U-shaped, and the interior was open to the city and the river.
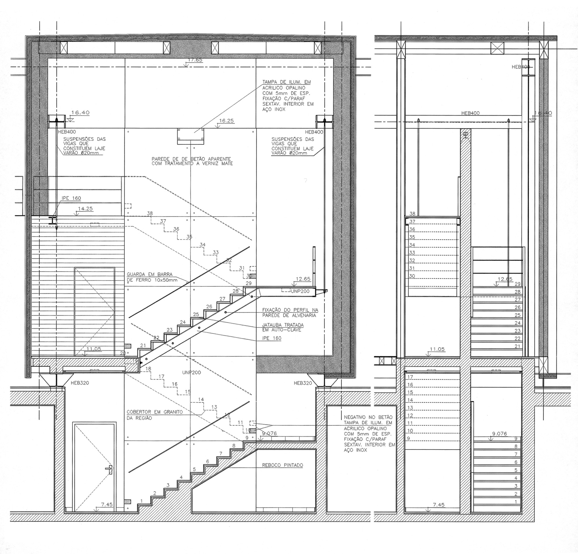
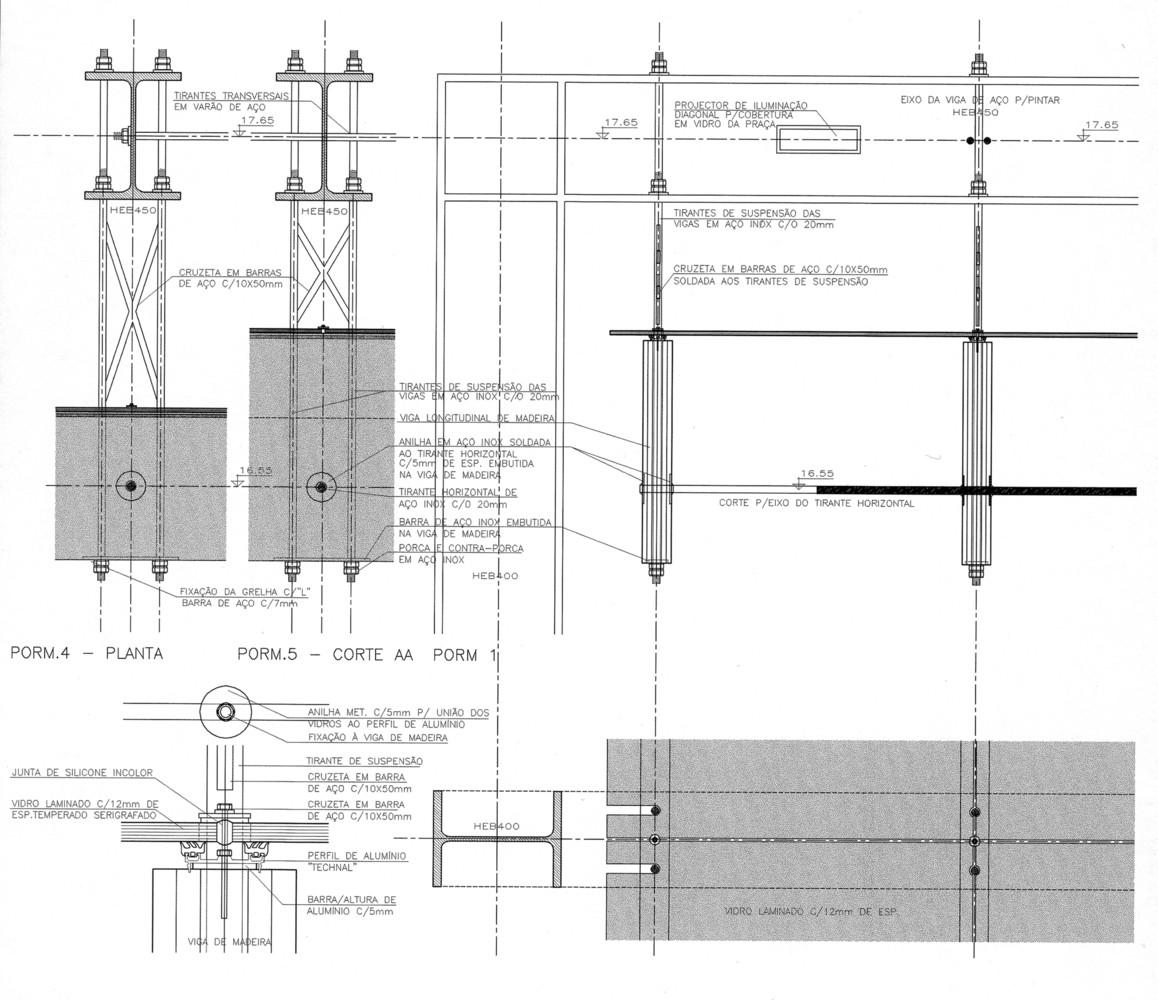
Section Detail
剖面细节
该结构是由巨大的金属框架,从悬挂木梁支撑玻璃屋顶覆盖新的广场,为模块提供必要的刚性。花岗岩铺路是由现有基地的水平决定的,以防止利马河水位的周期性上升。
The structure is punctuated by great metallic frames from which are suspended the wooden beams that uphold the glass roof covering the new square, providing the module with the necessary rigidity. The granite paving was determined by the level of the existing base, to protect against the periodic rises in the level of the River Lima.
Courtesy of Guedes Cruz Arquitectos
古德斯·克鲁兹·阿奎托斯提供
在这个项目中,所使用的结构材料和覆盖物标志着什么是永久的和什么是暂时的。因此,基地,现在用来停车,和三个现有的翅膀是明显地区别于新的屋顶和商店的新翼。
In this project the structural materials and coverings used mark the difference between what is permanent and what is transitory. Thus the base, now used for parking, and the three existing wings are clearly distinct from the new roof and the new wing of shops.
前者,在传统的坚固的砖石砌体中,保持他们对现场的承诺,并防范河水的暴力。后者由木头制成,覆盖着铜和玻璃,透光透明,使广场充满了光明和阴影,使传统市场焕发生机。
The former, in traditional robust masonry, maintain their commitment to the site and guard against the violence of the river’s flood waters. The latter, made of wood and covered in copper and glass, breathe lightness and transparency, filling the square with light and shadow and bringing to life the traditional market.
© Fernando Guerra – FG+SG
费尔南多·格拉-FG SG
Architects Guedes Cruz Arquitectos
Location 4990 Ponte de Lima, Portugal
Category Market
Area 4998.0 sqm
Project Year 2002
客服
消息
收藏
下载
最近
























































