查看完整案例

收藏

下载
该大楼位于玛丽亚·迪亚斯·德哈罗街,靠近大比尔巴鄂市的主要大道。地块位于毗邻建筑物的党墙之间20米,深70米,是毕尔巴鄂Ensanche(拓宽城市)街区之一的一部分。
The building is located in María Díaz de Haro Street, close to the main avenue of the city of Bilbao, the Gran Via. The plot measures 20 metres between the party walls of the adjoining buildings by 70 metres deep, and forms part of one of the blocks of the Ensanche (widening of the city) of Bilbao.
© Aitor Ortiz
C.Aitor Ortiz
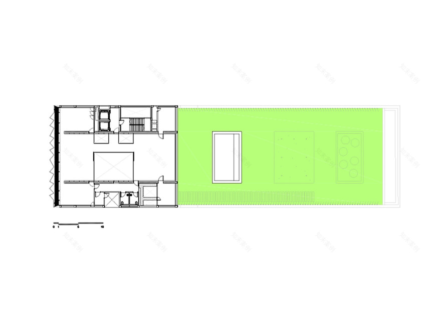
在地下,大楼占据了整个地块。建筑物在地面上有25米深,符合规划条例规定的标准。
Below ground, the building occupies the entire plot. Above ground, the building is 25 metres deep, following the criteria established in the planning regulations.
© Aitor Ortiz
C.Aitor Ortiz
该节目是按楼层组织的,这取决于建筑物不同用途的出入控制程度。
The program is organized by floor, depending on the degree of access control of the different uses of the building.
© Aitor Ortiz
C.Aitor Ortiz
一楼、一楼和地下室一楼的一部分供公众免费使用:主大厅、接待区和几个展览室,也可用作多功能空间。通过底层的大厅,可以进入花园,这是一个可容纳不同用途的空间,如露天展览、阅读区或放映电影的区域。
The ground floor, first floor and part of the first basement floor are for free access public uses: the main lobby, reception area, and several exhibition rooms that can also be used as a multifunction space. Through the lobby on the ground floor, the garden is accessed, a space designed to accommodate different uses such as open-air exhibitions, a reading area or area for film projections.
© Aitor Ortiz
C.Aitor Ortiz
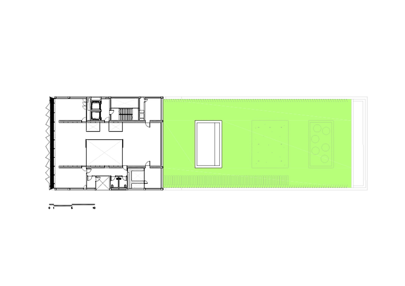
二楼是阅览室和文件咨询区,供公众在招待会认可后进入。
On the second floor is the reading room and documentation consultation area, accessed by the public upon accreditation at reception.
© Aitor Ortiz
C.Aitor Ortiz
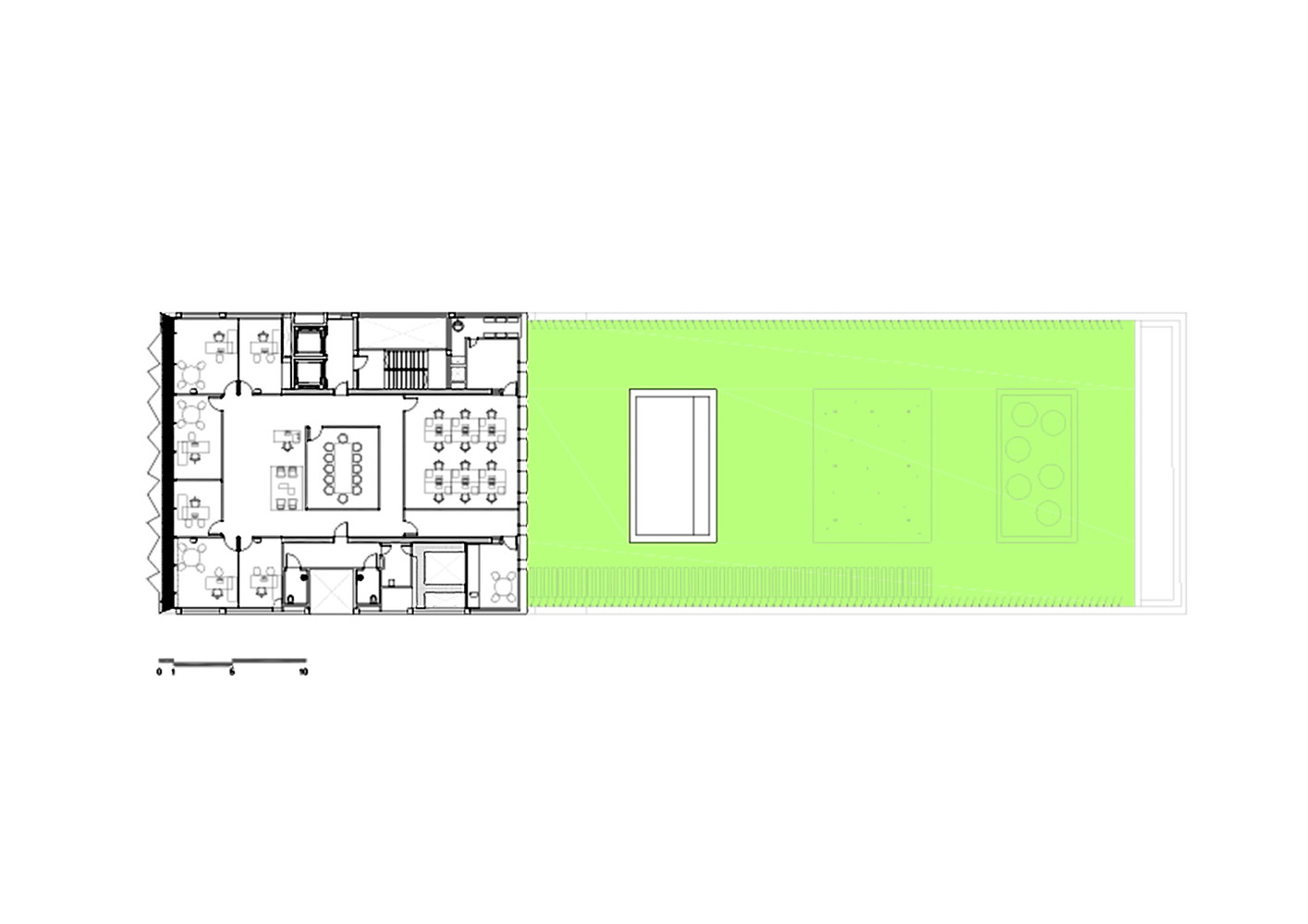
地上其余的楼层是行政区域、实验室和文件处理区。这些都是非公用区域。地下,也供私人使用,是文件库,会议室和停车设施。这些空间是通过汽车升降机从街道水平直接进入的。
On the remaining floors above ground are the administration areas, laboratories, and documentation processing areas. These are all non-public use areas. Below ground, and also for private use, are the document vaults, meeting rooms and parking facilities. These spaces are accessed directly from the street level by a car lift.
© Aitor Ortiz
C.Aitor Ortiz
主立面被设计成一个振动的玻璃正面,它增加了对建筑物的感觉,打破了街道的平整度,强调了它的位置。该设计追求高度的透明性,允许从外部理解建筑物和结构的工作原理。外面的玻璃皮是用保存在档案中的一些文件的文本摘录来印刷的,这样的话,建筑物就不会被视为密封的地方、私人的和与公民隔绝的地方。
The main façade has been designed as a vibrating glass front that increases the perception of the building, breaking with the flatness of the street and emphasizing its location. The design seeks great transparency, allowing the workings of the building and the structure to be understood from the exterior. The outer glass skin is printed with extracts of texts from some of the documents preserved within the archive, in such a way that the building is not seen as sealed place, private and closed off from the citizen.
© Aitor Ortiz
C.Aitor Ortiz
室内外墙的设计语言力求与街区其他建筑建立正式对话,同时保留建筑的当代特征。这个立面和花园试图向庭院的使用者展示一种友好的形象,在Ensanche的建筑中显出一种通常不为人所知的类型。
The interior façade has been designed with a language that tries to establish a formal dialogue with the rest of the buildings of the block, while retaining the contemporary character of the building. This façade and garden seeks to project a friendly image to the users of the courtyard, dignifying a typology normally uncared for in the buildings of the Ensanche.
© Aitor Ortiz
C.Aitor Ortiz
在建筑物内部,我们选择了双高天花板,并设置了可见的过境点,这将丰富建筑物内不同用途之间的关系。计划的工作领域是明确的,没有列栏,灵活,以便于适应可能的职能变化。
In the interior of the building, we have opted for double height ceilings, with visible crossing points that will enrich the relationship between the different uses existing in the building. The planned work areas are clear, free of columns and flexible in order to facilitate adaptability to possible functional changes.
© Aitor Ortiz
C.Aitor Ortiz
由于该项目大部分是在地下开发的,因此最大限度地利用了自然光和通风设施,使进入地下20米处的文件库或车库的大堂拥有自然光和通风设施。垂直通讯的核心和地面上建筑物的厕所核也有自然光。因此,大部分的空间和区域的流通是明亮和愉快的。
As much of the program has been developed underground, the use of natural light and ventilation has been maximized, in such a way that the lobbies to access the document vaults or garage, which is 20 metres below ground level, have natural light and ventilation. The nucleus of vertical communications and the nucleus of the lavatories of the building above ground level also have natural light. As a result, most of the spaces and areas of circulation are bright and pleasant.
占整个地块的地下室的墙壁是使用水文构造技术执行的,允许在岩石地形开始挖掘之前终止这些墙。这一决定意味着地下室工程的执行时间缩短了,振动对相邻建筑物的影响也明显减少。一些周围的建筑已经有将近100年的历史了。
The walls of the basement, which occupies the entire plot, have been executed using the hydrofraise technique, allowing them to be terminated before excavation commenced on the rock terrain. This decision meant that the execution times of the basement works were shortened and effect of vibration on the adjacent buildings was significantly reduced. Some of the surrounding buildings are almost 100 years old.
© Aitor Ortiz
C.Aitor Ortiz
地下室前三层的主要用途是一个文件档案,可容纳20公里的排架;配有控制温度和湿度的空调系统,以及使用灭火雾的防火系统。
The primary use of the first three basement levels is that of a document archive, with capacity for 20 linear kilometres of shelving; equipped with an air conditioning system to control temperature and humidity, as well as a fire protection system using mist extinguishing.
设计了一种高效的空调系统,该系统结合了焓回收和自由冷却系统,充分利用了内部和外部条件,降低了能耗。此外,在这座大楼的庭院里,还设计了一座花园,在进气冷却器周围种植植被,这将有助于在一年中最热的几个月里冷却空气,从而使系统以更有效的方式运作。
A highly efficient air conditioning system has been designed which incorporates an enthalpy recovery and free cooling system, taking full advantage of the internal and external conditions to reduce energy consumption. In addition, in the courtyard of the block, a garden has been designed with vegetation around the air intake chiller which will help to cool the air in the hottest months of the year, allowing the system to function in a more efficient way.
由于使用高性能设备和利用漫射光照亮地下室和车库的所有活动区域,照明所需的能量是有限的,如上所述。尽管有20米深,但使用浅色和光井,使这些空间白天明亮,不需要人工照明。
The energy used for lighting is limited through the use of high-performance equipment and taking advantage of diffused light to illuminate all the areas of movement in the basements and garage, as mentioned above. Despite the depth of 20 metres, the use of light colours and light wells results in theses spaces being bright during daytime periods and not requiring artificial lighting.
合作者Jan Zubaurre、Javier Manjón、Oscar Ferreira da Costa Project Management Gonzalo Carro向FCO的Gabriel Bustillo支付了费用。Javier Ruiz de Prada,Agurtzane Insa Structures Miguel Angel Corcuera,Romina González Environmental EngineeringÁlvaro Gutierrez-Cabello,Rafael Pérez,Mikel Aguirre,Lorena Muñoz LightingÁlvaro Gutierrez Cabello,Miguel García,Susaeta iluminación Public Health ServicesÁlvaro Gutierrez Cabello,Lorena Muñoz Electrical EngineeringÁlvaro Gutierrez Cabello,Miguel García Telecommunications Alvaro Gutierrez Cabello Arce,Estibaliz Lekue,Ignacio Alcázar Graphic Design Natalia González Matrelle,Roberto Fernández de Gemba,Inés Uribarren Rua CAD JoséRamón Rodríguez,Carlos Olmedilla,Virginia Martín,Luis Miguel Escalona,丽贝卡·佩斯奎拉行政当局索尼娅·洛佩斯,Blanca Ugarte,Rosa Gutierrez Site Superizon Gonzalo Carro建筑施工管理加布里埃尔·布斯蒂略建筑公司
Collaborators Ion Zubiaurre, Javier Manjón, Oscar Ferreira da Costa Project Management Gonzalo Carro Costs Gabriel Bustillo, Fco. Javier Ruiz de Prada, Agurtzane Insa Structures Miguel Angel Corcuera, Romina González Environmental Engineering Álvaro Gutierrez-Cabello, Rafael Pérez, Mikel Aguirre, Lorena Muñoz Lighting Álvaro Gutierrez Cabello, Miguel García, Susaeta iluminación Public Health Services Álvaro Gutierrez Cabello, Lorena Muñoz Electrical Engineering Álvaro Gutierrez Cabello, Miguel García Telecommunications Alvaro Gutierrez Cabello Arce, Estibaliz Lekue, Ignacio Alcázar Graphic Design Natalia González Matrelle, Roberto Fernández de Gamboa, Inés Uribarren Rua CAD José Ramón Rodríguez, Carlos Olmedillas, Virginia Martín, Luis Miguel Escalona, Rebeca Pesquera Administration Sonia López, Blanca Ugarte, Rosa Gutierrez Site Supervision Gonzalo Carro Construction Execution Management Gabriel Bustillo Constructor FERROVIAL Agroman SA
客服
消息
收藏
下载
最近



















































