查看完整案例

收藏

下载
该项目位于中国东部浙江省宁波市的港口城市宁波市郊外的一个名为“地臣谷”的山脉上。
This project islocated in a mountain range called Dichen Valley, on the outskirts of port city Ningbo, located in Eastern China's Zhejiang Province.
© Martijn de Geus
(Martijn De Geus)
为了能够欣赏和尊重整个地臣谷的原始遗址,我们提出了一系列精心布置的建筑干预措施,以创造一条纯粹而独特的景观体验之路。第一个完工的建筑是一个小项目,其中包括管理办公室,工作人员和工人所需的其余场地的开发和维护。
To be able to appreciate and respect the pristine site in Dichen Valley in its totality, we propose a series of carefully placed architectural interventions to create a route of pure and distinct landscape experiences. The first finished building is a small project that houses the management offices, staff and workers required for the rest of the site's development and maintenance.
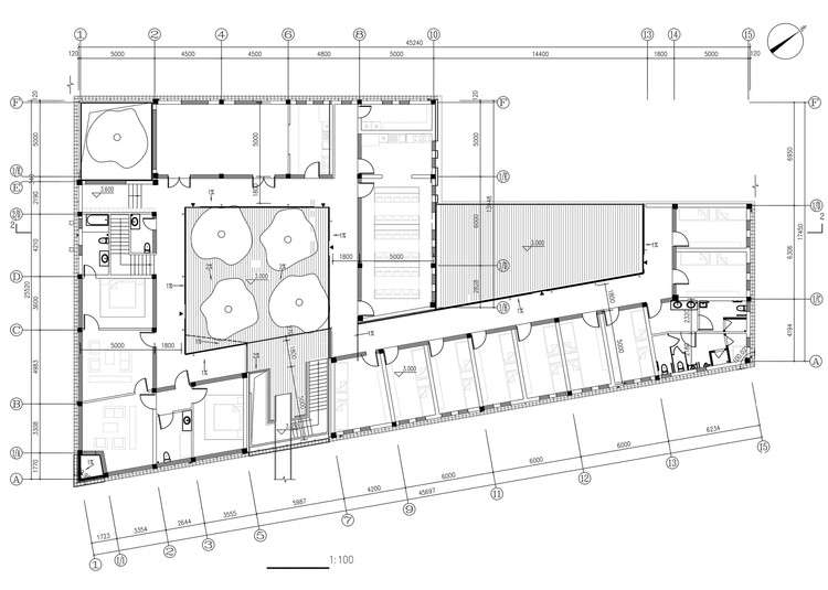
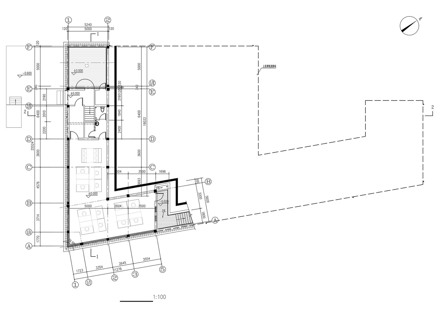
Floor Plan
我们没有在站点上平均分配功能程序,而是创建了一系列不同的世界。这些领域的气氛与任何特定地点的确切建筑工地的具体质量有关。这样,访问者就可以在项目中穿行,并沿着它的路径找到各种各样的世界。从山谷开始,穿过湿地,越过水面,在山下,在山峰上。
Instead of evenly distributing the functional program on the site, we create a sequence of different worlds. The atmosphere of these realms relate to the specific qualities of the exact building site at any given location. In this way the visitor can travel through the project and find a variety of worlds along its paths. Starting in the valley, through the wetlands, over the water, under the mountain and up the peaks.
© Martijn de Geus
(Martijn De Geus)
可持续整合
SUSTAINABLE INTEGRATION
客户和架构师共同表达的这个项目的主要目标是实现景观和架构的可持续集成。因此,我们的建筑物的位置是精心选择的,以尽量减少干扰自然条件,位于一个自然平坦的部分的山坡。在斜坡比较陡的地方,我们把两层楼合在一起。
Our main objective for this project, as mutually expressed by both the client and the architect, was to achieve a sustainable integration of landscape and architecture. Therefore the placement of our building is chosen carefully, so as to least interrupt the natural conditions, situated on a natural flattened part of the mountain slope. On the area where the slope is steeper we integrate two floors.
© Martijn de Geus
(Martijn De Geus)
其次,建筑质量和有机环境之间的关系被正面软化了,它被设想成一个包裹着屏幕的屏幕,它使建筑质量消失,成为一个内外交互作用的变化层。我们提出了一个坚固的建筑质量,由透水的正面溶解,卷曲在山坡上。
Secondly, the relation between building mass and the organic environment is softened by the facade, conceived as a wrapped around screen that makes the mass disappear and becomes a changing layer that interacts between in- and outside. We propose a robust building mass, dissolved by the permeable facade, that is curled against the mountain slope.
生活质量
QUALITY OF LIVING
我们相信,一个好的环境能够提高生活质量,这对每个人来说都应该是正确的。因此,虽然第一幢大厦是一幢“服务大厦”,目的是为日常工作或管理地盘的人士提供居所和方便,但我们亦为他们提供一个良好的优质环境,尊重他们的意愿,创造独特的生活/工作环境。这样,生活质量就得到了自然品质的补充。
We believed that a good quality environment enables a better quality of life and this should be true for everyone. Therefore, although this first building is a 'service building', meant to house and facilitate the people that will work or manage the site on a daily base, we also provide them with a good quality environment that respects their desires and creates a unique life/ work environment. In this way the quality of life is complemented by the natural qualities.
© Martijn de Geus
(Martijn De Geus)
庭院质量
COURTYARD QUALITY
为了营造一种社区感,我们划出了两个庭院空间。这些庭院形成了两个截然不同的焦点。一个面向外部,向水路开放,将办公空间与公共设施连接起来。第二个院落朝向山边,提供一个私人中心,其边缘有宿舍和卫生设施。
To create a sense of community we cut out two courtyard spaces. These courtyards create two distinct focus points. One is oriented towards the outside, opening to the water stream and connecting the office space with the communal facilities. The second courtyard is oriented towards the mountain side and provides a private focus with dormitory rooms and sanitary facilities located on its edges.
© Martijn de Geus
(Martijn De Geus)
景观欣赏
APPRECIATION OF LANDSCAPE
我们利用庭院来关注建筑周围的景观,并将人们与周围自然环境的美丽联系起来。这样,景观的欣赏就成为他们日常生活中固有的,并提供了一种强烈的依恋狄更斯山谷。
We use the courtyards to focus on the landscape around the building, and to connect people with the beauty of the natural environment around them. In this way, the appreciation of the landscape becomes inherent in their daily life and provides a strong attachment to the Dichen Valley.
CONTEXT & CRAFTSMANSHIP
除了欣赏当地的环境外,我们对当地环境的欣赏也与建筑的无形传统有关。
Apart from appreciating the local environment, our appreciation of the local context also concerns the more intangibletradition of building.
© Martijn de Geus
(Martijn De Geus)
通过了解当地砌体建筑商的工艺,我们能够创造一个非常复杂,但外观简单的砖外观,使用传统的砖工技术,结合现代工程技术。因此,我们采用了一个已知的,熟悉的概念,如实心砖墙,相反,我们创造了一个浮动,渗透和开放的砖块周围的屏幕。
By understanding the craftsmanship of local masonry builders, we were able to create a very complex, though simple in appearance, brick facade, using a traditional technique of brickwork, combined with modern techniques of engineering. We thus take a known, familiar concept, such as the solid brick wall, and instead we create a floating, permeable and open screen of bricks around the perimeter.
这就创造了一种符合中国本土的当代反应,在这种空间观念中,群众和环境不是固体物体,而是一系列相互联系的、可渗透的环境。
This thus creates a contemporary response in line with the local, Chinese, conception of space in which mass and context are not solid objects, but become a series of linked, permeable environments.
© Martijn de Geus
(Martijn De Geus)
然后,我们继续这种现代屏幕的语言,面向建筑物内聚焦的部分,庭院,私人住宅等等。我们采取了第二个本地材料,竹子,继续这种语言的屏幕,以一个更温暖,更公开的外观。竹子是本地采购和加工,再次使用现代制造技术和工程,创造层压板,或棍子,可分别用作地板或墙屏风。
We then continued this language of modern screens towards the inward focused parts of the building, the courtyards, private quarters and so. We took a second local material, bamboo, to continue this language of screens with a warmer, more public appearance. The bamboo is sourced and processed locally, again using modern fabrication techniques and engineering, that creates laminated bamboo planks, or sticks that can be used as flooring or wall screens respectively.
客服
消息
收藏
下载
最近






















