查看完整案例

收藏

下载
© Peter Bennetts
(Peter Bennetts)
© Peter Bennetts
(Peter Bennetts)
Casa 31_4客房屋重新解释了记忆、传统以及社会和文化价值在一个同时熟悉但不熟悉的丰富空间体验中的作用。
我们的建筑保存并重新诠释了过去,历史是分层的,但从未被抹去,过去的碎片不断提醒我们,我们只是这个地方丰富和不断发展的历史中的另一层。
Casa 31_4 Room House re-interprets the role of memory, tradition and social and cultural value in a rich spatial experience that is simultaneous familiar yet unfamiliar. Our architecture preserves and reinterprets the past, history is layered but never erased, fragments of the past continually remind us that we are only another layer in the rich and unfolding history of this place.
Cross Section
所有的空间都包含过去的元素,通常表现为阴谋诡计的对象,倾斜的地板(前屋顶),驳船在前篱笆上滚动,屋顶瓦片沿边界创造音乐乐谱,烟囱作为集水器,以及以前的建筑元素如甲板、大门、构架和家具的向上循环。
All spaces contain elements of the past, often manifest as objects of intrigue, the sloping floor (the former roof), the barge scrolls on the front fence, the roof tiles creating a musical score along the boundary, the chimney as water collector and the up-cycling of former building elements as decks, gates, architraves and furniture.
Drawings 4
绘画(drawing的名词复数) 4
前甲板与街道接触,重新介绍了前花园作为社交场所和聚会场所的作用和价值,这是意大利移民和希腊人过去的传统,在社会对隐私和安全的痴迷中几乎消失了。
A front deck engages with the street, re-introducing the role and value of the front garden as a social setting and meeting place. This is a past tradition by the immigrant Italians and Greeks that has almost disappeared in societies’ obsession with privacy and security.
在过去的三年里,我们探索了1936年安妮山楂联盟的女王房子刮、分层和剥落的四个主要的空间想法:
Over the last 3 years we have explored our 1936 queen anne mount hawthorn federation house scraping, layering, and peeling with 4 primary spatial ideas:
·室内的房间
· the room to the interior
·花园的房间
· the room to the garden
·走向地平线的房间
· the room to the horizon
© Peter Bennetts
(Peter Bennetts)
- 通向天空的房间
· the room to the sky
© Peter Bennetts
(Peter Bennetts)
室内空间探索存在的,多年的分层,建筑的艺术,知道什么要保留,什么要揭示什么,什么要删除,从13年沉溺于过去的知识中获得的知识。
房间成为一座城市的化身,是一座伟大城市的缩影。
The room to the interior explores what existed, years of layering, the art of construction, knowing what to keep, what to reveal and what to remove, knowledge gained from 13 years indulging in the past. Rooms become the embodiment of a city, a microcosm of the qualities that make a great city.
© Peter Bennetts
(Peter Bennetts)
到花园的房间注重地面的外部,它故意重接地与地面接触,截面扩展到外部,一系列折叠屏风层的接合。
The room to the garden focuses attention to the exterior at ground level. It is purposely heavy and grounded, engaging with the earth. The section expands to the exterior, and a series of folding screens layer the engagement.
© Peter Bennetts
(Peter Bennetts)
一个深深的感官愉悦的空间,一个建筑调色板清洁剂,过渡的地面和上层,眼睛和鼻子被烧焦和蜡胶合板墙壁和琥珀色轻投由南的50年代的滑动门。
A space of deep sensory delight, an architectural palette cleanser, transitions the ground and upper level. The eyes and nose are overpowered by the burnt and waxed plywood walls and the amber light cast by nan’s 1950′s sliding door.
© Peter Bennetts
(Peter Bennetts)
房对地平线过滤郊区屋顶,屏幕抽象外部世界,内部是一个折叠的空间形成在一个点上的观点,加强地平线。
可打开的屏幕创造一个直接的视野框架地平线,释放内部体积。
空间被冷却,用旧的Coolgardie安全的解释,水从织物上滴下来,冷却外面的空气。
新修复的1956年伊万·伊万诺夫·格思里住宅内阁在许多建筑师的车库里存放了15年后,找到了一个新家。
“我爱琳达”这幅粗线条的画留在烟囱上,一扇后窗架着远处的圣玛丽教堂。
The room to the horizon filters the suburban roof tops, the screen abstracts the exterior world, the interior is one folded space formed through a play on the one point perspective that intensifies the horizon. Openable screens create a direct view framing the horizon, releasing the interior volume. The space is cooled with an interpretation of the old coolgardie safe, water is dripped down the fabric cooling the outside air. The newly restored, 1956 Iwan Iwanoff Guthrie residence cabinet finds a new home after 15 years of storage in numerous architect’s garages. The roughly painted ‘I love Linda’ remains on the chimney, a rear window frames the distant Saint Mary’s church.
© Peter Bennetts
(Peter Bennetts)
通往天空的房间创造了一种垂直的空间体验,爱情诗的光环拥抱着我们(以前的婚礼装置),晚上,聚碳酸酯抽象化的光十字觉醒,但不像圣玛丽教堂,我们的小尖顶向天空敞开。
The room to the sky creates a vertical spatial experience, a halo of love poems embraces us (former wedding installation) and at night a cross of light abstracted by polycarbonate awakens but unlike St. Mary’s Church our little spire opens up to the heavens.
对居民生活的贡献
Contribution to lives of inhabitants
© Peter Bennetts
(Peter Bennetts)
经过4年的翻新,现在是时候享受丰富和强烈的经验,这次翻新已经创造。
每一天都是一种不同的经历,一种温柔的、意想不到的、个人化的、与历史交织在一起的体验。
这种设计使我们的孩子和我们能够在一系列的空间中成长和进化,这些空间鼓励了彼此和住所的参与,并为理解和探索家庭关系以及对空间的理解提供了新的途径。
我们的房子同时是一个纪念碑,操场,庆祝场所,舞台设置,社区互动的地方,最重要的是‘家’。
After 4 years of renovating it is now time to enjoy the richness and intensity of experience that this renovation has created. Every day is a different experience, one that is tender, unexpected, personal and embedded with history.
The design enables our children and us to grow and evolve in a sequence of spaces that encourage engagement with each other and the dwelling and offers new ways of understanding and exploring family relationships and an understanding of space.
Our house is simultaneous a memorial, playground, place of celebration, stage set, place of community interaction and most importantly ‘home’.
程序解析
Program Resolution
© Peter Bennetts
(Peter Bennetts)
该设计利用了网站的所有领域的固有灵活性,不仅日常使用,而且长期能力,以适应不断变化的需求,随着家庭的发展和年龄。
The design exploits all areas of the site with an inherent flexibility for not only day to day use but the long term capacity to adapt to evolving and changing requirements as the family grows and ages.
© Peter Bennetts
(Peter Bennetts)
它重新与街道和社区合作,允许我们的孩子在与街道和房子相连的安全环境中玩耍。空间是具体和灵活的,同时提供了充分的个人解释和使用能力。
It re-engages with the street and community allowing our children to play in a safe environment connected to the street and house. Spaces are specific and flexible, while offering sufficient capacity for personal interpretation and use.
可持续建筑范畴
Sustainable Architecture Category
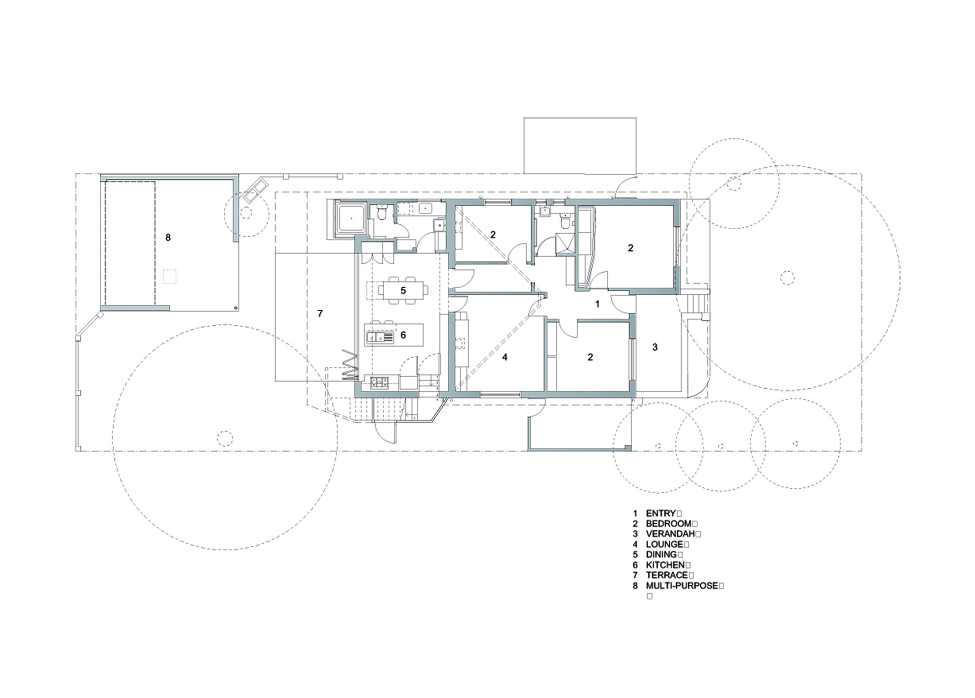
Ground Floor Plan
该项目包括对可持续性采取宏观和微观办法。它还将可持续性的含义扩大到环境以外,包括环境、社会、文化和经济方面的关切。
This project includes both a macro and micro approach to sustainability. It also extends the meaning of sustainability beyond environmental to include contextual, social, cultural, and economic concerns.
© Peter Bennetts
(Peter Bennetts)
这所房子将成为文森特市的一个例子,表明保存1935年安妮女王联合会的住宅的重要性,它有能力接受当代的生活期望,而不包括街道环境或相邻房产的隐私。附近的房子完成了“双胞胎”和“双胞胎”的街道顺序,不应该分开。
This house will be a case example for the City of Vincent demonstrating the importance of preserving the 1935 Queen Anne Federation home with the capacity to embrace contemporary expectations of living, without comprising the street context or privacy of adjoining properties.
The neighbouring house completes the street sequence of ‘twins’ and twins should never be separated.
© Peter Bennetts
(Peter Bennetts)
将材料从现场移走的做法尽量减少,一种“升级”的态度确保曾经被隐藏在结构用途上的材料现在被用于家具、甲板、门框和构架。
The removal of material from site is minimised, an attitude of ‘upgrading’ ensures that materials once concealed for structural purposes are now used for furniture, decks, doorframes and architraves.
© Peter Bennetts
(Peter Bennetts)
上下层的空间被保护不受低而强烈的夏季阳光的影响,木材框架固定,可操作的屏风,上层采用人工操作的网状系统冷却,将水滴到织物上,热移动的空气迅速冷却,这是珀斯最大的‘Coolgardie安全’,一种19世纪的低科技制冷系统,被Coolgardie WA金矿工人用来冷却可食用物品。
窗户是战略性的位置,以最大限度的交叉通风或冬季增温(北面高亮窗口与深揭示为遮阳)。
The upper and lower level spaces are protected from the low, intense summer sun with timber framed fixed and operable screens. The upper level is cooled with a manually operated reticulation system that drip feeds water onto the fabric. Hot moving air is rapidly chilled. This is Perth’s largest ’Coolgardie Safe’, a 19th-century low-tech refrigeration system used by the Coolgardie WA gold miners to cool edible goods. Windows are strategically located to maximize cross ventilation or for winter heat gain (north facing highlight window with a deep reveal for shading).
© Peter Bennetts
(Peter Bennetts)
所有的室内空间都保留着过去的元素,历史是层次分明的,但永远不会被抹去。低能照明配件、回收光配件、低用水和储水、光伏电池和太阳能热水系统都是可持续发展方程的一部分,但也是重点。
All interior spaces preserve elements of the past, history is layered but never erased. Low energy light fittings, recycled light fittings, low water use and storage, pv cells and solar hot water systems all form part of the sustainable equation but is the focus.
© Peter Bennetts
(Peter Bennetts)
经济是通过再循环、恢复、重新诠释建筑材料和历史传统以及尽量减少浪费来实现的.
Economy is achieved through re-cycling, restoring, re-interpreting building materials and historic traditions and minimising waste.
© Peter Bennetts
(Peter Bennetts)
这个项目代表了一种整体的设计和居住方式,在那里记忆被保存,碳足迹被最小化,更广泛的社区的关注得到庆祝。
This project represents a holistic approach to design and dwelling, where memories are preserved, carbon footprint minimised and the concerns of the broader community celebrated.
© Peter Bennetts
(Peter Bennetts)
从现有屋顶发展而来的折叠形式实现了对周围街景和屋顶景观的重新诠释,将旧的和新的/历史的和当代的结合在一起。一个Jekyll和Hyde的质量,街道外观几乎保持不变,一个沉默的身影,一个背景,后方是外向,复杂和富有挑战性的。
Folding forms developed from the existing roof achieve a re-interpretation of the surrounding streetscape and roof-scape, binding old and new/historic and contemporary. A Jekyll and Hyde quality, the street appearance remains almost untouched, a silent figure, a backdrop, the rear is the extrovert, complex and challenging.
联合学科整合
Integration of Allied Disciplines
作为架构师,我们热衷于保持开放的讨论线,使细节能够随着项目的发展而被开发和完善。这往往涉及到再利用建筑废物的能力。
我们的结构工程师和建筑商急切地加入了这一安排,特别是建筑商的角色延伸到了传统角色之外。
As architect owners, we were keen to maintain an open line of discussion that enabled details to be developed and refined as the project evolved. This often involved the capacity to re-use building waste. Our structural engineer and builder eagerly entered into this arrangement, in particular, the role of the builder extended beyond the traditional role.
Architects: Iredale Pedersen Hook Architects, Caroline Di Costa Architect
Location: Perth, Australia
Category: Refurbishment
Project Year: 2013
Photographs: Peter Bennetts
客服
消息
收藏
下载
最近

















































