查看完整案例

收藏

下载
Gumus SU Villas位于土耳其Gümüşlük,是一个由Cirakoglu建筑师完成的项目。
这座乡村住宅的周围山峦起伏,内部崎岖温暖,景色令人惊叹。
画廊中的视图
我们推荐这些项目-D室内设计-打捞别墅
画廊中的视图
画廊中的视图
画廊中的视图
画廊中的视图
画廊中的视图
画廊中的视图
画廊中的视图
画廊中的视图
画廊中的视图
画廊中的视图
画廊中的视图
画廊中的视图
画廊中的视图
画廊中的视图
画廊中的视图
Gumus SU Villas-Cirakoglu建筑师:
“古木素居”座落于博德鲁姆古木秀山的山丘之上,是一个宁静的港湾,有着4000多年的历史文化遗产。
渴望与令人印象深刻的自然创造一个宁静的统一,构成了我们的建筑方法的基础。
这个过程产生的构图是一种最新的解释,它将当地建筑的元素和一种新的设计语言结合在一起。
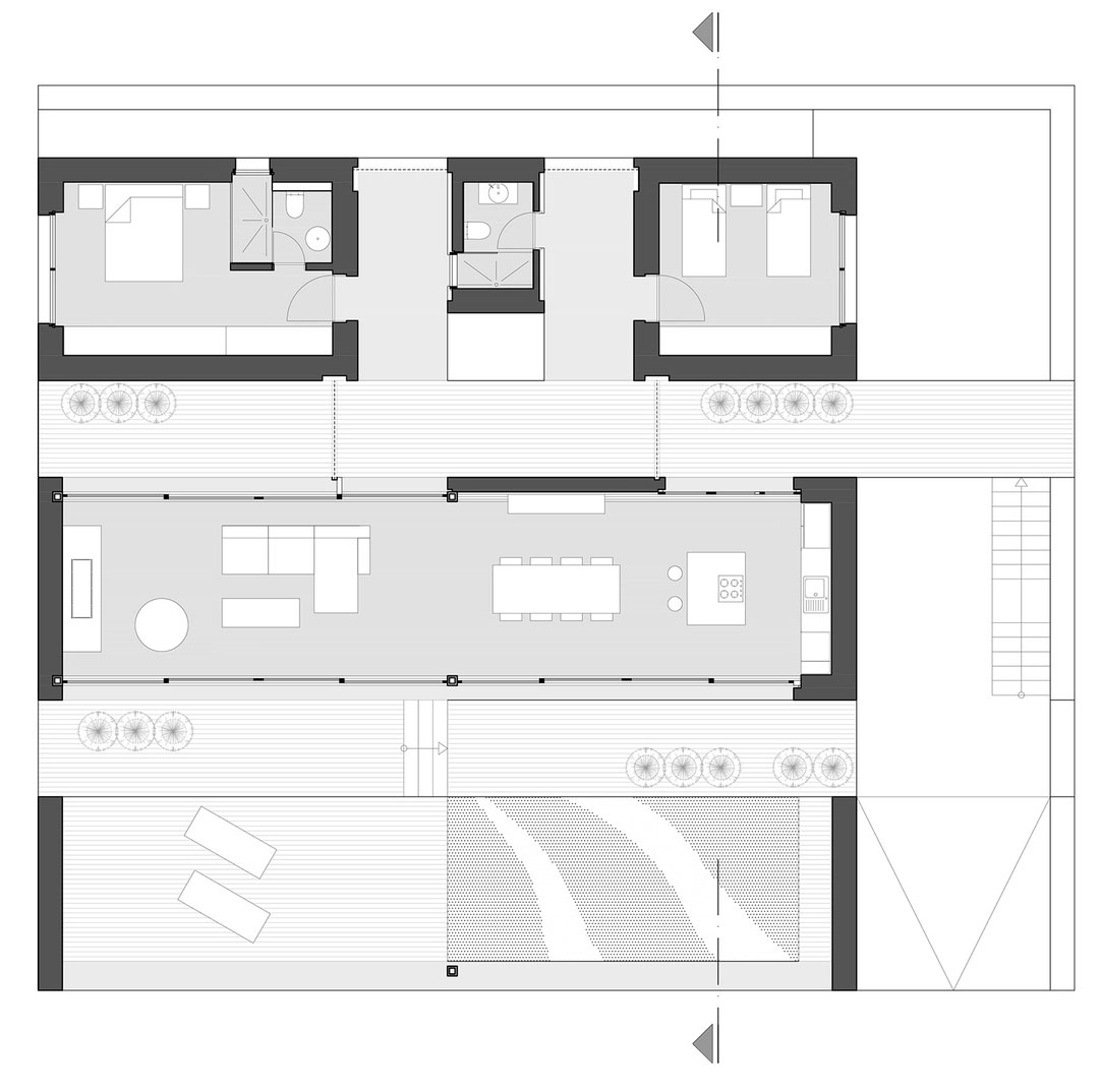
其基本思想是严格在正方形内定义单一房屋单元,在场地内重复五次,然后将其余部分留给自然处理。
构成一个单元的房间作为单独的单元分开,以便在中间形成半开放的空间。
休息室、卧室和浴室单元组成每一间房子,作为独立的区块呈现。
这些单元之间的空旷空间让人想起阴凉、狭窄的后街,让凉风吹过。
房子的露天庭院,游泳池和阳光平台被认为是建筑的内在组成部分。当所有的部分聚集在一起时,它们形成了一个独特的四边形,并被竹子做的树冠遮住了阴影。
石头墙和宽大的玻璃表面定义的最简单的时尚房子的不同区域。
现有树木的位置是场地布局的主要考虑因素之一。
独特的海景和景观也指导了布局决策。
主要关注的是利用传统方法提供能源效率。厚厚的石墙和双层墙提供足够的隔热性能。竹帘创造了一个次要的遮阳元素,以帮助保持内部凉爽。半开放的环流区域让微风进入生活空间。
几乎所有的材料都是本地和天然材料,用于周围的传统建筑。“
画廊中的视图
画廊中的视图
画廊中的视图
画廊中的视图
图片来源:塞马尔·埃姆登
keywords:Cirakoglu Architects Contemporary House Fireplace Gümüşlük Landscaping Rustic Design Stone Floors Stone Walls Swimming Pool Terrace Turkey Wood Floors
关键词:齐拉格鲁建筑师当代住宅壁炉Gümüşlük景观设计石材地板石墙游泳池平台土耳其木地板
客服
消息
收藏
下载
最近






















