查看完整案例

收藏

下载
© Alfonso Quiroga
(阿方索·基罗加)
架构师提供的文本描述。作为前兵营的Daoiz y Verlarde建筑群的一部分,其目标是保护这座建筑;这是马德里工业和军事遗产的一个有代表性的样本。
Text description provided by the architects. As part of the Daoiz y Verlarde complex of former barracks the objective is to preserve the architecture; a representative sample of Madrid’s industrial and military heritage.
© Alfonso Quiroga
(阿方索·基罗加)
从一开始,我们的想法就是尊重现有建筑的基本几何学,以及锯齿金属结构和砖砌的立面。内部空间已被空出来,为文化中心创造了一个容器,文化中心分为两个区域,分别有入口点和流通区,但它们之间有很强的视觉和空间联系,以及它们适应不同类型事件的可能性。
From the start, the idea was to respect the basic geometry of the existing building, as well as its saw-tooth metal structure and the brick-built façade. The interior space has been emptied to create a container for the Cultural Centre, which is divided into two areas with separate entry points and circulation areas, but with a strong visual and spatial connection between them, and the possibility of their adaptation to different types of events.
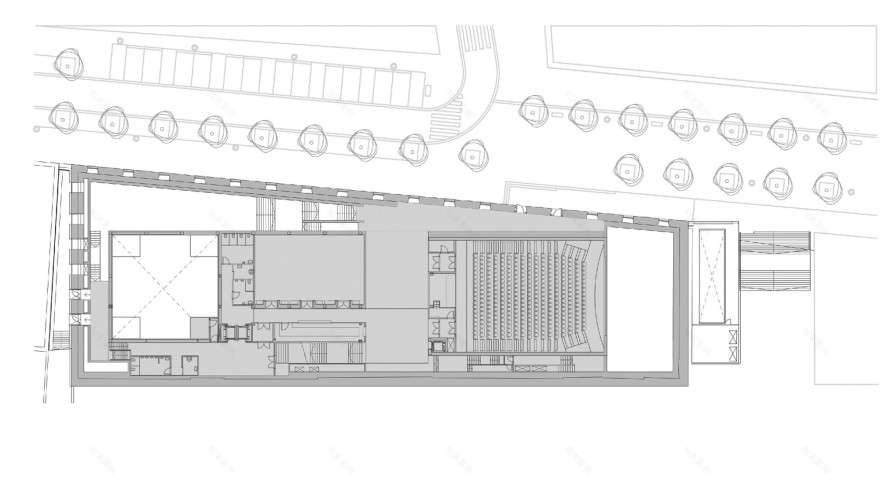
Ground Floor Plan
新创建的中间空间将原容器与新用途隔开,以突出现有建筑的特点,并设置带有外部的防护过滤器。这些中间空间建立了视觉联系,促进了空间体验的变化。
A newly created intermediate space separates the former container from the new uses to bring the character of the existing building to the fore and set up a protective filter with the exterior. These intervening spaces establish visual connections that foster variations in the spatial experience.
© Alfonso Quiroga
(阿方索·基罗加)
在入口处创造了一个宽敞的公共空间;一个会议、信息和展览的场所,就像一个被覆盖的阿格拉,就像外面的广场延伸到大楼里一样。
A generous communal space has been created at the entry points; a place for meeting, information and exhibitions, which works as a covered agora, as if the square outside extended into the building.
© Alfonso Quiroga
(阿方索·基罗加)
为了最大限度地利用自然光和通风,开发了一种高科技屋顶.
A hi-tech roof has been developed to take the best advantage of natural light and ventilation.
Longitudinal Section
可持续和节能翻新
Sustainable and energy saving refurbishing
在能源效率和可再生能源捕获系统一体化方面,对这一前工业建筑和废弃兵营进行了可持续翻修。
The refurbishment of this former industrial building, and abandoned barracks, has been made in a sustainable way as regards energy efficiency and the integration of renewable energy capture systems.
© Alfonso Quiroga
(阿方索·基罗加)
现有的砖墙外墙受到了尊重,由金属型材建造的屋顶结构也受到了尊重,并创建了一种新的混凝土板结构,它将通过其热激活作用用于建筑物的暖通空调(HVAC)。现有的屋架及其金属支柱仍悬挂在空中,而建筑物的其他内部部分则已完工。
The existing brick façade has been respected, as has the structure of the roof built from metal profiles, and a new structure of concrete slabs has been created, which will be used for the HVAC of the building through its thermo-activation. The existing roof truss and its metal pillars remained suspended in the air while the rest of the interior of the building was completed.
© Alfonso Quiroga
(阿方索·基罗加)
利用地热可再生能源对建筑物进行加热和冷却,空气-地面交换器作为一次再生空气的预处理机制。
Geothermal renewable energy is used to heat and cool the building, and the air-ground exchanger works as a pre-treatment mechanism for the primary renewal air.
© Alfonso Quiroga
(阿方索·基罗加)
采用这种暖通空调系统的建筑的最终能源成本远低于使用常规系统的成本。
The final energy cost of the building, employing this type of HVAC systems, is far lower than it would be otherwise using conventional systems.
Architects Rafael De La-Hoz
Location Calle Alberche, Venturada, Madrid, Spain
Category Cultural Center
Direction Works Rafael de la- Hoz Castanys, Silvia Villamor
Area 6850.0 sqm
Project Year 2013
Photographs Alfonso Quiroga
客服
消息
收藏
下载
最近














