查看完整案例

收藏

下载
坐落在树干状柱子上的小木屋为新加坡这座公寓楼的居民提供了室外房间,由WOHA(幻灯片)提供。
由新加坡WOHA工作室设计的古德伍德住宅由210套公寓组成,围绕着一个中央庭院,该庭院被精心种植,以创造与附近古德伍德山的视觉连接。
建筑师们说:“作为两座12层的L形建筑,这座2.5公顷的建筑与山丘的开发对话,以一种开放和连续性的语言,以不同程度的规模和隐私表现出来。”
一条绿树成荫的林荫大道从庄园的入口处通向大庭院,院子的两旁是公寓,有游泳池、会所和草坪区。
公寓楼的外墙上覆盖着铝质防晒霜,这些防晒霜可以升降,以调节住宅内的日光和隐私。
第二层和第三层的十五套公寓与室外小屋相连,这些小屋被抬高到周围树冠的高度。
从第四层到第十一层的立面上的交错阳台提供了遮荫的室外空间和12层的顶层屋顶露台,可以看到整个城市的景色。
总共有1700平方米的垂直景观美化包括在楼梯井的外部种植,而由树木和植物围绕的小水池产生装饰性的自然特征。
花园的墙壁是由从采石场打捞出来的花岗岩砌成的,而天然的裂石则是环绕庭院边缘的有盖的人行道。
摄影由帕特里克宾汉霍尔拍摄。
这是WOHA的项目描述:
新加坡古德伍德住宅
坐落在高档果园/苏格兰路附近的黑白房屋飞地中,绿草如茵的20公顷背景下,210套古德伍德住宅在宏观上被视为一个喘息的空间--这在高密度城市化的新加坡是罕见的--以及与古德伍德山(Goodwood Hill)共有150米边界的古德伍德树保护区的延伸。作为两个12层的L形大厦,2.5公顷的开发对话与山丘的拥抱和融合,以开放和连续性的语言,使不同程度的规模和隐私表现出来。
所有单元都是一套厚的公寓,街区被布置成边界墙,形成并包围了一系列庭院,这些庭院首先吸引住居民穿过一条密密麻麻的林荫大道,环绕着两个绿叶遮挡的网球场,形成了一个正式规模的鹅卵石入口庭院,其中有一簇雄伟的雨树,最后从峡谷下打开,就像一片清澈的森林灌木丛,变成一个宽阔的中央开阔的草坪/游泳池。
这个宽敞的庭院在视觉上与古德伍德山融为一体,直径约100米,跨越对面的街区,增强了居民的隐私,同时也为绿色植物提供了极好的景观。它是该开发项目的主要社区集合场所和呼吸室,配有与服务公寓平行的会所设施(门房、阅览室、私人功能室和游泳池)。较小的庭院,在遮蔽的人行道上分支,进一步延伸到地下室停车场作为入口,使回家的体验愉快,自然的阳光,新鲜的空气和种植。
在建筑规模上,独特的生活体验是精心设计的。底层单元被设计成一种新的“地产住宅公寓”类型,有高耸的天花板、宽敞的室外游泳池露台和专门设计的自动滑动门/花园窗户,这是对传统哈哈墙的现代诠释,允许业主控制隐私程度和中央草坪的视野。
站点计划-单击以获得更大的图像
俯瞰第二层和第三层的中央庭院,有15个单元,在树顶檐下设有树屋小屋,使居民沉浸在近距离的大自然中。在这条树线上方是中间层(第4层至11层),有重叠的双层阳台--半室内外空间,让人联想到黑白殖民地房屋的投影绘图工作室,从中可以充分享受到古德伍德山的开阔开阔和全景。这在12层的顶层顶层公寓中达到顶峰,这是天空平房,配有宽敞的屋顶/游泳池露台,有效地重建了一个新的地面水平,增加了通畅的城市景观和高空凉风的优势。
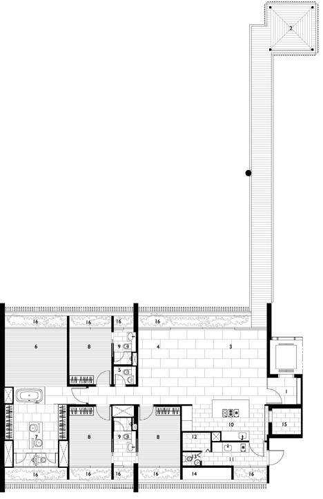
三楼平面图-按一下以获取更大的图像
所有典型的公寓单元(2层以上)都以传统亚洲编织纺织品的图案和附近黑白殖民地房屋的竹子雏鸡为灵感,所有公寓单元(2层以上)都采用了位于南北45度的铝质细鳍,设计成可操作的立面屏风,不仅提供垂直遮阳而不影响通风,还允许用户控制一定程度的隐私,以及正面动画。1米宽的播种机,再加上2.7m或4.5m深的突出阳台,进一步为下面的公寓提供垂直绿化和水平遮阳。
卡巴纳四卧室单元平面图-点击以获得更大的形象
从一开始就考虑到可持续的设计原则,该项目展示了其他几个(以下所列)创新的环境特征,并表明,采用这种绿色措施的成本只比建筑成本高1%,如果在设计过程早期采用,就不必付出很高的溢价。估计这些实施节省的费用约为60万美元,用于家庭和公共地区的年度水电费,相当于每月维修费用减少20%。古德伍德住宅被新加坡建筑和建筑管理局授予著名的绿色马克白金奖。
典型的一楼四卧室单元图-点击以获得更大的图像
除了古德威尔山的绿色之外,还有55棵现存的树木被保存下来,还有大约500棵原产于东南亚的新树。这是由大约1,700平方米的垂直景观和中央大草坪的发展中心加强。近80%的庄园专门用于景观美化和公共设施。
典型的四卧室单元图-点击以获得更大的图像
智能水管理
为了最大限度地减少饮用水的使用,设计了一个自给自足的灌溉系统,该系统在雨水和灌溉水和地下水的灌溉下,在雨季和旱季灌溉植物。这是由于场地的高水位和山脚位置而成为可能。作为过滤器的芦苇种植床进一步提供了沿着水迁移路径的自然生物过滤过程,以便在储存下一个灌溉周期之前改善水质。
主区域-点击以获得更大的图像
用户友好的双气动滑槽
为方便居民,我们在公共服务大堂同时提供有机废物和可循环再造废物的独立垃圾槽,并与发展中的气动废物系统连接,无须在屋内设置多个垃圾收集站。
部分-单击以获取更大的图像。
零建筑废物概念
古德伍德住宅的内墙100%是由来自于原有建筑墙和结构的再生集料建造的。
部件部分-单击以获得更大的图像。
客服
消息
收藏
下载
最近























