查看完整案例

收藏

下载
© Philippe Ruault
菲利普·鲁奥
© Philippe Ruault
菲利普·鲁奥
这座建筑位于巴黎第19区,位于乌尔克运河和“娇小的城市”铁路之间,如今已经停用。这个社区正在进行完全的重组,建造了许多住宅建筑。
The building is located in the 19th district of Paris, between the Ourcq canal and the 'petite ceinture' railroads, today out of use. The neighborhood is in complete restructuring, with the construction of many dwellings buildings.
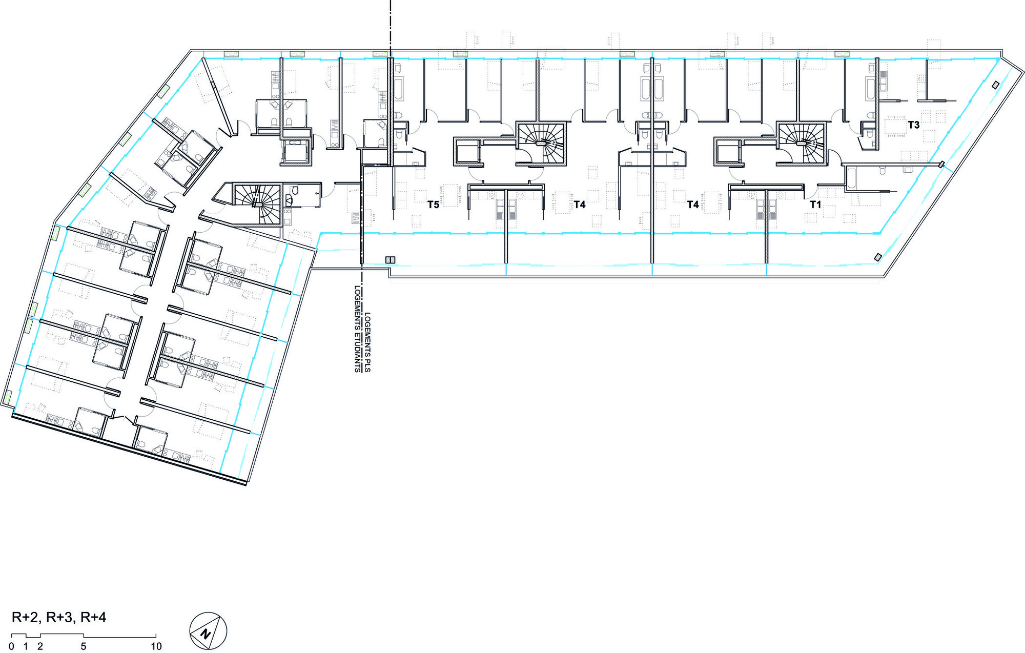
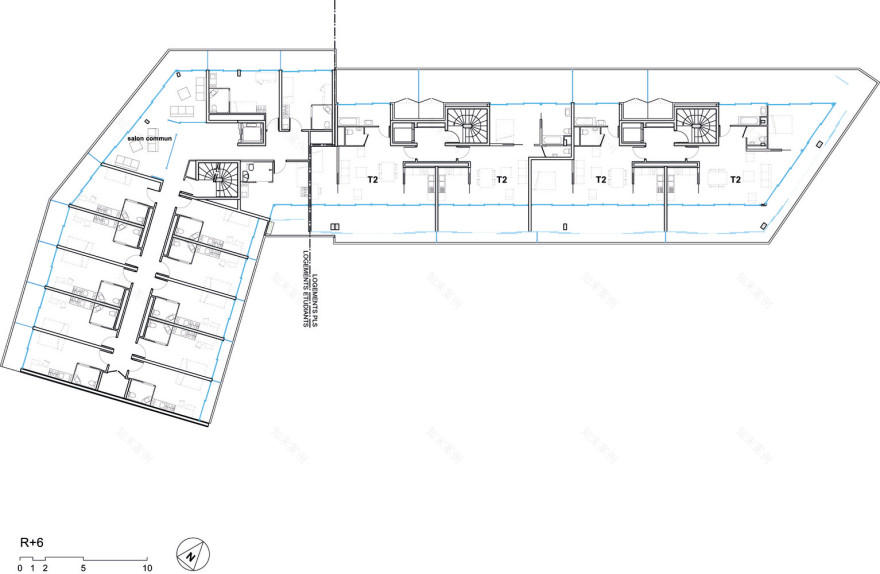
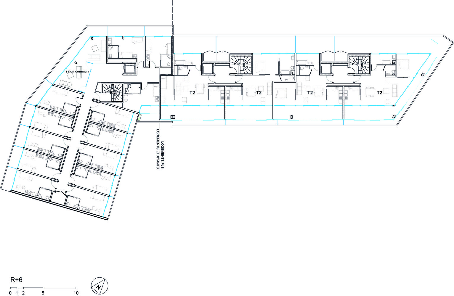
Second, Third, Fourth Floor Plan
二、三、四楼图则
该建筑业务包括98所学生住宅和30所社会住房,以及一家专门护理之家和3家商店。该项目提供宽敞的住所,并尽可能使居民有机会在花园和街道上享受这两种情况。
The building operation includes 98 students dwellings and 30 social dwellings as well as a specialist care home and 3 shops. The project provides spacious dwellings and gives, as much as possible, the opportunity to the inhabitants to enjoy the 2 situations: on the garden and on the street.
© Philippe Ruault
菲利普·鲁奥
所有的社会住宅都是经过或双重导向的。客厅和厨房位于花园一侧,向南或东南方向开放,有2,10米深的冬季花园,面积9至28平方米,有一个1米深的阳台。卧室和主浴室都有很好的釉面,位于北面,通往一个连续的阳台。
All the social dwellings are running through or double-oriented. The living rooms and kitchens are on the garden side and open on to a 2,10m deep wintergarden, south or south-east orientated, from 9 to 28 sqm, extending in a 1m deep balcony. The bedrooms and main bathrooms, well glazed, are on the north façade, and open on to a continuous balcony.
© Philippe Ruault
菲利普·鲁奥
学生的住所,从19平方米到23平方米,开放在一个大窗户的阳台上,在街道边。在花园一侧,大部分客房都是在阳台上延伸至370平方米的冬季花园。在内部,预制浴室被优化,以提供更多的空间给客厅。
The students dwellings, from 19 to 23 sqm, open on a balcony by a large window, on the street side. On the garden side, most of the rooms open on to a 3,70 sqm wintergarden extending in a balcony. Inside, the prefabricated bathrooms are optimized to offer more space to the living room.
Cross Section
在花园一侧,一楼由专科护理之家计划使用,容纳6名永久居民。房间和居住空间有利于东南方向。他们打开一个花园,种植简单的开花品种。在街道边,一楼被商店占据。
On the garden side, the ground floor is used by the specialist care home program, hosting 6 permanent residents. The rooms and living spaces benefit the south-east orientation. They open on a garden, planted with simple flowering strain species. On the street side, the ground floor is occupied by the shops.
© Philippe Ruault
菲利普·鲁奥
冬季花园和阳台为每个住宅提供了一个私人的户外空间,提供了在集体环境中居住的可能性,同时又是一个家。结合热窗帘和阴影窗帘,他们确保在冬季和夏季室内气候条件(热舒适)和节省能源,在一个生物气候方法。
The wintergardens and balconies give each dwelling a privative outdoor space that offers the possibility to live outside in a collective context, while being home. Combined with thermic and shadow curtains, they insure a fonction in the winter and summer indoor climatic conditions (thermal comfort) and savings on energies, within a bioclimatic approach.
对于城市环境下的生活质量至关重要,这些私人户外空间使公寓条件更接近于你可以在一个单独的房子里拥有的设施和乐趣。
Essential to the life quality in an urban context, these privatives outdoor spaces make the appartment conditions closer to the facilities and pleasure you can have in an individual house.
Architects Lacaton & Vassal
Location 19th arrondissement of Paris, Paris, France
Category Retail
Architect in Charge Anne Lacaton & Jean Philippe Vassal
Project Manager Gaetan Redelsperger
Area 5740.0 sqm
Project Year 2013
Photographs Philippe Ruault
客服
消息
收藏
下载
最近














































