查看完整案例

收藏

下载
架构师提供的文本描述。悬挂在布鲁塞尔郊区E 429高速公路边缘的“灯笼”为瓦隆地区的可持续经济发展提供了新的参考。这座建筑的里程碑式建筑在公路上日夜可见,可供出租的办公空间和日托中心之用。
Text description provided by the architects. Hanging in the air on the edge of the E429 highway in the outskirts of Brussels, the "lantern" establishes a new reference in sustainable economical development for the walloon area. Designed to shelter office spaces available for rental and a day care center, this architectural milestone is visible from the highway by day and night.
© Julien Lanoo
朱利安·拉诺
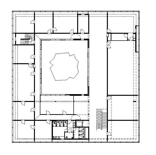
这些办公室和会议室围绕着一个铺着木制包层的露台组织起来,位于地面上方,在上层。日托中心在办公楼下面滑动,试图在两者之间建立一种社会联系。建筑结构的设计允许办公室被悬臂起来,在底层创造一个连续的景观。接待处周围的公共空间、三层大厅和大开口的流动性、易于辨认,为大楼的日常运作增添了质量。大楼的蓝图往往会在办公室里的使用者和工作人员与那些偶尔租用会议室的人之间产生愉快的气氛。
Organized around a patio covered with wooden cladding, the offices and meeting rooms are located above the ground, on the upper floors. The day care center slides underneath the office building in an attempt to create a social link between the two. The design of the building’s structure allows the offices to be cantilevered, creating a continuous landscape on the ground floor. The fluidity, the easy spotting of the common spaces organized around the reception, the three level hall and the large openings, add quality to the everyday functioning of the building. The blueprint of the building tends to generate conviviality between the users and workers in the offices and those who only rent meeting rooms occasionally.
© Julien Lanoo
朱利安·拉诺
已建立的环境友好型技术(双表皮立面、地面耦合换热器、双流通风系统)将加热和冷却的能量需求降低到常规办公楼的65%。项目的挑战之一是利用这些目标将它们与体系结构目标结合起来。因此,在玻璃墙上用银色标志划线的双层皮肤外墙就成了景观中的一个信号。
The environment friendly techniques that have been set up (double-skin facade, the ground coupled heat exchanger, the double-flow ventilation system) reduce the energetic needs for heating and cooling down to 65% of those of a conventional office building. One of the challenges of the project was to take advantage of those objectives to combine them with architectural objectives. Thus, the double skin façade, underlined by a silver signage, on the glass wall becomes a signal in the landscape.
客服
消息
收藏
下载
最近
































