查看完整案例


收藏

下载
Houses, Vaucluse, Australia
设计师:Sofair Design
年份:2020
摄影:Josh Hill
建造商: Boffi tapware, Dincel Structural Walling, ERCO lighting, Kazimir sliding doors, Kitchen and selected joinery
Lead Architect:Jeff Sofair
Engineer:James Taylor and Associates
Builder:Rob DeLuca
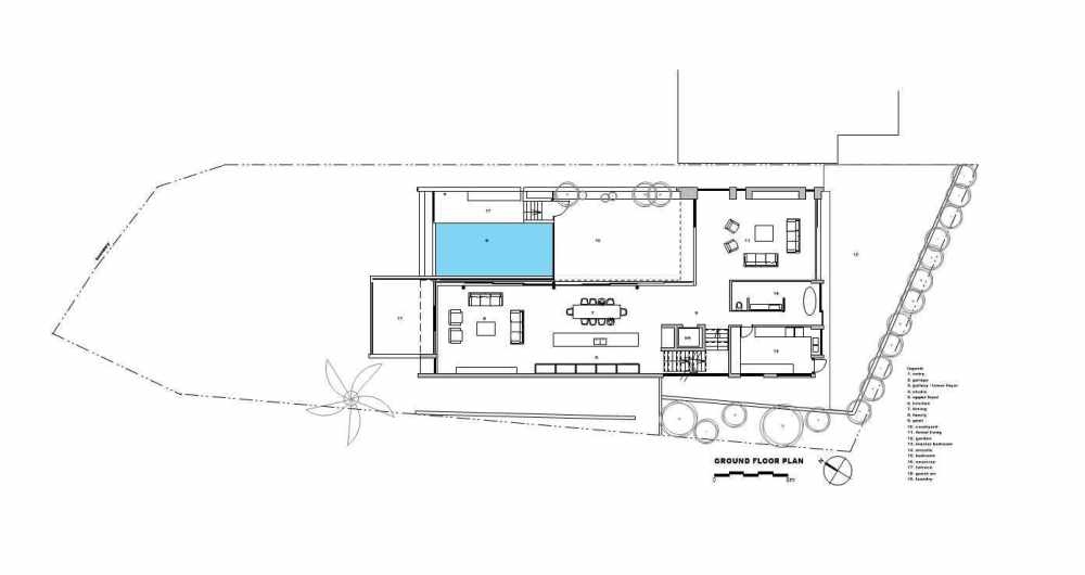
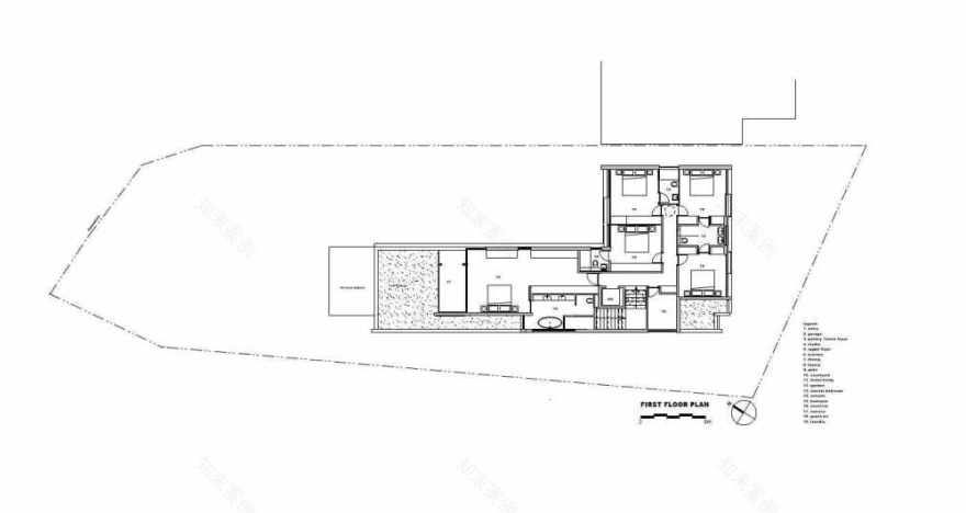
Villa Eze is a new family dwelling set on a secluded site above Parlsey Bay Reserve and Sydney Harbour. The house was designed for a prominent Irish artist and fashion designer with 4 children and is the result of a close collaboration over the last 9 years. The house was named after the French Meditteranean town of Eze renowned for its elevated views over the sea. An L shaped plan was adopted to create a private enclave maximising northern views of Sydney Harbour and minimising the presence of neighbouring houses.
The spatial sequence of the house is intentionally organised as repeated movements towards the view (being the Australian sky and the stunning natural elements of Sydney Harbour) and away from the view (being our everyday existence and tasks of necessity). The longitudinal nature of the house reinforces this movement.
The spatial experience of the house reminds and makes us conscious of the value of viewing nature and invites the users to stop, look, listen and feel which is at the core of the clients own artistic processes. The materials palette of the house is minimal and monochromatic. This allows the colours and natural light to take centre stage. The architectural stage is the courtyard from which one simultaneously view the house and the harbour and sky.
The movement from inside to outside is intentionally manipulated as a strong and provocative juxtaposition. One moves across the threshold of seamless sliding doors (over 25 linear metres of open facade) from the concrete house (man-made and containing) to the courtyard open to the Harbour and sky (to be enveloped in the limitless sky).
项目完工照片 | Finished Photos
设计师:Sofair Design
分类:Houses
语言:英语
阅读原文
客服
消息
收藏
下载
最近































