查看完整案例

收藏

下载
© Yves André
(Yves André)
本项目旨在组织和扩展法属瑞士沃州农村的工业总部建筑群,探讨建筑群与其所处乡村景观之间的丰富关系。
This project to organize and extend an industrial headquarters complex in the countryside of the French Swiss canton of Vaud explores the richness of the relationship between the built ensemble and the rural landscape it occupies.
© Yves André
(Yves André)
自1974年以来,作为制造包装材料机械的主要生产商之一的Bobst集团,在大洛桑以西的一个田园地区占据了这29公顷的土地,横跨Mex、Villars-Sainte-Croix和Vufflens-la-Vufflen-la-Vufflens-la-Ville三个社区。
Since 1974, the Bobst Group, one of the major producers of machinery for the manufacturing of packaging materials, has occupied this 29-hectare parcel in a bucolic setting to the west of greater Lausanne, straddling the three communes of Mex, Villars-Sainte-Croix, and Vufflens-la-Ville.
© Yves André
(Yves André)
2012年,Bobst决定将其所有生产活动集中在MEX。该网站主入口的一座新建筑可容纳6,100平方米的办公空间,以及4,000平方米的展厅和培训设施。在场地的另一端,在一个现有的运动场和体育馆旁边,设计了第二栋新建筑,用来容纳一家餐厅-一个玻璃展馆,提供远近景观的景观-还有一个日托中心,可容纳多达40名儿童。在此基础上,扩大了现有的生产设施,使工厂面积增加了14,300平方米。
In 2012, Bobst decided to centralize all of its production activity in Mex. A new building at the main entrance to the site was designed to accommodate 6,100 square meters of office space as well as a 4,000 square meters showroom and training facility. At the other end of the site, next to an existing sports field and gymnasium, a second new building was designed to house a restaurant – a glass pavilion offering views of the near and distance landscape – and a day care center for up to 40 children. Across from this, an existing production facility was extended to increase factory space by 14,300 square meters.
© Yves André
(Yves André)
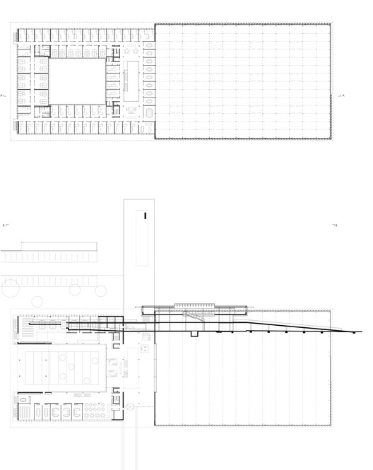
长方形主楼的一边是展厅和活动中心的广阔空间,另一边是庭院花园的“空地”,四周环绕着用作公司行政中心的有玻璃的办公室和会议空间。入口大厅与其双高度中庭连接这些不同的节目,并提供全景的看法,同时包括所有这些。延伸到景观中,建筑物的水平图形被屋檐的直线加强,这与场地自然地形的起伏特征形成鲜明的对比。这一水平是突出了600米长的“阿尔卑斯长廊”由L‘Atelier du Paysage设计,其狭窄的石质泳池沿着中轴线一直延伸到一个宽阔的坡道,通向正门。
One side of the long main building houses the great expanse of the Showroom and Competence Center; on the other side, the "clearing" of the courtyard garden is surrounded by glazed office and meeting spaces that function as the company's administrative center. The entrance hall with its double-height atrium connects these various programs and offers panoramic views that simultaneously embrace all of them. Extending into the landscape, the horizontal figure of the building is reinforced by the straight line of the eaves, in stark contrast to the undulating character of the site's natural topography. This horizontality is accentuated by the 600-meter-long “Promenade des Alpes” laid out by L’Atelier du Paysage, with its narrow stone-lined pool running down the middle on axis with a broad ramp that leads up to the main entrance.
© Yves André
(Yves André)
长廊有效地发挥了脊柱的作用,将Bobst总部建筑群作为一个整体,而主建筑则成为嵌入在周围乡村景观中的线性参照物,呈现出一个宏伟的屋顶,其下有各种各样的管理、培训和展示项目。这种与景观的对位关系,是该项目的主要主题之一,以及自然光的处理,也体现在材料的选择上。
The promenade effectively functions as a spinal column structuring the Bobst headquarters complex as a whole, while the main building becomes a linear reference embedded in the landscape of the surrounding countryside, taking on the appearance of a grand roof beneath which are sheltered programs as diverse as administration, training, and display. This contrapuntal relation to the landscape, one of the main themes of the project along with the handling of natural light, is also expressed in the choice of materials.
© Yves André
(Yves André)
展厅的正面用倾斜的垂直不锈钢板衬托,巧妙地唤起了现场另一端的工业活动所共有的一种材料;同时,它也反映了不断变化的天空模式和颜色的形象,以及田园环境的微妙品质,无处不在的耕地给反光立面带来了金色的色彩。
The facade of the Showroom, revetted with canted vertical stainless steel plates, subtly invokes a material common to the industrial activity taking place at the other end of the site; at the same time, it mirrors the image of the constantly changing patterns and colors of the sky as well as the subtle qualities of the pastoral environment, with the ubiquitous cultivated fields bringing a golden tinge to the reflective facades.
Floor Plan
客服
消息
收藏
下载
最近






















