查看完整案例


收藏

下载
Casas, Wellesley, Estados Unidos
设计师:Flavin Architects
面积:242 m²
年份:2019
摄影:Nat Rea, Peter Vanderwarker
提供协助:Lutron, AutoDesk, Bona, Trimble, Benjamin Moore, Bison, Eaton/Cooper Lighting Solutions, Feeney, GARAGA, Global Industrial, Henry Company, Hinkley, Jesco Lighting Group, Kemper System, Loewen, Mitsubishi Electric, Penofin, RAB Lighting, Semco Southeastern Metals, Tnemec
负责建筑师:Colin Flavin, Howard Raley
业主:Kathy and Ed Kelly
工程师:Webb Structural Services
Paisajismo:Wagner Hodgson Landscape Architecture
承包商:Brookes + Hill Custom Builders
Estructura De Acero:Kelley Welding Inc, Fitchburg MA
Ejecutor De Paisajismo:Landscape America, Wrentham, MA
Producción Fotográfica:Sierra Baskind, Ennis Inc, Gloucester MA
está situado al lado de una tradicional casa colonial holandesa en Wellesley, Estados Unidos. Visible desde la calle, su entorno respeta el contexto de las casas circundantes y tiene en cuenta el patrón establecido de los garajes situados detrás de la residencia principal. El proyecto se ubicó detrás de una espectacular roca irregular, que se convierte en el punto focal de la entrada. Alrededor de la roca se planta hierba baja, en consonancia con los cuidados jardines típicos del barrio. El paisaje en la parte posterior se deja crudo y salvaje, con afloramientos rocosos que la naturaleza se tomará con el tiempo.
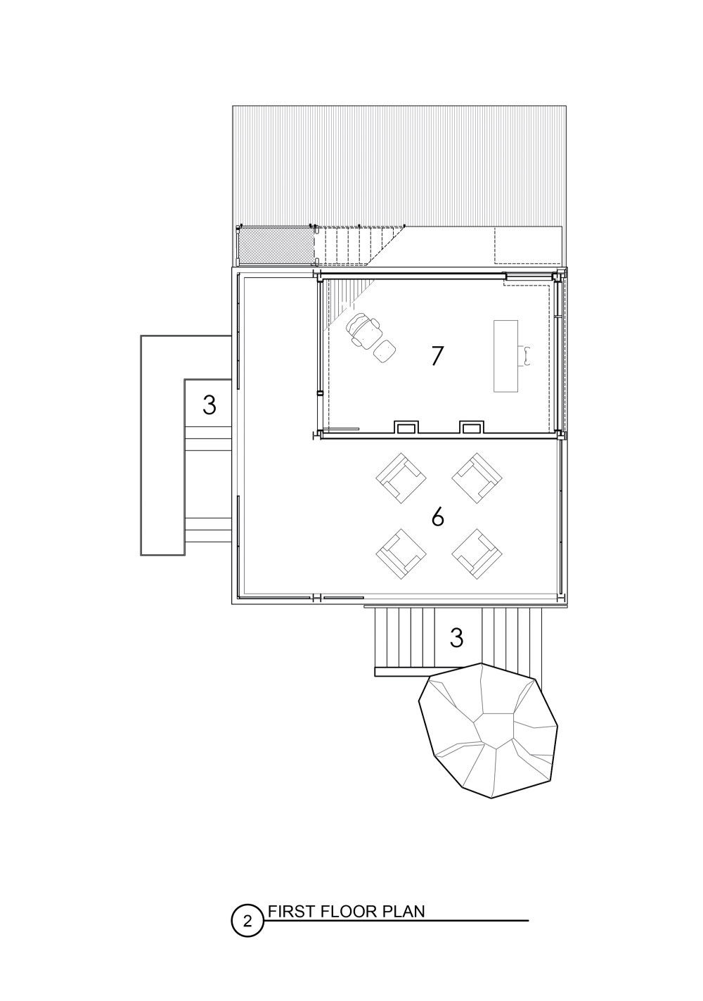
El edificio fue diseñado según las pasiones de los clientes en la jardinería, el entretenimiento y las viejas motos Vespas. En la planta baja hay un taller y un garaje para las motos. La planta media alberga una oficina y un balcón, y la planta superior permite comidas al aire libre, rodeada de maceteros con plantas. Una caja de hormigón cubierta de estuco rodea el taller inferior y forma la base de la estructura de acero de los dos pisos superiores. Las seis columnas perimetrales de acero proporcionan un interior sin columnas para el piso intermedio y se extienden otros 2,4 metros por encima, definiendo la forma del edificio. Una cubierta de madera Ipe trae el tradicional calor de la madera a la terraza y el mirador exterior.
Las elevaciones este y oeste de la estructura de acero están cubiertas por una cortina de listones de caoba, que protegen el edificio de la transitada calle adyacente. El aspecto del edificio cambia a lo largo del día y los listones de madera se iluminan con el sol de la mañana y de la tarde. Por la noche, se iluminan como una linterna.
项目完工照片 | Finished Photos
设计师:Flavin Architects
分类:Casas
语言:西班牙语
阅读原文
客服
消息
收藏
下载
最近
























