查看完整案例

收藏

下载
架构师提供的文本描述。今年早些时候,协会建筑师完成了亚历山德拉公主礼堂,这是他们学校总体规划的组成部分。锌包层表演大厅获得了2013年RIBA东北奖,并已成为一个欣欣向荣的艺术场所在东北部。
Text description provided by the architects. Earlier this year Associated Architects completed the Princess Alexandra auditorium, an integral part of their overall masterplan for the school. The zinc clad performance hall won a 2013 RIBA North East award and has become a thriving arts venue in the North East.
Courtesy of Associated Architects LLP
建筑师协会提供的服务
一个双高的入口门厅,最大限度地让人叹为观止的河流三轮车,连接扇形灵活的礼堂,最多可容纳800人,与一个新的河畔学术街区,包括教室,以及多用途的舞蹈和戏剧团体活动空间。
A double-height entrance foyer, maximising stunning views of the River Tees, connects the fan-shaped flexible auditorium, capable of seating up to 800, to a new riverside academic block containing classrooms, and multi-use dance and drama group activities spaces.
Courtesy of Associated Architects LLP
建筑师协会提供的服务
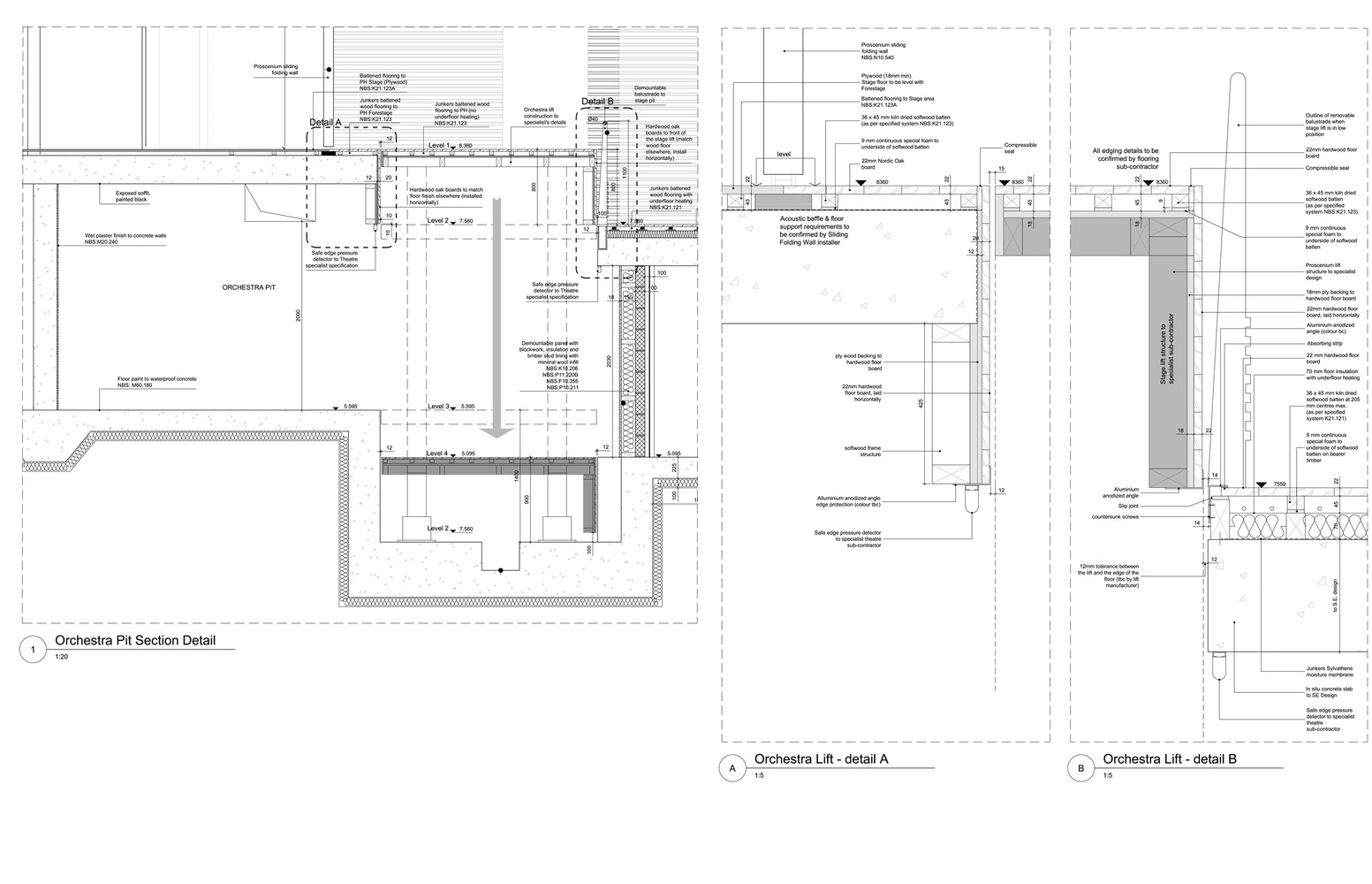
礼堂的灵活性是通过使用坚固的隔声结构和专门的安装设备来实现的,例如伸缩座椅、将礼堂和舞台演播厅分成两个独立教学空间的隔声滑动前场隔断,以及可设置到各级的管弦乐队坑式电梯。
The flexibility of the Auditorium was achieved through the use of robust acoustic separating constructions and specialist fit out equipment, such as telescopic seating, an acoustically separating sliding proscenium partition which divides the Auditorium and Stage Studio Theatre into two independent teaching spaces, and an orchestra pit elevator able to be set to various levels.
Courtesy of Associated Architects LLP
建筑师协会提供的服务
总体规划地点被证明是极其敏感的,列出的建筑物、保护区、潜在的洪水、国家重要的考古学、受保护物种和石棉,从开始到完工之间。在这过程中,政府审慎推行分期工程计划,使学校得以继续全面运作,即使在建筑工程运作期间也是如此。
The masterplan site proved to be extremely sensitive, with listed buildings, conservation areas, potential flooding, nationally significant archaeology, protected species and asbestos, standing between inception and completion. During all this, the careful implementation of the phased works programme meant the school was able to remain fully operational, even during construction operations.
Courtesy of Associated Architects LLP
建筑师协会提供的服务
亚历山德拉公主礼堂是由同名演员揭幕的,学校的学生们带她观看了“悲惨世界”15分钟的节选。
The Princess Alexandra Auditorium, was unveiled by its namesake, who was treated to a 15 minutes excerpt from Les Miserables, by students from the school.
Courtesy of Associated Architects LLP
建筑师协会提供的服务
校长邓莲如说:“我们非常荣幸以亚历山德拉公主的名字命名礼堂。最合适的做法是,以支持表演艺术而闻名的亚历山德拉公主同意开放该设施,并祝福它以自己的名字命名。“
The Headmaster, Mr David Dunn, said: “We are extremely honoured to be naming the auditorium after Princess Alexandra. It is most fitting that Princess Alexandra, so well known for her support of the performing arts, agreed to open the facility and gave the blessing for it to bear her name.”
Courtesy of Associated Architects LLP
建筑师协会提供的服务
项目首席建筑师巴博拉·博特(Barbora Bott)表示:“尽管该网站提供了一些有趣的挑战,但我们提供了一种灵活的设计,这种设计既吸引人,又切合实际,为YarmSchool的学生提供了充分发挥潜力的设施。”
Barbora Bott, Lead Architect on project said: “Although the site offered some interesting challenges, we’ve delivered a flexible design, that’s attractive as well as practical, providing students of Yarm School the facilities to realise their full potential.”
Architects Associated Architects LLP
Location Yarm School, The Friarage, Yarm, Stockton-on-Tees TS15 9EJ, United Kingdom
Category Schools
Area 4228.0 sqm
Project Year 2012
客服
消息
收藏
下载
最近






















