查看完整案例

收藏

下载
© Alexis Leclercq
亚历克西斯·莱克
架构师提供的文本描述。208号工作室自豪地展示了它的最新发明,帕约的学校食堂,位于庞托-康博特(法国)镇。208号工作室自2008年以来一直存在,它的第一座新建筑在娱乐和教育、工作和休息之间使用了多种愿望。
Text description provided by the architects. Atelier 208 is proud to present its latest creation, Pajot's school canteen, located in the town of Pontault-Combault (France). Atelier 208, which exists since 2008, has for its first new construction worked using a multitude of aspirations, between recreation and education, work and rest.
© Alexis Leclercq
亚历克西斯·莱克
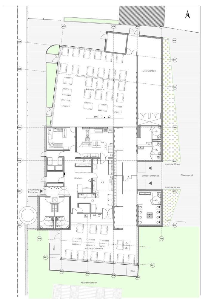
该项目的基础是重组学校建筑群,建造一个新食堂,重新定义外部空间,为学生提供一个有趣的环境和两个有吸引力的餐厅。拆除现有的食堂,使新建筑得以重新定位,以学习为重点的空间配置。它使用天然照明,解放操场,引入厨房花园,优化学生的循环,致力于环境和耐久性目标。
The project is based on reorganizing the school complex with the construction of a new canteen and the redefinition of the exterior spaces, it offers a playful environment and two attractive dining rooms for the pupils. The demolition of the existing canteen allowed the repositioning of the new building through a spatial configuration focused on learning. It uses natural lighting, liberates the playground and introduces a kitchen garden, optimizes the circulations of the pupils and is committed to environmental and durability objectives.
这座建筑是其结构和功能的体现。
This building is the expression of its structure and function.
从一个钢和混凝土框架,信封通过儿童的语言,并发挥主要作用,儿童的看法的地方。折纸般的屋顶折叠和展开,让光线穿透在两个餐厅的中心,从而给他们提供了一整天的各种氛围。折纸启发屋顶的构想是为了给这个项目带来活力。折纸强调想象力、创造力和一定的创造力。屋顶的形状在孩子们对建筑物的看法中起着重要的作用。
From a steel and concrete frame, the envelope speaks through the children's language and plays a major role in the way children perceive the place. The origami like roof folds and unfolds in order to let light penetrate at the heart of the two dining rooms, thus giving them various ambiences throughout the day. The origami inspired roof was conceived to bring a dynamic to the project. Origami emphasizes imagination, creativity and a certain ingenuity. The shape of the roof plays a major role in the way children perceive the building.
© Alexis Leclercq
亚历克西斯·莱克
外表的人造草涂层偶尔延伸到地面上,增强了孩子们的创造力。考虑到孩子们对这座建筑的看法,立面从四面八方向厨房花园和操场展示了巨大的景色。
The exterior synthetic grass coating on the façades occasionally extends on the ground and enhances the children's creativity. Considering the children's perception of the building, the façades reveal large views onto the kitchen garden and the playground from all sides.
Architects Atelier 208
Location Rue Emile Pajot, 77340 Pontault-Combault, France
Category Dining Hall
Area 700.0 sqm
Project Year 2013
Photographs Alexis Leclercq
客服
消息
收藏
下载
最近




















