查看完整案例

收藏

下载
架构师提供的文本描述。运动论坛米斯巴是一家临时开放影院,作为2013年雅加达双年展的一部分,这是在印尼首都举行的一次国际当代艺术活动。这是建筑师Csutoras合作的结果。
© Laszlo Csutoras
(Laszlo Csutoras)
这个项目是由社会文化议程推动的。其主要目的是宣传印度尼西亚电影,并建立一个场所,让不同背景的人可以在大屏幕上观看电影,其中包括那些负担不起主导当地电影院的购物中心复用区的人。
The project was driven by a social-cultural agenda. The main objectives were to promote Indonesian films and to create a venue where people of all backgrounds can watch a movie on the big screen, including those, who cannot afford the shopping mall multiplexes that dominate the local cinema scene.
© Laszlo Csutoras
(Laszlo Csutoras)
这个项目被命名为运动论坛米斯巴,指的是廉价的,传统的印度尼西亚露天影院,这些电影院现在雅加达几乎绝迹。这家电影院去年12月免费放映了电影。
The project was named Kineforum Misbar in reference to the inexpensive, traditional Indonesian open-air cinemas, which are now almost extinct in Jakarta. The cinema screened movies for free last December.
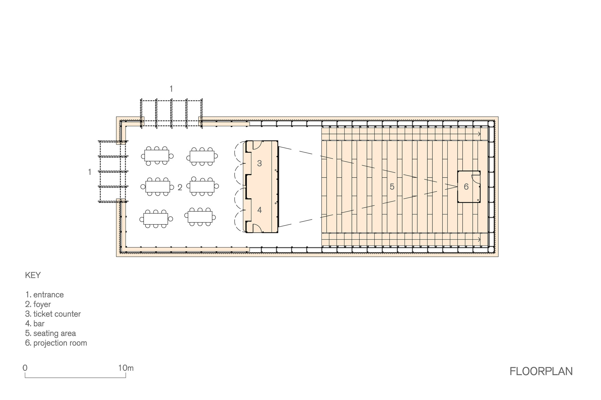
Floor Plan
这家电影院位于雅加达市中心,位于印度尼西亚国家纪念碑莫纳斯(Monas)的脚下。这座38x14米高的建筑周围覆盖着一层6米高的半透明幕布,让电影院在蒙纳斯周围的大片开放区域出现,并确定了内部空间的边界。除了电影院本身,“幕布”外墙还包括一个宽敞的门厅空间和一个在电影院和大厅之间的展馆。展馆设有售票柜台和小吃店。电影院有一个分层的座位区、一个专业的投影屏幕、数字投影仪和环绕声系统-所有这些都是最先进的电影院的必要组成部分。
The cinema was located in the centre of Jakarta, at the base of Monas, Indonesia’s national monument. The perimeter of the 38x14 meter structure was clad with a 6 meter tall translucent ‘curtain’ to give the cinema presence in the large open areas surrounding Monas and to define the boundaries of the spaces inside. Besides the cinema itself, the ‘curtain’ façades also contained a generous foyer space and a pavilion between the cinema and the foyer. The pavilion housed a ticket counter and a snack bar. The cinema featured a tiered seating area, a professional projection screen, digital projector and surround sound system - all the necessary ingredients of a state of the art cinema.
© Laszlo Csutoras
(Laszlo Csutoras)
门厅空间被设想为一个社会场所,在雅加达,随着越来越多的影院的普及,电影院的一个方面正在消失。由于头顶上的灯罩,门厅成了一个大气的地方,供人们见面、喝一杯或吃点零食、在看电影之前或之后出去玩。
The foyer space was envisaged as a social place, an aspect of cinema that has been disappearing in Jakarta with the growing prevalence of multiplex cinemas. With its canopy of lamps overhead, the foyer became an atmospheric place to meet, to have a drink or a snack, to hang out before or after a movie.
© Laszlo Csutoras
(Laszlo Csutoras)
在立面的底部,一条长凳沿着外围跑来跑去。白天,这里被用作一个休息的地方或观看附近五旬斋田里的活动,而在晚上,它为路人服务,让他们坐下来看一看里面正在发生的事情。
At the base of the façade a bench ran along the perimeter. During the day this was used as a place to rest or to watch the action on the neighbouring futsal fields, while at night it served for passersby as a place to sit down to take a peek at what’s playing inside.
© Laszlo Csutoras
(Laszlo Csutoras)
这座建筑是在10天内建造的,使用的是廉价的材料,这些材料在活动结束后被重新使用。该结构是一个租用脚手架管道系统,这是高度适应性和允许快速组装。用于幕墙窗帘的材料是一种典型用于农业的穿孔织物地板和墙壁是用胶合板做的。后者用抽象的五颜六色三角形装饰,使表面活跃起来,并向参观者指明方向。灯罩是从薄薄的铝片上切割而成,并在里面喷上白色,以便更均匀地反射光线。
The building was constructed in 10 days, using inexpensive materials, which were reused after the event. The structure was a rented scaffolding pipe system, which is highly adaptable and allows fast assembly. The material used for the façade curtain was agronet, a perforated fabric typically used in agriculture. Floors and walls were made out of plywood. The latter were decorated with an abstract pattern of colourful triangles, which animated the surfaces and showed direction to the visitors. The lampshades were cut from thin aluminium sheets and sprayed white on the inside to more evenly reflect light.
© Laszlo Csutoras
(Laszlo Csutoras)
该项目得到雅加达艺术理事会和雅加达市政府旅游和文化部的支持。
The project was supported by the Jakarta Arts Council and the Jakarta City Government Tourism and Culture Department.
客服
消息
收藏
下载
最近























