查看完整案例

收藏

下载
架构师提供的文本描述。新的托儿所和幼儿园大楼项目是从关注人口的具体需要、使拟议的系统适应其环境、其可行性和经济可行性以及可持续性和节约能源的原则出发的。这一竞赛由扎尔迪巴尔市组织,目的是完成两座能够独立运作的建筑:一所2至3岁儿童的幼儿园将并入现有的综合学校,另一所0至2岁的儿童托儿所可以独立运作。在这一前提下,并寻求技术方案的建筑适宜性和质量,竞争中所重视的优先事项是:快速施工,最好是在夏季避免扰乱学校活动,允许每栋建筑分两个施工阶段,一项经济设计,一项能源效率系统和生产可再生能源的建议,并将其纳入建筑设计。
Text description provided by the architects. The project for the new building for nursery and kindergarten is conceived from the attention to the specific needs of the population, the adaptation of the proposed systems to their environment, their feasibility and economic viability, and from principles of sustainability and energy savings. The aim of the competition, organized by the City of Zaldibar, was the completion of two buildings that could work independently: A kindergarten for children aged 2-3 years that would be integrated into the existing school complex, and a nursery for children 0-2 years that could operate independently. Under this premise, and seeking architectural appropriateness and quality of the technical proposal, priorities valued in the competition were: rapid construction, ideally during summer to avoid disrupting school activities and allowing two separate construction phases for each building, an economical design, and a proposal of energy efficiency systems and production of renewable eneregy integrated into the architectural design.
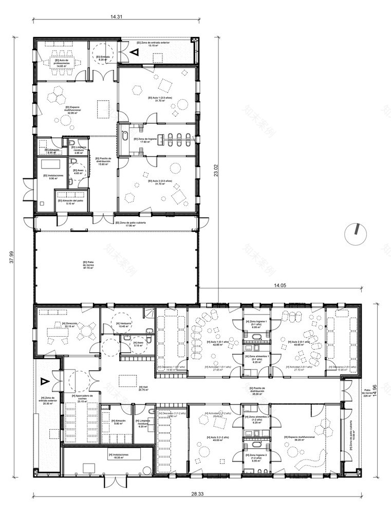
该建筑方案占地面积600平方米,分两个模块独立管理。它们在L字形的边界-地块的西-南边界上实施,允许创建三个游乐区:一个是幼儿园的0-2岁儿童,另一个是幼儿园建筑2-3岁的儿童,另一个是3-6岁的儿童,保留了现有学校建筑群的一个重要部分。入口处来自自治街,北面为幼儿园,从学校建筑群的现有入口之一进入幼儿园,向东南通过一个单独的入口进入托儿所。该项目的目的是通过适应学校使用者-儿童的规模-改善学校综合体及其环境。因此,这种形式被认为是儿童的游戏,在不同的高度和颜色的正面形成一个连续的锯齿状屋顶和窗户的组合,使人想起一幅小房子的形象。这两个卷是一个整体的单位,在一个单一的剪影后,一个连续处理的外部木材外观。每个模块对面的主要入口和进入操场的通道都被建筑物的屋顶作为门廊覆盖,并在立面上镶上一种颜色,这是每栋建筑的特色:紫红色的托儿所,绿色的幼儿园。
The built proposal, with an area of 600m2, is developed in two modules to be managed independently. Their implementation in an L-shape borders the west-south boundaries of the plot, allows the creation of three play areas: one for children 0-2 years of the nursery, another for children 2-3 years for the kindergarten building, and one for children 3-6 years, preserving an important part of the existing school complex. The entrances are from Autonomia street, to the north for the kindergarten from one of the existing entrances of the school complex, and to the south east for the nursery through a separate entrance. The project aims to enhance the school complex and its environment by adapting to the scale of its users, the children. Thus the form is conceived as a child's game, generating a continuous zig- zag of roofs and a combination of windows on the facade at different heights and colors, evoking an image of small houses . Both volumes are integrated as a unit in a single silhouette following a continuous treatment of the exterior wood facade. The main entrance and access to the playground on the opposite end of each module are covered by the roof of the building as porches, and are framed on the facade by a color that characterizes each building: fuchsia for the nursery, and green for the kindergarten.
Courtesy of Egoin
伊戈尔人
这座建筑是用预制木结构板系统全面进行的。这些面板构成正面,内部隔断,屋顶和壁板。他们是设计和定制的,允许一个容易,快速和系统化的装配现场.这种干式建筑不仅可使建筑工地清洁,减少浪费和所用资源,而且可大幅度减少成本和运行时间,因为施工可能在两个月内完成。
The construction of the building was carried out comprehensively with a prefabricated system of wood structural panels. These panels make up the facade, interior partitions, roof and siding. They are designed and custom-made allowing an easy, fast and systematized assembly on site. This type of dry construction allows not only a clean construction site and the reduction of waste and resources used, but also a considerable reduction in costs and runtimes, as construction may be carried out in just 2 months.
Courtesy of Egoin
伊戈尔人
这座建筑是按照生态设计标准设计的。从建筑设计上,我们特别注意了定位、利用太阳辐射、良好的隔热和热控制、适当的防水、使用当地和环境友好型材料,以及整合可再生能源。当地森林中的放射松木是一种优良的材料,具有良好的技术、声学、吸湿性和绝缘性能,是一种生态和可循环利用的材料,提供温暖、舒适和美学品质。建筑系统内置了良好的保温性能,其连续性和厚度降低了建筑的能耗,提供了较高的舒适性。该建筑物的屋顶将建造适当的防水,这也将是连续的通风正面,和锌包层。它还将为地板提供适当的通风。我们研究了窗户的设计和布局,以实现高度的自然照明,增加太阳能增益和减少采暖。根据控制太阳辐射的倾斜度,设计了形成窗框的预制盒。建筑设施是为提高能源效率而设计的,并安装了地板下加热系统,提高了热质量,节约了能源。用于供暖和生活热水的能源将是生物质。这些措施不仅旨在减少能源消耗和二氧化碳排放,而且还旨在支持当地经济、环境舒适和用户的生活质量。
The building has been designed under the criteria of ecological design. From the architectural design, we have paid special attention to the orientation, the use of solar radiation, good insulation and thermal control, adequate waterproofing, the use of local and environmentally friendly materials, and the integration of renewable energy. The radiata pine wood from local forests is an excellent material with great technical, acoustic, hygroscopic and insulating behavior, in addition to being an ecological and recyclable material, and providing warmth, comfort and an aesthetic quality. The good thermal insulation built into the construction system, its continuity and thickness reduces the energy consumption of the building and provides high comfort. The roof of the building will be constructed with proper waterproofing, which will also be continuous in ventilated facades, and zinc cladding. It will also provide for proper ventilation of the floor . We have studied the design and layout of the windows to achieve a high degree of natural lighting, increasing solar gains and reducing heating. The prefabricated boxes forming the window frames are also designed according to the inclination to control solar radiation. The building facilities are designed for energy efficiency, and an underfloor heating system is installed, improving the thermal quality and energy savings. The energy used for both heating and domestic hot water will be biomass. These measures seek to not only reduce energy consumption and CO2 emissions, but also to support the local economy, environmental comfort and quality of life of its users.
Architects Hiribarren-Gonzalez , Estudio Urgari
Location Calle Autonomía, 48250 Zaldibar, Biscay, Spain
Category Kindergarten
Project Architects Tony Hiribarren y María del Mar González Dueñas
Design Team HIRIBARREN-GONZALEZ (Tony Hiribarren y María del Mar González Dueñas arquitectos) URGARI (Patxi Gastaminza e Itziar Modrego arquitectos)
Project Area 663.0 m2
Project Year 2013
Photography Courtesy of Egoin
客服
消息
收藏
下载
最近































