查看完整案例

收藏

下载
明亮的红色墙与葡萄牙这个艺术文化中心生动的绿色草坪形成鲜明对比,里斯本建筑事务所未来建筑思维(幻灯片)。
位于米兰达多科尔沃镇,卡萨达斯阿尔特斯是由三个不同大小的卷,被漆成红色,以帮助建筑物尽可能突出从它的周围。
不对称屋顶轮廓是未来建筑的想法,以对应附近房屋的角度屋顶,以及与遥远的洛桑山脉不规则的几何图形。
建筑师说:“这项建议是以现代语言为基础的,这种语言在结构上非常强大。
他们补充说:“屋面的斜坡是为了找出与市区天台相若的地方,而采用强烈的颜色是为了建造一幢能即时为市民所知的建筑物。”
一个像烟囱一样的天窗延伸到屋顶的外面,把西边的黄昏阳光吸引到大楼入口处的一个有盖的露台上。
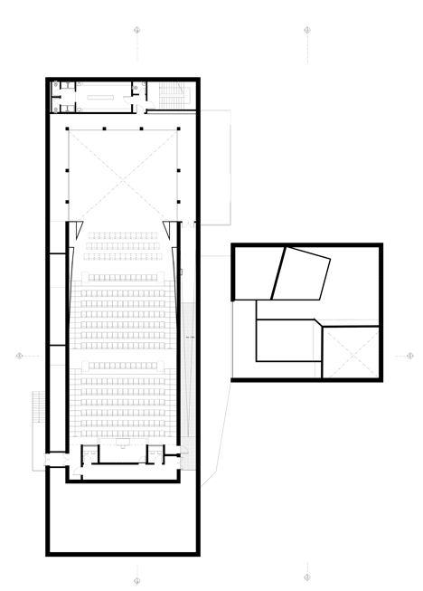
三卷中最大的一卷容纳了300个座位的礼堂的舞台,而座位向后延伸到第二个排在后面的街区。
这座大楼还设有礼堂门厅,作为临时展览的两层展厅,另有一家独立咖啡厅位于第三和最小的街区。
摄影由若昂·莫加多拍摄。
有关未来体系结构思考的更多信息,请阅读:
米兰达·多科沃的Casa das Artes
米兰达·多·科尔沃的卡萨达斯·阿尔特斯(艺术之家)表达了乡村和城市两种身份在以卢斯山为标志的景观中的相遇。
这座建筑的特色是一种当代的、具有丰富表达能力的语言。倾斜的屋顶与山体的几何形态形成了对话,就像村庄的屋顶一样。正面和屋顶之间的连续性所产生的活力被强烈的红色所突显,强调其设计,并通过周围的景观区域植被突出建筑物。
不仅仅是一座建筑,卡萨达斯阿尔特斯(Casa Das Artes)装作是一个标志性的地标,以庆祝人们相遇的地方,文化和艺术的发生,一个能够促进和刺激创造性活动、提高人口生活质量的空间。
该项目是通过创造通用的空间,技术上适合不同种类的活动而设计的,以便为所有人口阶层服务。
对部署区进行了优化,以利于美化空间,允许为户外活动创建一个圆形剧场,整合在一个花园中,该花园是村庄的公共空间,有几个空间和诱人的休闲通道。
这座建筑由三卷组成,反映了不同的用途:第一卷包含舞台区域,第二卷包括观众和门厅,第三卷有自助餐厅和未来的博物馆区,它们构成一个视觉独立的卷。
建议的建筑物出入多元化,旨在强调把这幅土地描述为一个公众空间,同时容许公众直接进入特定地方,例如博物馆区和自助餐厅,而无须经过礼堂。
正门是通过门厅。这个空间可以作为展区,可以用一段短短的楼梯分成两部分。从这里出发,从两条路走到一个可容纳近300人的礼堂,配备有一个机动管弦乐队坑和六个技术级别,为举办戏剧表演、歌剧、音乐会、会议或讲座提供适当的设备。
自助餐厅可以独立于大楼的其他地方运作,甚至可以作为通往礼堂的入口。这个空间有一个覆盖的露台,天窗面向西方,将夕阳光线导入室内。露台区允许进入多媒体房。博物馆区的立面面向花园的北部,其中一个主要入口位于花园和室外圆形剧场。
客户:米兰达多科沃市所在地:米兰达多科沃,葡萄牙地区:2.360平方米
建筑师:FAT-未来建筑思维项目组:建筑师Miguel Correia,建筑师Cláudia Campos,建筑师Sérgio Catita,建筑师Patrícia de Carvalho,建筑师Miguel Cabral,建筑师Margarida Magro,建筑师Sara Gon alves,建筑师Telmo Maia,建筑师Gabriel Santos,建筑师Hilário Abril,工程师JoséPico,景观建筑师Sara Távora Builder:TECNOR M-Engenharia e Constru es,S.A.年:2010/2013。
一楼平面图-单击更大的图像
一楼平面图-点击以获取更大的图像
长段-点击获取更大的图像
横截面-点击以获得更大的图像
南仰角-点击获取更大的图像
东立面-单击更大的图像
北仰角-点击获取更大的图像
客服
消息
收藏
下载
最近



























