查看完整案例

收藏

下载
架构师提供的文本描述。人们说,综合性医院的设计在设计完成后就开始改变,而其他的建设工作则是在原工程完成后,随着设计的改变而开始的。要保持医院的竞争力,必须从规划上不断发展和引进新的医院因素。
Text description provided by the architects. People say that the design of a general hospital starts to change as soon as the design is finished, and other construction work starts with the design change as soon as the original construction is finished. To maintain its competitiveness, new factors for the hospital must continue to be developed and introduced from the planning.
本当市汉城国立大学医院成立于2003年,位于一个医疗服务需求高,无障碍环境优越的大都市地区,毗邻布尔哥克山和丹川,自然环境良好。
Established in 2003, Bundang Seoul National University Hospital is located in a metropolitan area with high demand for medical services and excellent accessibility, and has a good natural environment adjacent to Bulgok Mountain and Tancheon.
Courtesy of JUNGLIM Architecture
由JUNGLIM架构提供
这家医院在很短的一段时间内迅速发展成为一家地区综合医院,拥有首尔国立大学的品牌和顶尖的医疗队伍。然而,如此迅速的发展却限制了增长,因为与快速增长的需求相比,供应不足,这是因为床位、医疗设施和停车位是不够的。
This hospital has been growing quickly as a district general hospital in a short period of time with the brand of Seoul National University and the top medical team. However, such rapid advancement brought about a limitation of growth because the supply was short compared to the fast increase in demand, that is because beds, medical facilities and parking spaceswere not enough.
为了迅速解决这些问题,并进入一个新的发展阶段,韩国首尔国立大学医院决定选择一个基于按键的建筑承包商。从2009年夏季开始,经过详细的设计、设计变更过程、三年的施工工作和持续的设计支持,经过2009年12月30日的评议,本项目最终于2013年春季完成。
In order to quickly solve such problems and to enter into a new development phase, Bundang Seoul National University Hospital decided to choose a contractorfor turn-keybased construction. Starting in Summer 2009, this project was finally completed in Spring 2013 through detailed design, design change process, construction work of three years and continuous design support after we were selected as the qualified architect for the detailed design through deliberation on December 30, 2009.
Courtesy of JUNGLIM Architecture
由JUNGLIM架构提供
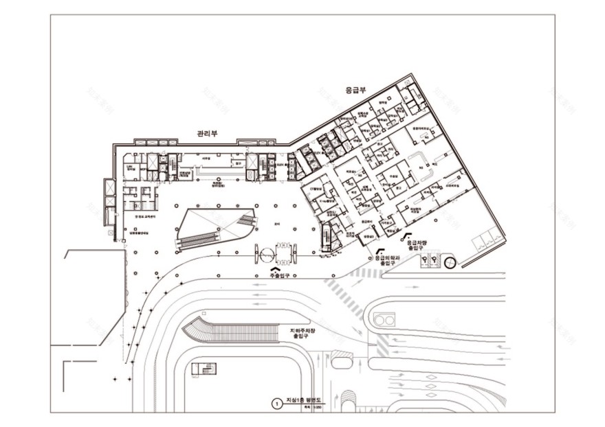
这座新建筑位于韩国首尔国立大学医院入口的右侧斜坡上。该地点毗邻主楼,向西倾斜。我们一直面对问题和关注,直至最后一秒钟,最后一项建议才获得通过,原因是我们在一些问题上意见不一致,例如与现有主楼的连接、土地的形状,以及对方向的考虑等。
The new building is located on the right slope from the entrance to Bundang Seoul National University Hospital. The site is adjacent to the main building and inclines towards the west. We faced constant questions and concerns until the last second when the final proposal was confirmed, due to discord about issues such as a connection with the existing main building, the shape of the land and a consideration of direction.
在此基础上,最后确定了与土地形态相适应的布局方案。如果布局造成不便,即使建筑物有良好的方向或其他条件得到满足,也会造成根本的限制,而这些限制是无法克服的。本当市首尔国立大学医院新楼是以建立与现有医院的关系、解决西部病房问题为前提的。
Then, the layout alternative with the shape of the land was finally confirmed as the last proposal. If the layout causes inconvenience, it will result in fundamental restrictions that cannot be overcome even though the building has a good direction or other conditions are satisfied. The new building of Bundang Seoul National University Hospital starts from the premise that the relation with the existing building will be set up and the issue of the western ward will be solved.
新建筑较低楼层的室外过渡区,保持了整体的整体统一感,与主楼的外形和形象相连接。对于新的大厅,已经设计了一个长度足以方便装载的落客区,并计划以弯曲的形式连接主建筑的大厅。
The lower floor's outdoor transition zone of the new building keeps the overall sense of unity with the shape and image connected with the main building. For the new lobby, a drop-off zone with enough length for convenient loading has been designed, and a curved form is planned to form a connection to the main building's lobby.
Courtesy of JUNGLIM Architecture
由JUNGLIM架构提供
下部采用玻璃和陶土板作为主要的外部材料。陶土涂饰材料,作为一种粘土材料,如砖,创造了医院的温暖和生态形象,并作出了适当的对比和平衡的锐利和精致的玻璃。特别是,采用兵马俑板和木材的三维图形从新建筑延伸到主楼。它能把这两座建筑结合起来。
For the lower parts, glass and terracotta panel are used as the main exterior materials. Terracotta finishing material, as a clay material like brick, creates the hospital's warm and eco image and makes a proper contrast and balance to the sharpness and refinement of the glass. In particular, the three-dimensional pattern using terracotta panel and lumber is extended to the main building from the new building. It works to combine the two buildings.
上层病房要有未来的先进形象,要树立新医院的形象。然而,由于它被放置在入口处,很可能会妨碍主楼的代表性,并阻碍医院的意识。因此,为了最大限度地减少对主楼的视觉干扰,我们设计了一种渐进式回退结构。我们还沿室外过渡区的流程进行布局,并试图通过与主建筑的病房适当分离来保持每个过渡区的独立性。
The upper floor's ward should have an advanced image of the future andexpress the new hospital's image. However, because it is placed at the entrance, it is likely to impede the main building's representation and to deter the hospital's awareness. Therefore, we designed it with the shape of going back gradually by approach line in order to minimize the visual interference with the main building. We also made the layout along the outdoor transition zone flow and tried to maintain the independence of each by properly separating from the main building's wards.
Courtesy of JUNGLIM Architecture
由JUNGLIM架构提供
为了应对不可避免的西方病房布局和前门发出的噪音,在韩国首家医院-韩国本当市国立大学医院的病房前,采用了先进的双面外观系统。由于双立面系统配备了独立的外部电机驱动的滚动筛,可以最大限度地减少直接太阳辐射造成的眩光和损坏。
In order to respond to unavoidable western ward arrangement and noises from the front entrance, the advanced double skin facade system has been applied to the ward's front at Bundang Seoul National University Hospital, a first among hospitals in Korea. Because the double facade system is equipped with a separate external motor-driven roll screen, it can minimize glare and damage caused by direct solar radiation.
通过个人控制,在病人的房间和多种颜色的屏幕,它可以作为一个新的设计元素,给不同的变化和生动的幕墙。同时,外墙与双层外墙中间空间的温控功能降低了系统的负荷,降低了能耗。由于对病室交叉感染的关注和施工成本的限制,除了双面外观系统的自然-通风口功能外,我们没有进行其他部位的工作。
Through an individual control in the patient's room and multi-colored screens, it can be utilized as a new design element, giving diverse changes and vividness to the curtain wall. Also, the temperature control function of intermediate space between the outer wall and double skin facade reduces the system loading, which results in the reduction of energy consumption. Due to concerns about cross-infection of patients' rooms and the restriction of construction costs, we did not conduct the work for other parts except the double skin facade system's nature-vent function.
Elevation 1
抬高术 1
每个病人的房间都配备了自然通风投影窗系统,运用了双皮肤立面系统的一些功能,从而形成了独特而有特色的立面。由于通过这样的系统不断地保持气流,医院可以创造一个令人愉快和令人耳目一新的房间环境。
Each patient's room is equipped with the nature-vent projected window system that applies some functions of the double skin facade system, so that it forms the unique and characteristic facade. As the air flow is constantly maintained through such system, the hospital can produce a pleasant and refreshing room environment.
Courtesy of JUNGLIM Architecture
由JUNGLIM架构提供
新大楼前后的病人室有一个最佳的愈合环境,方法是保护病人免受不愉快的环境伤害,或通过使用双皮肤正面系统或投影窗口系统积极应用必要的元素。
Patients' rooms at the front and back of the new building have an optimum healing environment by protecting from unpleasant environments or by actively applying necessary elements through use of the double skin facade system or projected window system.
新建筑的后院面对着布尔戈克山,风从布尔戈克山吹过健康促进中心,穿过两层楼高的皮拉提,吹到屋顶花园和丹川。新建筑有足够的开放空间,通过自然意象的创造,与周围环境和谐,并通过在室外花园、前广场、皮洛提和室内容纳自然,形成了一个生态修复环境。
The new building's backyard faces Bulgok Mountain and the wind from Bulgok Mountain blows past the Health Promotion Center, passing through two-stories-high Piloti and blows to the roof garden and Tancheon. The new building has enough open space and harmonizes with the surrounding environment through the nature-like image creation, and makes an eco healing environment by containing nature in the outdoor garden, front square, Piloti and indoors.
Courtesy of JUNGLIM Architecture
由JUNGLIM架构提供
通过增加设施来扩大停车位。我们的目标是通过循环系统的适当控制来提高运行效率,最大限度地发挥延伸的作用,而不是物理上增加停车空间。首先,我们增加了车辆入口,并试图改善现有入口的可达性和价值,而使用的人较少。前面的广场周围是大大扩展的装载空间和单向循环系统连接新的或现有的车辆入口周围新形成的绿色空间。在他们中间,我们增加了出租车等候区。我们试图通过畅通无阻的车流来表现医院不断变化和成长的形象。
Parking spaces are extended by increasing facilities. We aimed at improving the operating efficiency and maximizing the effect of the extension through the circulation system's proper control, not physically increasing the parkingspace. Primarily, we added the vehicle entrance and tried to improve the accessibility and value of the existing entrance that fewer people used. The front square was surrounded by the greatly extended loading space and the one-way circulation system connecting the new or existing vehicle entrances around the newly-formed green space. Between them, we added the taxi wait zone. We tried to represent the hospital's image of change and growth continuously through unimpeded vehicle flow.
Courtesy of JUNGLIM Architecture
由JUNGLIM架构提供
新大楼的大厅连接主建筑的入口空间,沿着前面广场周围的装货空间。建筑物下部的建筑目的是通过将两座建筑物连接起来,在一家医院中对它们进行重组。然后,这样的目的在大厅中得到很好的表达,内部空间延伸到主楼,并且有一个长而弯曲的形状。大厅的设计采用了两层以上的S.P.G.形式的前幕墙。由于该区域与地下一层至第二层的开放空间相交,使大堂的象征意义和开放性最大化,使人们可以轻松地搜索病房。
The new building's lobby connects to the main building's entrance space along the loading space surrounding the front square. The architectural purpose of the building's lower part is to reorganize two buildings in one hospital through connecting them. Then, such purpose is well expressed in the lobby, and the internal space is extended toward the main building and has a long, curved shape. The lobby has been designed with the front curtain wall of S.P.G. form over two floors. Because this area meets the open space from the first basement level to the second ground level, it maximizes the lobby's symbolism and openness and enables people to easily search the wards.
这座新大楼已成为本当市首尔国立大学医院的新面貌,因为它是以癌症医院和脑神经医院的名义建立起来的,主楼正在病房周围进行翻修。当翻新工程完成后,医院将为另一项改变做好准备,并开始另一项工作。这家医院建立在变革和增长的中间,有望成为未来肯定的桥头堡。
Thisnew building has become anew face of Bundang Seoul National University Hospital, since established under the name of a cancer hospital and a brain and nerves hospital, and the main building is under renovation around the wards. When the renovation work is finished, the hospital will prepare for another change and will start another work. Built up in the middle of change and growth, the hospital is expected to work as the future's affirmative bridgehead.
客服
消息
收藏
下载
最近





































