查看完整案例

收藏

下载
架构师提供的文本描述。总务大楼的目的是容纳巴斯克国家最大的医疗中心-克鲁塞斯医院的实验室。血液学、机器人实验室、免疫学、微生物学、解剖病理学、遗传学和研究等领域与停尸房或血液采集实验室等其他相关服务一起设在这里。
Text description provided by the architects. The purpose of the General Services building is to hold the laboratories of the Cruces Hospital, the biggest medical centre in the Basque Country. Areas such as haematology, the robotic laboratory, immunology, microbiology, anatomical pathology, genetics and research, are located here together with other related services like the morgue or the blood collection lab.
这座建筑建在中心的最后一块自由地块上,附属于一栋现有的建筑,作为医院和米拉格萨郊区之间的隔膜。主要拉长的地块-一端长84米,宽15米,另一端长26米-覆盖一个13米的斜坡。
The building was erected on the last free plot in the centre, attached to an existing building and serving as a divider between the hospital and the Milagrosa suburb. The mainly elongated plot – 84 m long by 15 m wide at one end and 26 at the other – covers a 13 m slope.
© Aitor Ortiz
C.Aitor Ortiz
客户提出的要求之一是,建筑物必须用尽规章规定的可建区域。因此,该建筑的体积必须保持在城市发展计划所预见的范围内。
One of the requirements imposed by the client was that the building had to exhaust the buildable area fixed by regulations. As a consequence, the building’s volume had to keep within the alignments foreseen in the urban development program.
© Aitor Ortiz
C.Aitor Ortiz
由于它位于较低层的高速公路旁,所以它在周围环境中占据主导地位,具有重要的地位。主要的北面和南面,主要是白色和抽象的,意图唤起蛋白质图的形象,作为建筑物活动的反映。
Due to its location next to the motorway that passes by at a lower level, the building takes on a predominant role and it acquires a great importance within its surroundings. The main north and south façades, predominantly white and of an abstract character, intend to evoke the image of a proteins map, as a reflection of the activity that the building holds.
© Aitor Ortiz
C.Aitor Ortiz
西面的立面是在一条高速公路上,这条高速公路是巨大噪音的来源,它的设计更加封闭和紧凑。在建筑物的另一端,一条L形的条形从东面和北面的正面通过透明的窗口前部解放出来。它覆盖了整个一楼的高度,并指明了血液检测和分析的门诊部入口。这套装置提供了一个技术先进和无菌容器的外观。
The west elevation, which faces head-on a motorway which is the source of significant noise, was designed with a more closed and tight character. On the opposite end of the building, an L shaped strip is liberated from the east and north façades by means of a transparent window front. It covers the entire height of the ground floor and indicates the outpatient entrance for blood tests and analyses. The set provides the appearance of a technologically advanced and aseptic container.
© Aitor Ortiz
C.Aitor Ortiz
这座大楼不仅为克鲁斯医院服务,而且还为周围的其他医疗中心服务。这就是为什么与外部的联系,无论对行人和车辆,都是非常重要的。该建筑有四个直接入口从街道在不同的层次,由于明显的斜率的地块,以及不同的联系,附属的建筑物。
The building serves not only the Cruces Hospital, but also other medical centres in the surroundings. This is the why the connections with the exterior, both for pedestrians and vehicles, are of great importance. The building has four direct entrances from the street at different levels thanks to the pronounced slope of the plot as well as different links with the attached building.
该项目分布在七层,其中两层是车库层。在一楼,一个名为“人的管道”的空中行人通讯核心的延续,将员工内部的循环与医院中心的其他建筑物连接起来。
The program is distributed over seven floors, two of which are garage levels. On the first floor, the continuation of an aerial pedestrian communication core, called “human pipeline”, connects internal employee circulation with the rest of buildings of the hospital centre.
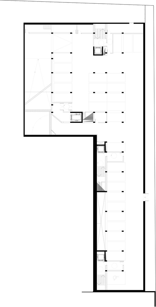
Fourth Level Plan
第四层计划
楼层设计尽可能开放,柱与柱之间有很大的跨度,这将允许灵活的未来变化。所述布局围绕鱼骨中轴配置,该中轴包括垂直和横向通信和建筑服务轴。后者可以方便地从所有楼层进入,并在设计上有足够的额外空间。鱼骨布局将人们离开公共区域的距离降到最低,并允许建筑服务部门采取的路线更短,这反过来又使可能的程序重新分配变得更容易。
The floors were designed as open as possible, with great spans between columns, which would allow for flexible future changes. The layout is configured around a fishbone central axis which includes both vertical and horizontal communications and building services shafts. The latter can easily be accessed from all floors and were designed with ample extra space. The fishbone layout minimizes distances for people out of common areas and allows for the route taken by the building services to be shorter which in turn makes it easier to carry out possible program redistributions.
© Aitor Ortiz
C.Aitor Ortiz
楼层对楼层的高度是由附属大楼的楼层调节的,因为这两座建筑物之间需要几个连接。这意味着下降的天花板实际上比一个独立的建筑高。为了不过分填补虚假的天花板,并有一些余地来扩大或修改现有的建筑服务,设计了一个以电感为基础的空气推进系统,使管道的尺寸最小化。
The floor-to-floor heights were conditioned by floors in the annexed building for several connections between the two buildings were necessary. This meant that the dropped ceiling was in fact higher than in a detached construction. In order to not overfill the false ceilings and to have some leeway to scale up or modify the existing building services, an inductor based system for air propulsion was designed, which minimized the size of the ducts.
© Aitor Ortiz
C.Aitor Ortiz
为了适应不同地区的功能需要而在中心进行的方案改变是司空见惯的。因此,考虑到实验室可能需要的设备非常沉重,每层都设计了一块板,允许过载能力为1 000公斤/平方米,从而便利了楼层间的使用变化。
The program changes that take place in the centre in order to adapt to the functional needs of the different areas are commonplace. Therefore, taking into account that the equipment that the laboratories might need are very heavy, a slab was designed on every floor with an admissible overload capacity of 1,000 kg/m2, thus facilitating the changes of use between floors.
Architects ACXT
Location Cruces, 48903 Barakaldo, Biscay, Spain
Category Hospital
Project Architects Gonzalo Carro & Javier Pérez Uribarri
Design Team Carlos Miguel Guimaraes, Ion Zubiaurre Ros, Marc Oliver Rips, Beatriz Pagoaga Txurruka
Project Area 9963 sqm
Project Year 2012
Photographs Aitor Ortiz
客服
消息
收藏
下载
最近



















































