查看完整案例

收藏

下载
大窗户、高天花板和木质地板的质量(都是旧建筑中常见的)说明了这套公寓是有潜力的,
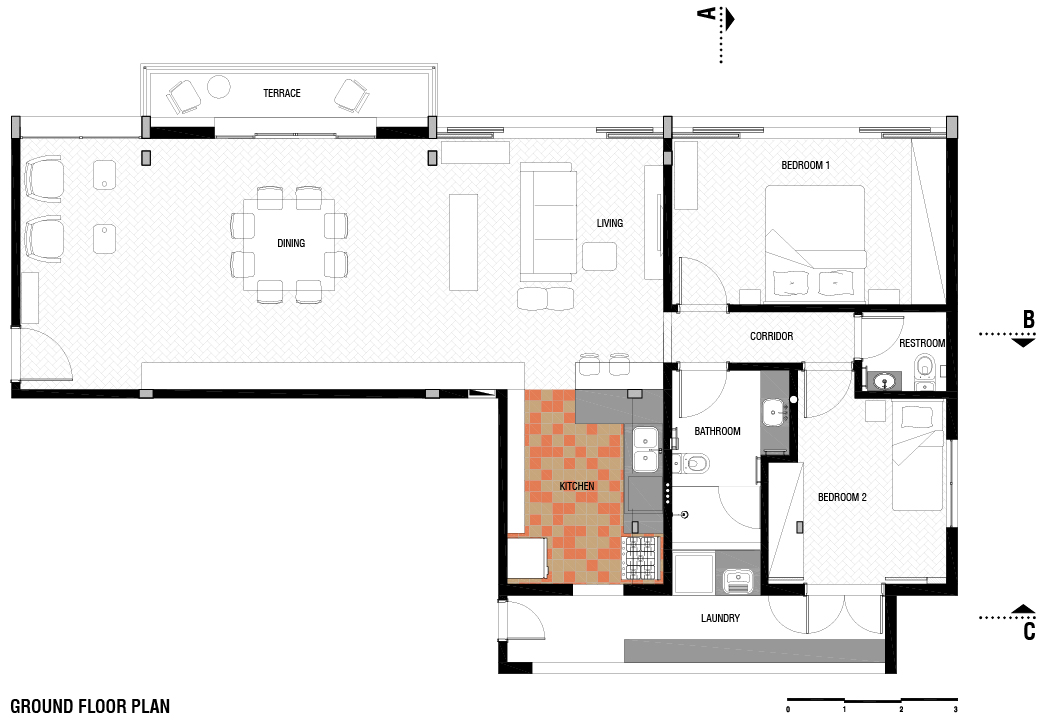
为了优化和整合空间,对公寓内部布局进行了重组。社会领域变得更加广阔和清晰。
有厨房和后阳台,里面也有洗衣房。
一个巨大的架子/橱柜/展台,有一套充满活力的空旷空间,将客厅与厨房连接起来。架子和橱柜有不同的高度,
这样就可以存储和显示许多对象。橱柜的门有小孔,这些小孔合在一起形成星座的几何形状。这些洞也是橱柜的把手。
Firm Zoom Urbanismo
Type Residential › Apartment
YEAR 2012
keywordsarchitecture, architecture news, interiors, interior design, portfolio, spec, brands, marketplace, products Apartment Apinagés
关键词建筑,建筑新闻,内饰,室内设计,组合,规格,品牌,市场,产品公寓
客服
消息
收藏
下载
最近
















