查看完整案例

收藏

下载
架构师提供的文本描述。PTW和熔岩将自然和技术有机地结合在一起,在悉尼旧址上推销悉尼格陵兰中心。
Text description provided by the architects. PTW and LAVA have combined nature and technology in anorganically-shaped display suite marketing the Sydney Greenland Centre on Sydney’s old Water Board site.
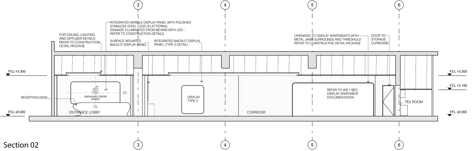
20世纪60年代水务委员会大楼的大厅被改造成自由式家具、弯曲的墙壁和天花板,带着游客参观了这座新大楼。
The lobby of the 1960s Water Board building has been transformed with freeform furniture and curvy walls and ceilings to take the visitor through a journey of the new building.
© Peter Murphy
彼得·墨菲
格陵兰岛集团为新的混合用途塔设计的展示套件将天然材料与高科技制造技术融合在一起。
The display suite for the new mixed‐use tower by the Greenland Group merges natural materials with high tech fabrication technologies.
PTW执行董事托尼·罗西(Tony Rossi)说:“PTW很高兴能够协助格陵兰集团,并与熔岩密切合作,完成格陵兰在澳大利亚住宅市场的首次推广活动。”
Tony Rossi, Executive Director of PTW, said: “PTW are delighted to have been able to assist the Greenland Group, and to work closely with LAVA, on the first outreach by Greenland in the Australian residential marketplace.”
Gound Floor Plan
地面平面图
流体空间的特点是白色水磨石地板,明亮的木材书桌,和墙壁内衬白色皮革和木材板。连续照明丝带创造了一个发光和通风的环境。
The fluid space features white terrazzo floors, illuminated timber desks, and walls lined with white leather and timber battens. Continuous lighting ribbons create a luminous and airy environment.
最新的技术包括玻璃钢-一种重量轻,坚固的材料,可以形成流体形状。参数化建模和快速成型意味着设计直接从一个三维计算机模型到制造车间,在那里接收和展示办公桌是数控切割和涂层。
The latest technologies include GRP - a lightweight, strong material that can be formed into fluid shapes. Parametric modelling and rapid prototyping means the design went straight from a 3D computer model to the fabrication workshop where the reception and display desks were CNC cut and coated.
© Peter Murphy
彼得·墨菲
熔岩主管克里斯·博塞(Chris Bosse)说:“21世纪的人们正在寻找将它们与自然联系起来的空间,而在自然界中发现的形态-波浪、峡谷、云-创造出美丽、高效和连接的空间。”
Chris Bosse, director of LAVA, said: “People in the 21st century are looking for spaces that link them to nature, and the forms found in nature - waves, canyons, clouds - create beautiful, efficient and connective spaces.”
© Brett Boardman
布雷特·博德曼
格陵兰中心将为零售和商业公寓提供住房。它包括两个水务委员会的建筑物:适应性再利用八层文物上市的1930年代皮特街的建筑物和一座新的塔之上的1965年巴瑟斯特街的建筑物。
The Greenland Centre will house apartments, retail and commercial. It incorporates two Water Board buildings: the adaptive reuse of the eight-storey heritage-listed 1930s Pitt Street building and a new tower on top of the 1965 Bathurst Street building.
该项目标志着PTW与熔岩在当地和国际项目上的新一轮合作浪潮。
The project marks a new wave of collaboration between PTW and LAVA on local and international projects.
罗西说:“格陵兰集团第一次进军悉尼住宅市场,并确实进入澳大利亚,改变了它的愿望,导致了‘非凡’。”这一过程是令人兴奋的,并传达了PTW现在正在走向的方向-强烈关注伟大的设计解决方案。邀请克里斯·博塞和熔岩小组参加这一进程,再次取得了成功“。
Rossi said: “Converting the aspiration of the Greenland Group, in its first foray in the Sydney residential market and indeed, into Australia, has resulted in the ‘extraordinary’. The process has been exciting and communicates the direction that PTW is now heading - strongly focussed on great design solutions. Inviting Chris Bosse and the LAVA team to be part of this process has again resulted in a successful outcome".
© Brett Boardman
布雷特·博德曼
博斯补充道:“我们很高兴再次与PTW合作,PTW在提供一流建筑方面有着惊人的记录。很高兴在澳大利亚实现这一充满灵感的中国开发商的愿景。“
Bosse added: “We are pleased to be working again with PTW who have an amazing track record in the delivery of first class buildings. And thrilled to be realising the vision of this inspired Chinese developer in Australia.”
客服
消息
收藏
下载
最近


















