查看完整案例


收藏

下载
这座两层楼的阁楼位于斯洛文尼亚工业区 Mlynica,是一个与众不同的居住空间。Mlynica 工业区本身位于Bratislava一个相当偏僻的待开发的城市地带,最近进行了大规模改造,目前大多数用地都是多功能用地,住宅用地极少。
This two-story loft situated in the industrial object Mlynica is an unusual living space. The Mlynica object itself, located in a rather remote brownfield in Bratislava, recently underwent extensive transformation and currently offers multifunctional space with minimal residential use.
▼空间概览,Overall view © LOUSY AUBER
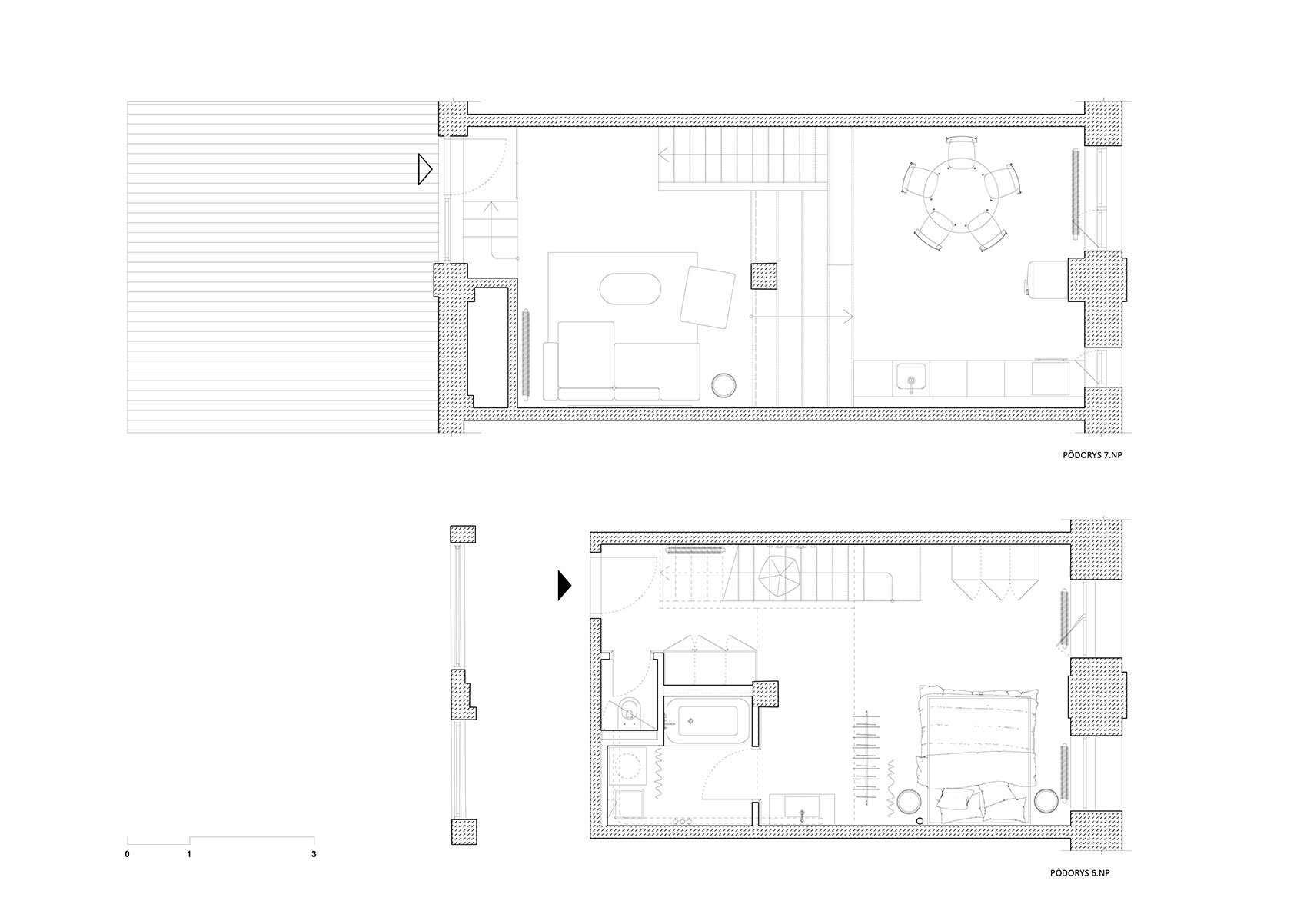
阁楼的布局呈垂直方向,可用面积为 73 平方米。入口位于阁楼的底层,这里有壁橱、浴室、卫生间和卧室。楼梯通向最上层,客厅与餐厅和厨房通过一组楼梯相连。
▼空间剖透视,perspective-section © Juraj Hubinský & Kuklica Smerek Architekti
The disposition of the loft is vertically oriented with a usable floor area of 73m2. The entrance is on the bottom floor of the loft, where the closet, bathroom, toilet and bedroom are situated. A staircase leads to the uppermost level with a living room connected to the dining room and kitchen by a set of seating stairs.
▼客厅,living room © LOUSY AUBER
▼厨房,kitchen © LOUSY AUBER
▼餐厅,dining area © LOUSY AUBER
通过起居室可以到达一个可以俯瞰Carpathian山脉的露台。原生态的建筑材料与插入的木材和金属元素形成鲜明对比,墙壁表面的电路裸露在外。阁楼的表皮、墙壁、天花板和地板均由粗糙的混凝土浇筑而成。在阁楼的底层,有一个内置壁橱,壁橱门与通向卫生间的门连成一体,形成一个光滑的全镜面。镜面外有一个带钢脚的水槽,水槽与床之间由悬挂在天花板上的黑色钢制衣杆以及与房间高度相同的窗帘隔开,窗帘也用于将卧室与阁楼的其他部分隔开。
A terrace with a view over Carpathian mountains is accessible through the living room. Raw building materials are in contrast with inserted wood and metal elements with exposed circuits on wall surfaces. The envelope of the loft, its walls, ceiling and floors, is made of rough poured concrete. On the bottom level of the loft there is a built-in closet with integrated doors leading to sanitary cells, which, together with the closet doors, create a smooth full-mirror surface. A sink with steel legs is situated outside the mirror box and is separated from the bed by a black steel clothes bar suspended from the ceiling, as well as a drapery of the same length as the room height, which can be used to separate the bedroom from the rest of the loft.
▼可以俯瞰Carpathian山脉的露台,a terrace with a view over Carpathian mountains © LOUSY AUBER
▼墙面由粗糙的混凝土浇筑而成,walls made of rough poured concrete © LOUSY AUBER
▼壁橱门和卫生间门组成的光滑的全镜面, closet door and bathroom door create a smooth full-mirror surface© LOUSY AUBER
▼卫生间的镜面墙,full-mirror surface for bathroom © LOUSY AUBER
▼窗帘可用于将卧室与阁楼的其他部分隔开,curtain are used to separate the bedroom© LOUSY AUBER
在阁楼层之间插入的带栏杆的楼梯是精巧的黑色钢制楼梯。架空的上层与白色胶合板制成的座椅楼梯相连,与黑色厨房胶合板箱、黑色餐桌和黑色椅子形成鲜明对比。
The staircase with railing inserted between loft levels is subtle, black and made of steel. The elevated upper floor is connected to the seating stairs made of white plywood and is in contrast with the black kitchen plywood box, black dining table and black chairs.
▼精巧的黑色钢制楼梯,stair is subtle, black and made of steel © LOUSY AUBER
▼白色胶合板制成的座椅楼梯,the seating stairs made of white plywood © LOUSY AUBER
上层起居室的沙发是一个单独的沙发,上面铺有灰色软垫织物。阁楼由悬挂在床头和餐桌上方的独特吊灯,条形灯和射灯照亮。
The sofa in the living room on the upper floor is a solitary, fully cushioned piece coated with grey upholstering fabric. The loft is illuminated by distinctive pendant chandeliers hanging above the bed and dining table in combination with flush technical line lighting and spotlights.
▼上层的起居室的沙发,the sofa in the upper floor living room © LOUSY AUBER
▼灯具,lighting © LOUSY AUBER
阁楼室内设计项目是一项独特而令人耳目一新的任务,它强调原始美学,反映了该地区的工业特征和其他事物的特征,以及客户的个性。
The project of the loft interior was a solitary and refreshing assignment accentuating raw esthetics and reflecting the character of the industrial location and object, as well as the persona of the client.
▼卫生间,bathroom © LOUSY AUBER
▼卫生间局部,bathroom detail© LOUSY AUBER
▼细部,detail© LOUSY AUBER
▼家具细部,furniture detail© LOUSY AUBER
▼平面,plan © Juraj Hubinský & Kuklica Smerek Architekti
客服
消息
收藏
下载
最近

































