查看完整案例

收藏

下载
男业主本职工作涉足创意领域,对设计敏感而充满独到见解,离异后带孩子生活,装修初衷下,业主追求现代简约黑色系装修风格,希望空间能够既时尚又舒适,设计要求注重细节,以简约为基调,希望家中既充满现代感,又能保持实用性。
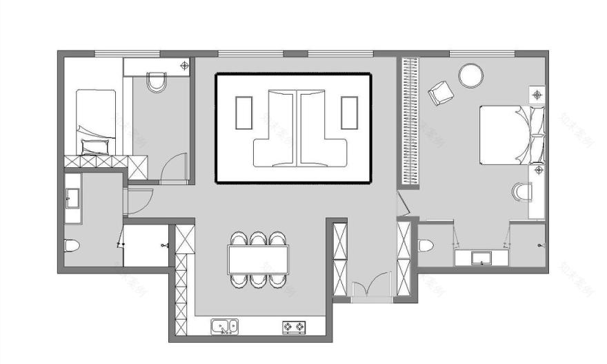
原始户型四室一厅,房间过多,无法合理利用,客厅空间不规范,显得拥挤,对整体布局都不满意,希望整体改造一下
改成两室一厅,做开放式厨房,拆除一间卧室扩进客厅,空间更为通透宽敞,入户做两面收纳柜,容量翻倍。
融合了现代简约和黑色系装修元素,营造出时尚、舒适且富有层次感的居住空间。
选择鱼骨拼实木地板,脚感好、有质感,搭配布艺双面沙发,打造舒适的休息空间。深色系木质背景墙,为沙发区提供深度和温馨感。
大幅艺术装饰画巧妙悬挂,点缀墙面,引导视线,增添艺术氛围。金属色茶几作为现代元素,独特设计提升整体空间感。石膏板吊顶创造简约而优雅的天花效果,提升空间层次感。
线条灯带巧妙嵌入吊顶,营造柔和的氛围照明。灰色窗帘通过细腻的色调平衡,与整体装修风格相契合。
厨房设计以灰色为基调,通过对比和谐的处理使空间充满品味,实用性和独特的时尚感。
选择有现代感又不失经典的深灰色橱柜,更显深邃与稳重。与浅灰色墙砖形成对比,更显层次,同时为厨房引入柔和的光线。
在设计中,黑色系的魅力得以充分展现,餐厅设计更是巧妙地融合了黑色元素,打造出一处兼具时尚与实用的用餐胜地。黑色木质餐桌,是这个空间的焦点。其深邃的黑色与木质的质感相得益彰,营造出高雅而沉稳的用餐氛围。无论是家庭聚餐还是小型聚会,这样的餐桌都是交流互动的理想场所。
搭配黑色皮质与布艺结合椅子,时尚与舒适兼具。这些椅子不仅提供优越的坐感,更为整体空间增色不少,创造了宜人的用餐体验。
餐桌上悬挂线状吊灯。线条简洁而富有设计感,既满足照明需求,又为厨房空间增添时尚元素。整体设计注重实用性,黑色不仅起到装饰作用,更是强调现代简约风格的精髓。
石膏板全屋吊顶,干净雅致的天花造型,嵌入线条灯和筒灯,营造氛围感。
地面选用人字拼胡桃木色地板,自然的木纹可为空间带来温暖感,同时与黑色元素形成对比。
地台床设计使卧室更加宽敞流畅,简约而独特的现代造型,使卧室更富有层次感。
背景墙采用方块造型,打破单调。
用黑色定制桌替代床头柜,既添加了时尚元素又提供了实用的功能空间。
次卧最亮眼的就是选用了大面积的红色
红色地台床为卧室注入了活力,与整体黑色系形成强烈对比。红色长桌的设计巧妙地连接起床和墙柜,打破了空间的单调,为卧室增添了一份现代的时尚感。
整面墙柜子提供了充足的收纳空间,同时为卧室增添了简约而美感的元素。黑色与红色的组合,使整个墙面呈现出时尚而富有设计感的效果。
以黑色系为引领,通过独特的设计元素和色彩搭配,打破传统界限,构建了一场红黑搭配的时尚盛宴。这种大胆而独特的配色让卧室成为一个令人印象深刻的现代舞台。
主卫沿用相应卧室的风格,新建隔墙做了三分离,灰色系为主调。
客卫延续次卧风格,选用黑红搭配。定制浴室柜,做壁挂马桶,打扫卫生无死角。
客服
消息
收藏
下载
最近


























