查看完整案例

收藏

下载
业主需求
1.业主是一家三口居住,想把家里的格局优化一下;
2.空间需要宽敞些,且与家人能有足够多的互动交流;
3.家里有运动器材,平时运动会比较多。
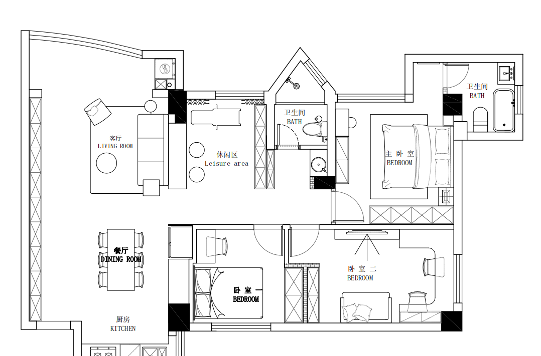
户型存在问题:
1、墙体隔断比较多,影响到室内的空间感和采光;
2、客厅与餐厅置于两个不同空间,动线多余;
3、卫生间三大功能处于同一空间,使用率降低。
设计师通过拆墙的方式,打造开放式的家居空间,使家居更加通透明亮,互动性增强。
设计改造分析:
1、拆除原来的阳台推拉门隔断,使客餐厅空间变得更加通透明亮;
2、将次卧换至原先餐厅位置,利用原餐厅打造吧台和运动区;
3、将厨房的隔断拆除,并打造餐厨一体化空间;
4、洗漱区外置,打造干湿分离的卫生间。
入户空间比较小,便定制一面薄薄的玄关柜,满足基本的进出置物功能。
因为柜体的厚度会遮挡住门口,通过斜角方式在靠近门口的柜体中做缓冲过渡处理,适当在底部做个卡座,充当换鞋凳使用。
柜体的镂空处是原木饰面,加入感应灯带点缀,丰富视觉感观,也让玄关空间有一定的层次感,为业主每次回家增加了仪式感和氛围感。
全屋色调柔和而纯粹,在自然的光影中道来优雅与舒展,地面通铺米白色的柔光地砖,空间的视觉得到了延伸,也保证了空间的整体性以及动线的连贯。
空间秩序重新梳理后,视线没有了多余的阻隔,得到了自由而宽敞的空间,更显得开阔通透。
客厅并入阳台后,空间更显从容,室外的自然光线也能够轻易抵达,营造一个明亮舒适的家居氛围。
在阳台定制里面的洗衣柜,利用墙垛作为遮挡,保证视觉上的完整性。
客厅以宽大的L型深棕色沙发为主,它能包容地接纳主人疲惫的身躯,掀开纱帘,阳光开始争相涌入,一家人最爱窝在舒适的沙发里,享受宅家的乐趣与轻松。
电视背景做了整排储物功能,与玄关柜相连占据了整整一面墙的空间,承载力满满,为家中的收纳提供了半壁江山;低调内敛的用色,有藏又露的格局,兼具收纳与展示功能,体现了主人家沉稳雅致的气质。
业主喜爱开放式厨房,能与家人一同享受下厨的乐趣,并打破传统的空间布局,与餐厅连接,形成餐厨一体化的空间,不仅缩短了餐厨动线,也能让空间的互动性变得更强。
在餐边柜的基础上增加冰箱柜,将冰箱完美嵌入其中,视觉上和谐统一,更加美观。
岛台+餐桌的结合,赋予餐厅时尚大气的空间气质,再加上独特纹理的大理石台面,尽显细腻高级。
在岛台上安装移动式轨道插座,解决餐桌有多个电器需要用电的问题,下方搭配抽屉收纳辅助件,将常用的小厨具就近收纳,保证餐桌的干净整洁,提升空间实用性。
厨房做“小L型”布局,橱柜以黑色打底,白色大理石做台面,独特的肌理若隐若现,为厨房添了几分层次感,显得低调而奢华。
将次卧的位置更换后,客厅后便打造一个开放式的休闲区域,使用半墙的吧台作为隔断,相互关联又独立分区,把跑步机放在这,可以边运动边看电视,给这一整片区域带来了多种生活场景。
定制一面含酒柜功能的收纳柜,柜体的侧边与上方均使用透明的玻璃柜门,木质面板,再借助灯光的渲染,空间的品质感瞬间得到提升,也让居家氛围更显浪漫温馨。
卧室根据业主的需求和户型结构,重新梳理,进行合理的空间布局;整体以简约为主,低饱和度的色彩搭配,营造一个宁静舒适的睡眠环境。
进门一侧做了通顶的衣柜,增加收纳空间,衣柜外侧做了开放格子柜,起到很好的展示效果;暖咖色柜面搭配黑色极简拉手,简约不单调,有效提高空间质感。
利用衣柜转角延伸收纳式床头柜功能,并把柜体的一格掏空,增加床头的置物台面,把有限的空间发挥得出彩。
床头两侧分别安装吊顶和壁灯,在提供局部照明的同时,也让空间不显得那么呆板,烘托出唯美的氛围,极具线条感的造型,有着很好的装饰效果,让居室空间更丰富多姿。
在床尾处放置一张斗柜梳妆台,为卧室提供整齐有序的化妆区域;墙上安装个圆形壁灯,增加光晕带来的氛围感,让女主人有个愉悦的情景来梳妆打扮。
书房沉稳但不会沉闷,跳跃的墨绿色沙发点缀得恰到好处,整齐有序的落地柜保持了空间格调的一致性。
利用窗边的墙面打造属于两人的电脑桌,一侧是电竞区域,一侧是办公区域,桌面的功能被安排得明明白白,互不打扰但又相互牵绊。
书房是办公学习区,是电竞游戏区,也是观影休闲区,劳逸结合,生活体验感得到大幅度提升。
窝在小小的沙发,品尝美味的零食,观赏曼妙的影视作品,一同沉浸于游戏世界当中,这大概就是能宅在家的乐趣吧。
通过延伸书房入口,定制一整面的展示柜,夫妻两人有着相同的兴趣爱好,喜欢收藏手办、喜欢去听演唱会,这里便包容了他们一起疯狂过的岁月。
为了提高卫生间的使用率,把洗手台外置,内外均做干湿分离的设计,生活舒适度也得到了提升。
卫生间内部是个不规则的空间,利用玻璃门将淋浴区围成一个三角形,空间布局合理规划,视觉上也更加流畅。
在主卫安装一个小型的浴缸,在家便能随心所欲享受泡澡的乐趣,增加生活幸福感。
主卧在布局与设计上都大不相同,小型衣柜变大衣柜,多个收纳箱变收纳功能强大的梳妆柜等,也有了原本没有的氛围感,一切的事物都朝着美好的方向发展。
空间布局进行了较大的调整,生活的动线也比以前的顺畅许多。
原本的卫生间没有任何隔断,若有一人使用卫生间,则其他人就不能使用了,改善之后,使用率明显提高。
因为家的面积用于一家三口绰绰有余,所以从设计之初提出很大的改动,业主也欣然接受,施工期间也会经常过来现场看看进度与工艺,见证家的构成。
家的面积是被固定着的,但人们对美好生活的追求并不一样,在业主一家的需求下,设计师帮他们的家重新改造,并重新梳理动线,让家居空间住得更舒适。
客服
消息
收藏
下载
最近









































































