查看完整案例

收藏

下载
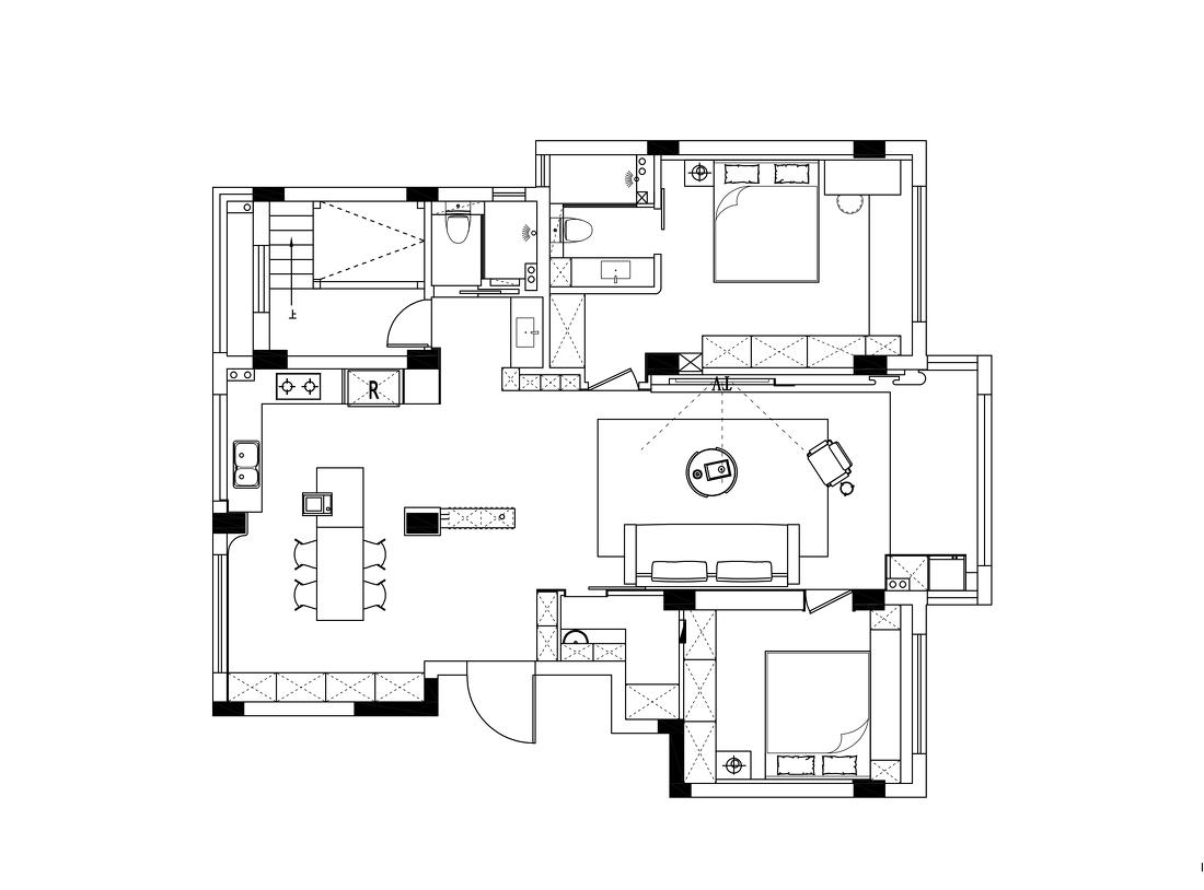
本案原始户型是四房的格局,但平时房子还是以业主两人居住为主,所以较多的房间反而没有太多的必要,经过多方的思考,我们索性将原本靠近餐厅一侧的房间拿掉,改成了餐厨一体的开放式餐厨空间,形成整个公共区域的视觉效果与功能连通。
其余居住空间则偏向实用为主,包括改变主卫的步入形式、设计男主人专属的爬虫房、儿童房设计成童趣的上下铺设计等等,这些都是考虑了日常生活而诞生的设计。
本案原始户型是四房的格局,但平时房子还是以业主两人居住为主,所以较多的房间反而没有太多的必要,经过多方的思考,我们索性将原本靠近餐厅一侧的房间拿掉,改成了餐厨一体的开放式餐厨空间,形成整个公共区域的视觉效果与功能连通。
其余居住空间则偏向实用为主,包括改变主卫的步入形式、设计男主人专属的爬虫房、儿童房设计成童趣的上下铺设计等等,这些都是考虑了日常生活而诞生的设计。
入户区域运用宝格丽石材将承重柱包裹,索性将原本突兀的承重柱突出设计,通过镜面折射加体块通透的,营造更为开阔多变的入户视角。
餐厨格局改造之后导致原始的烟道暴露在外,而烟道又刚好在空间的中心。
于是我们采用镜面不锈钢作为装饰材料,这样无论从哪个角望去,都能呈现全新的视觉感官。
中岛与承重柱穿插设计,同时保留两侧的储物功能,成为餐厨空间的功能中转站,并将空间进一步压榨。并围绕承重柱布置餐桌,形成更为顺畅的洄游动线。
在黑白极简的空间中插入木质元素作为调和,温和的材质属性与空间形成无声的互动。
客厅顶面刷就灰色艺术涂料,与餐厅相连达到开阔空间的统一性,并通过线性灯带贯穿顶面,分割空间的同时营造更为丰富的层次感。
主卧采用长城板作为背景,纵向的纹理排布拉伸空间层高,而储物柜的门板则采用与墙面纹理相近的材质,弱化空间的拥挤感。
儿童房则设计得更具趣味性,书房与卧室在一方小空间中也能轻松容纳,楼梯踏步也成了收纳的空间。
卫生间干区顶面也设置了镜面不锈钢的材质作为呼应,将原本较为狭小的空间层次化。
次卧的色调则偏向柔和,我们希望无论是家人还是朋友,都能够在这里真正放松身心的休息。
客服
消息
收藏
下载
最近

























