查看完整案例

收藏

下载
这个项目是位于广东深圳光明区的一处高层住宅,业主是一对年轻的夫妻,男主人从事互联网行业,女主人是一名人民教师,有很高的审美,喜欢现代简约,对生活方式很有追求。
在需求上,业主希望能保留三房,有足够的收纳,卫生间干湿分离,空间整体通透明亮。
当空间被建筑结构拘束,我总会去寻找突破的可能。宝贵瞬间的直觉产生于耐心的寻找,随着一幅内心图景的突然浮现,图画中一道新线条的闪现,在片刻之间,整个设计为之一变,焕然一新。
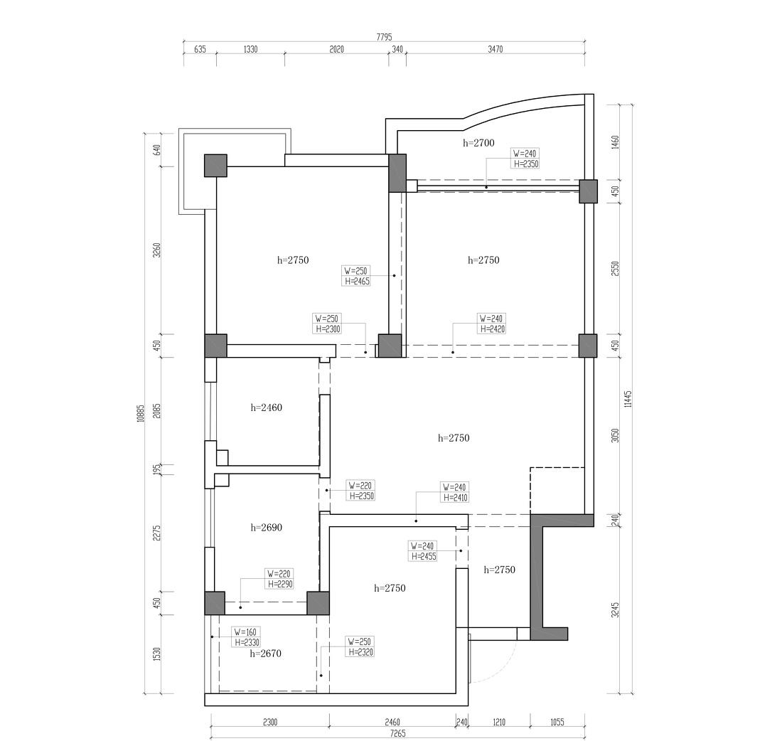
原始平面:
1.入口比较狭窄,通道较长,没有鞋柜收纳柜功能。
2.客餐厅面积比较大,空间没有完全合理利用。
3.厨房、卫生间窗户的位置,导致厨房和卫生间的空间布局位置限定。
4.次卧采光较差,室内光线没有合理利用。休息空间采光较差。
5.需要在合适的位置增加浴缸摆放的需求。
6.空间有几根比较大的承重柱,需要做设计弱化。
改造后:
1.入户位置设计了一处玄关鞋柜,方便换鞋和收纳。
2.原始次卧空间比较大,让出次卧空间分给餐厅,餐厅可以实现餐桌岛台一体设计。
3.在客厅一旁增加了两米长的书桌台面,为男女主人提供了一个超长的办公台面。
4.卫生间满足了独立淋浴、马桶、洗手台、浴缸、物品收纳五大功能。
5.每个空间收纳充足,原先的收纳不足得到了极大改善。
入户玄关位置,设计了一款米色的玄关柜,下半部分的柜子用百叶格栅的形式做柜门,既可以通风透气,也丰富了玄关造型。中间开放格的设计可以让屋主有临时储物的位置。玻璃展示柜,用于手办展示。顶部吊柜则可以增加鞋柜的收纳功能,补充玄关区的收纳空间。
餐厅横向布局,岛台餐桌一体居中而置,形成回游动线。整个空间的墙面都使用了暖白色的乳胶漆(Dulux 83YY 89/055),空间呈现暖色调。原木与石材纹理点缀其中,丰富空间的色彩,协调统一。
原木餐桌台面+岩板岛台,在客厅背景墙上挂一幅精致的艺术装饰画点缀餐厅。
餐厅岛台设有水吧台,方便客厅餐厅使用,底部柜体增加了餐厅收纳。
我们特别为业主插了一束暖色系桌花,用到的花材有尤加利、欢乐颂、剑兰、金鱼草、洋牡丹。今天也是被鲜花治愈的一天~岛台使用的是温润的岩板材质,做工精致。餐桌台面一体延伸整个岛台,相互穿插,通过体块的关系,来呈现简洁明快的效果。
岛台使用的是温润的岩板材质,做工精致。餐桌台面一体延伸整个岛台,相互穿插,通过体块的关系,来呈现简洁明快的效果。
餐厅的另一面墙挂了一副非常极简艺术的装饰画
客厅背景墙原始左右两侧各有一根柱子,利用柱子在客厅背景墙上设计一些有序列感的造型。客厅阳台封窗之后,整个空间打通,空间比之前更加通透大气。
原始户型层高不是很优秀,所以没有做过多的吊顶设计,采用原始天花。照明上采用明装射灯,在款式上选择了精致小巧的明装射灯。
客厅的背景墙整个墙面用乳白色的乳胶漆,背景墙造型内部用了更暖一些的颜色,不同的暖色让空间层次更加丰富。
客厅沙发的材质采用暖灰色的布艺,搭配在整个空间里非常和谐。
客厅背景墙由于原始结构的关系,利用空间设计了一些有趣的造型。
我们在为空间设计时,并不会特意去设计造型,而是根据现场的实际情况,在现有的基础上优化,设计独一无二的空间。
电视柜是一整面的柜体,中间电视机位置特意留出伸缩空间,方便屋主后期更换更大尺寸的电视机。左侧设计了开放格,预留了插座,用来摆放桌面饮水机。
整个客厅也是延续餐厅的色系,木纹砖搭配奶油色沙发,空间非常温馨,地毯的黑色阵列,点缀空间。
电视柜右侧的开放格,可以用来摆放书籍和装饰品,方便客厅随时拿取。
整个客厅是非常和谐的暖色调,地毯深色点缀空间,背景墙的造型丰富空间。阳台打通后,整个客厅也变得更加明亮。
重新组合餐厅与客厅后,整个空间变得更大气,增加了水吧台,日常的一些泡茶、切洗水果都可以在餐厅完成。
在客厅一旁有一处比较大的空间,设计了一组长条的书桌柜,为屋主提供一个超大的电脑桌。
屋主也有很多自己收藏的手办,所以我们特意在墙面上设计一些展示台面,方便屋主摆放。
主卧空间原始结构比较特殊,室内有一根柱子,利用原始结构,我们在背景墙上设计了一个拱形门洞,空间既通透也更加有趣。
靠近床边,利用采光优势,设置了女主人的梳妆台,把桌面的直角圆滑,既可以防止尖锐磕碰,视觉效果也非常的舒服。
梳妆台的高度一直延续到床头靠背,整体统一高度,简练协调。
主卧的床头靠背一直从背景墙延续到另一面,形成包裹的形式,会给人更多的安全感。
床头壁灯是屋主挑选的一款非常精致的千纸鹤壁灯,材质是亚克力加金属。
经过设计后的空间结构,梳妆台跟柱子结合也非常和谐。
空间的结构美学
主卧的衣柜设置在床对面,利用空间结构,做了一整面的衣柜,在衣柜最左侧有一小节柱子,所以我们设计了开放格,既可以收纳一些临时物品方便拿用,也最大化的利用了空间。
次卧房间里有两根很大的柱子,利用柱子把空间最大化的利用,狭小的位置设计了层板置物架,两根柱子之间做了拱形造型,把整个柱子都完全弱化掉。
次卧设置了充足的收纳衣柜,这里与玄关的鞋柜呈S型收纳空间,完美的利用空间。
厨房空间选用了米色的柜体,地面也采用比较个性的小花砖,整体空间呈现暖色系。
卫生间采用钻石型的淋浴间,干湿分离,选用柱盆和挂镜,把空间节省出来后,还可以增加一个浴缸。
在卫生间的另一侧设置了浴缸,左侧利用柱子的空间设置了层板架,可以方便放洗浴用品。
客服
消息
收藏
下载
最近





































