查看完整案例

收藏

下载
寻找生活最原本的样子,是在舍弃绝大多数的外物之后,发现内心最渴望的事物。这是一对年轻夫妇的家,对于奔波于工作中,无暇顾及自身的年轻人来说,家是下班后一处“犯懒”的地方,一处可供呼吸的所在。
本案空间,不刻意追求极致感,我们认为过于精致的空间会带来情绪的紧张,而一个“不完美”的空间,则能让人松弛紧绷的情绪,让一切回归自然。
在精致主义盛行的当下
反其道而行之
在舍弃了物质欲念之后
创一处可供精神休息的场域
此刻,把心放下,打开五感
去感受风,聆听雨,欣赏日出与日落
01
▂
自由平面
“不完美”的居家形式
寻找生活最原本的样子,是在舍弃绝大多数的外物之后,发现内心最渴望的事物。这是一对年轻夫妇的家,对于奔波于工作中,无暇顾及自身的年轻人来说,家是下班后一处“犯懒”的地方,一处可供呼吸的所在。
本案空间,不刻意追求极致感,我们认为过于精致的空间会带来情绪的紧张,而一个“不完美”的空间,则能让人松弛紧绷的情绪,让一切回归自然。
艺术漆带来墙面斑驳的质感,刻意而为的“不完美”,为漫反射的光留下存在的痕迹,空间不追求极致的打造,而是遵循事物自然而然的规律。
圆钝的视觉感,是温柔的表达方式,保留材质原始的肌理质感,织布略微粗糙的触感,木头自然生长的痕迹,以质朴取代奢华,用简约之美还原生活最本质的样子。自然的色彩与原始肌理的碰撞,一切都可以这样简单。
在遵循空间原始结构的前提下,楼梯自公区向私密的卧室延伸,我们希望这是一条放松的通道。木质温润的触感,是这水泥森林中,与自然相处最容易的方式,一路灯光拾级而上,氛围渐暖,情绪愈静。
02
▂
新旧碰撞
城市里的“避世”生活
敞开式的空间结构,将自然光引入空间。围绕着”麦”色及其衍生色调起笔,让空间成为温暖而质朴的代名词。藤编椅有着古朴的手工质感,而亚克力餐桌却带来一种幽默的悬浮感,古朴与现代的结合,恰似年轻一代的生活,一面向往城市的林立高楼,一面在不断地试图回归自然。
隐藏式移门嵌入餐厨空间之间,平时可以大方地敞开,任光入室,轻盈透气,使用时也可以轻易地保持独立与清洁,享受美德拉反应的乐趣。
镂空的百叶窗带来规则的阳光密布,一格格的光影随日照时间而不住变换,空间舍弃了许多装饰,以尽量的简单成就留白,阳光与结构相互交合而落下的影影倬倬,便是空间最灵动的画面。
03
▂
定调柔和
细腻温柔的栖居之所
卧室不大,以轻盈的浅灰与燕麦色为主色调,细腻柔软的纱幔冲淡了空间“原生态”的味道,带来舒适的、温暖的体验,在窗边设置休闲椅,最大化地利用光照,读一本书的时间,也可以感受到室外四季的不同之景。
卫生间同样以浅灰与麦色搭配,色调渐深,形成空间的层次差异。瓷砖、岩板、木材、金属、陶瓷,不同的材质在狭空间中激烈碰撞,最终又和谐地统一。
我们希望的家居空间,是一处相对“留白”的所在,将更多空间留给日后的生活,慢慢填满。一个家,从清冷,至热烈;从空旷,至满溢。其间不断丰盈的,是空间的生命力与情感。
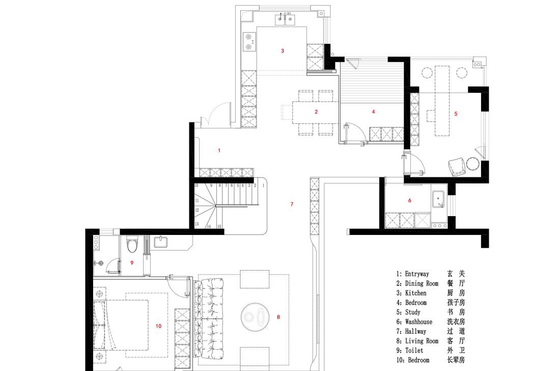
1F
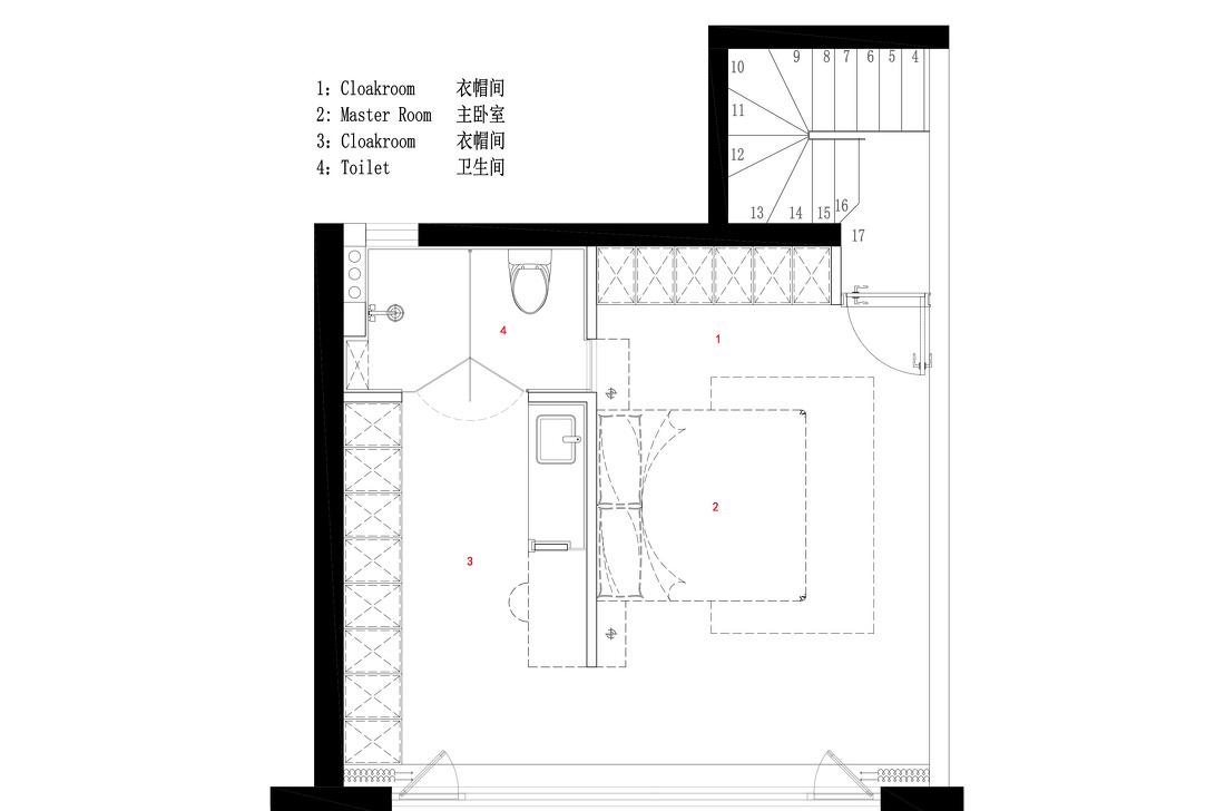
2F
项目信息
项⽬名称 | Pure 纯粹
设计公司 | 履迹设计工作室
项⽬地点 | 浙江•温州
项⽬⾯积 | 175m²
主案设计 | 施强虹
设计时间 | 2021
完⼯时间 | 2022
主要材料 | 木饰面 微水泥 地板 瓷砖
文稿来源 | 橙设传媒
客服
消息
收藏
下载
最近






























