查看完整案例

收藏

下载
本案空间为跃层结构,业主一家四口,追求通透开阔的空间属性,并希望能够依据每个家庭成员的个性表达,进行独立的设计考量。与喜欢的一切在一起,乃人生之幸事。
With Everything I Love
與喜歡的一切在一起 .
我们必须要学会按照本来面目看待事物本身,而不是用人类通过理解的方式,使这个世界客观化。
——李禹焕
本案空间为跃层结构,业主一家四口,追求通透开阔的空间属性,并希望能够依据每个家庭成员的个性表达,进行独立的设计考量。与喜欢的一切在一起,乃人生之幸事。
#01 大胆的开放结构
▲
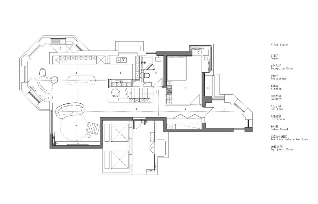
原项目的问题来自南北纵向的长度与宽度间比例的失衡,带来空间视觉上的狭长感。设计师自空间的通透性为目的出发,以功能先行梳理空间布局,重新规划区域间的关系属性。
将南侧定位为外向的公共区域,融合客餐厅间的关系,集中公共活动于此向空间。北侧则被划分为较为私密的寝居空间,两侧空间的关系被打断,则纵向长度被忽视,从而形成开阔的格局感受。
除平面的打开以外,设计非常大胆地将目光落于立面的沟通之上,沿落地窗形成餐厅区域与二层卧室的挑空,引导视线向上延伸。突破常规思维的设计方式,多维度的场景转换,尽可能地让一二层间的互动变得更加立体而有趣。
设计师相信空间的呈现是结构与软装的联合发力,自结构的弧形线条为始,结合曲面的座具、桌面以及导台,在横平竖直的空间中,增加灵动而柔和的场域力量,亦是在视线延伸的过程中,创造优美的弧度,形成韵律般的美感。
#02 贯通的视觉感受
▲
设计以线性空间与几何架构表达区域间的克制与平衡。
通往二楼的楼梯被隐藏于储物柜之后,以半包裹的形式短暂地处理视线的延伸关系。但同时当你踏步而上的时候,镂空的阶梯形式带来光影的重重变换,自缝隙而出,目光落于空间的边角,亦是一种婉约细腻的结构美学。
区域间的功能关系,自结构生发。除楼梯边承载的储物功能以外,部分储物空间被安排于一层的走廊区域,在保证空间舒适度的同时,极大程度地利用可用空间。同时,分散的储物形式也能带来日常生活中的相对便利。
#03 因人而构的空间力场
▲
主卧置于二层南侧,通过落地窗与一层形成互动关系,同时窗外的景亦不被遮挡。
不同寻常的是床体并没有被安排于空间的一侧,而是落于空间的中间,依墙面设置衣柜,床头自然形成梳妆台,空间被利用到极致。
北侧为女儿房,除大面积的留白与弧形元素呼应空间的主题以外,在色彩上运用偏暖的橘黄色调,营造小女孩的生活场景。
考虑到男孩年纪尚小,在成长的过程中需要较为宽敞的游戏空间。
于是设计将儿子房设置于一楼,与一层公共区域相联通,同时紧邻休闲活动区域,保证其在安全的平面空间中,可以得到自由的穿梭与玩乐。
设计师认为,私宅空间的属性应是包容的,不被框架束缚,亦没有既定的规则,是在不断适应居住者本身需求的同时,强调更便利健康的生活方式。
项目名称 | 與喜歡的一切在一起
设计公司 | 温州目后空间设计
项目地址 | 浙江•乐清
项目面积 | 252㎡
项目摄影 | 李迪
文稿来源 | 橙设传媒
设计时间 | 2021.03
完⼯时间 | 2022.05
主要材料 | 岩板、实木、艺术漆、木地板、大理石等
客服
消息
收藏
下载
最近



































