查看完整案例

收藏

下载
小宅设计
Nikita
新作,为一位女学生设计了一套28
㎡
公寓的内饰,她在附近上学,希望有一个平静、明亮的空间,带有斯堪的纳维亚元素,
为生活空间提供了一种清新的方式,强调
舒适的氛围
。
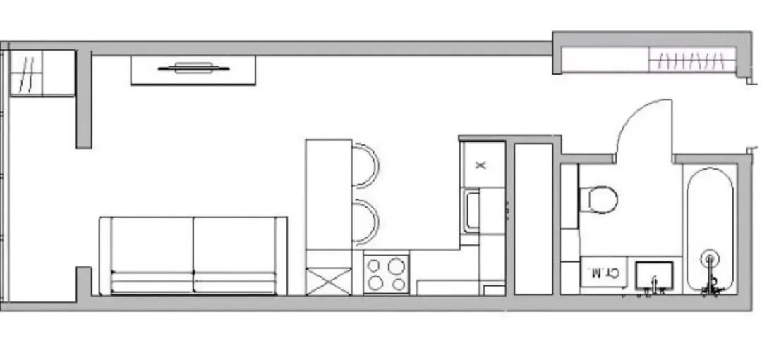
空间布局
▽
开放的布局,容纳一个功能性厨房,有一个用餐区,一张可作折叠床的沙发,一个衣柜,一个走廊和一个浴室,还有一个阳台。在小空间内,最大化利用空间布局,实现多重功能。
浴室(4平方米)明亮空间,
设计师巧妙地将洗衣机放
在卫生间里
,
温暖和舒适结合,实用性和功能性。
每个人可能都需要在家中拥有一个工作空间,在小公寓里理想空间是阳台。
客服
消息
收藏
下载
最近



















