查看完整案例

收藏

下载
居住艺术的延伸就是生活的艺术,是人心中深处的表达和过往生活经历以及憧憬生活的平衡。
家不仅是容身之处,更是自身对于理想生活的具象表达。空间的美,应是自由与感性的,通过场域的营造,以生活片段探求内心的宁静与智慧,让居者感受到真正的归属和满足。
本案充分考虑居者的生活需求和审美品味,重组空间架构,强调居住环境的通透性、连贯性以及视觉的层次感,采用“50%白+30%大地色+20%黑”色彩配比搭配,富有生命张力的黑色材质,增加戏剧性,营造充满平静和现代感的法式空间质感。
玄关区域注重归家的第一视觉和功能性设计,选择黑白艺术砖,与客餐厅的木地板区别开,规划有换鞋凳以及大容量鞋帽柜,保持入口处整洁有序。
拱形门兼具功能性和装饰性的效果,表现出古老的欧洲式的优雅与从容,也增加视觉上的通透感,进一步强化归家的仪式感。
沙发背景墙做拱形收纳柜,增强收纳机能。黑色具有安静沉默的力量,就像时光里的一种自然状态,沉默却不是无言。
靠近阳台飘窗处,做13公分高的地台设计,划分出开放式的书房和孩子的娱乐空间。家是物理层面的固定空间,也是精神层级的心灵场域,是自由、是放空、是静定。
阳光穿过透明玻璃,轻照而下,一束束光,让空间氛围别具静谧的韵味。
原户型,厨房面积狭小,用餐区域尴尬,迫于玄关、卧室以及厨房等空间的过道处,使整体公区动线不便,也无法满足屋主为孩子提供自由玩耍的成长空间的愿景。
设计打破原有空间边界,更改卧室入口,扩宽厨房面积,并将几个生活场景串联,以呈现更合适的空间比例和活动自由场所。客餐厅与书房、厨房贯通,虚实结合的分隔形式,丰富空间层次感的同时,也增加了一家人间的互动与陪伴。
设计充分考虑人与自然、空间的连接,将大自然的美好带入内。阳光穿过透明玻璃,轻照而下,一束束光,让空间氛围别具静谧的韵味。这一切蕴含生活的哲学,从黑夜到白天,从过去到未来,恍若盛开在阳光下的蒲公英,默默地等着微风拂过,然后飞向四方,自由飞翔。
借北卧室部分面积扩充厨房,构建宽敞的烹饪场所,结合中岛台设计,实现多人同时操作,复古优雅的黑白配色,使烹饪环境简洁、舒心又高效。
中岛台与餐桌相连,既可以作为餐桌的辅助,放置饭煲、汤锅等,又能在做饭的时候,提供操作台功能,一边备餐做饭,一边与家人聊天闲谈,促进家人之间的情感交流。红棕色的融入,昭示欢聚时光的幸福。
色彩作为视觉的第一印象,影响着人们生活与心理的感受。淡浅的湖蓝色,营造卧室高级感的同时,给人静谧,清爽和舒缓的感觉,而黑色具有使人安定的魅力,愉悦的休憩场所,令人安然入睡。
低饱和色调的织物、自带松弛感的编藤元素以及略带侘寂风的灯具,使空间气质素雅之余又多几份复古肃静感,贴合长辈的品性。
百叶帘增加了自然古朴的氛围,携手治愈光源辉映成趣,不同维度的美,将丰盈居者的精神世界。
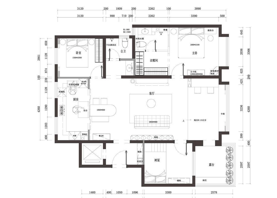
一层原始平面图
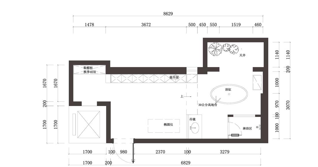
下跃层原始平面图
一层改造亮点:
①玄关整体为奶油色,玄关设置换鞋凳,方便穿鞋,鞋帽柜,方便把秋冬大衣进行收纳,避免玄关空间凌乱。
②客厅壁挂电视柜,方便打理,整体硬装风格轻法式,沙发后整体定制柜,增加储物。靠近阳台设置地台,为开放书房功能,方便主人办公,以后孩子的娱乐区。
③厨房结合中岛台设计,黑白配色,时尚简约,构建愉悦宽敞的烹饪场所。
④父母房墙面法式线条加软件装饰营造法式复古风格。
⑤儿童房,树屋设计,童趣又兼具实用性。
⑥卫浴室洗手台外置,卫生间干区墙面120*120手工砖,马桶间,壁挂马桶,上门设置储物柜,方便取用卫生用品。
下跃层平面图
效果图
效果图
效果图
效果图
效果图
效果图
效果图
效果图
效果图
客服
消息
收藏
下载
最近



































