查看完整案例

收藏

下载
基于当代人生活方式的思考,沿着主人的美好喜好延伸表达,将休闲、度假感、自然、舒适交融呈现,无论建筑、景观、室内,构建家的每一处生命力和时间痕迹,流露出东方的惬意自然之美。
通过重塑布局空间动线,留有可呼吸对话的空间,在空气流转中,生活便自然唤醒。真水无香,真爱无象,真情无声,把空间交还给生活。
简明却更丰富,它来源于居者的感知和度量,以及空间与思想达成和谐一致而引发的情感共鸣。
保持生活的温度,通过原始本质的材料,恬适安谧的空间氛围,创造出契合居住者本身,温暖的质朴空间。
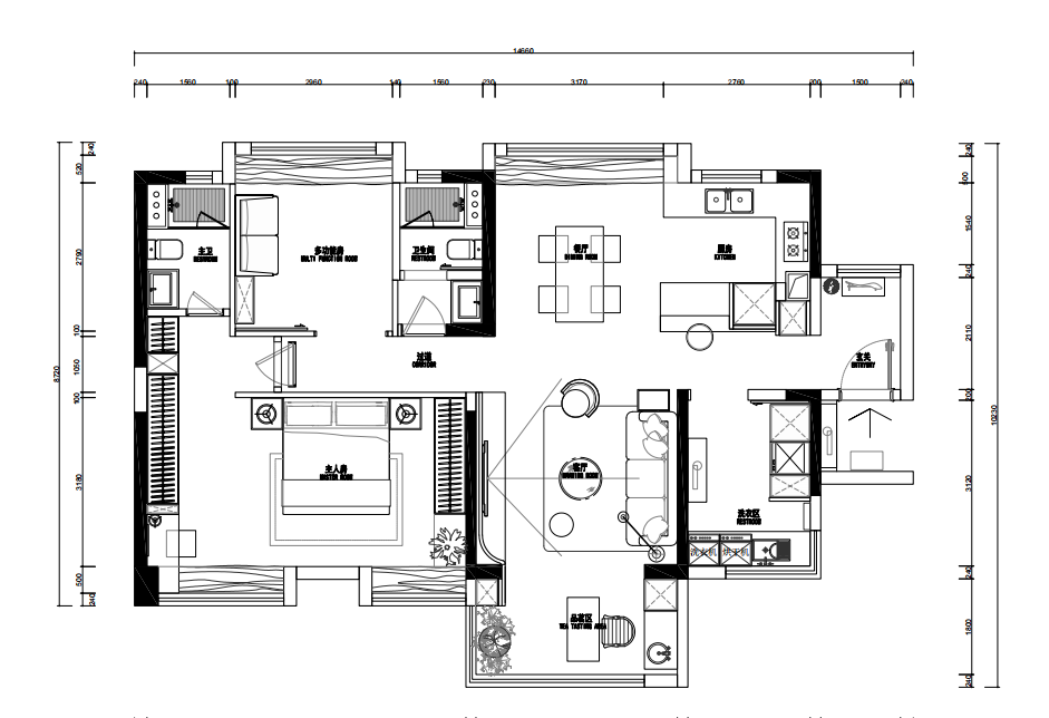
玄关处设计了「落尘区」,独特的木纹花色从顶部追下带来强大的视觉冲击,立体丰盈层次,希望透过细节能表达建筑本身,这里可以随着四季变化而更迭,呈现出不同的仪式或生活痕迹,尽显雅致。
隐于生活、归于生活,从入户到家,专属自己的私人空间属性,真的太舒适了。
人与景的交互,在空间体块与柜体设计上也暗藏细节,窗边的阅读角落、一些怀旧单椅、有趣的艺术品,动态的景观总能让人安静沉迷……
曲线创造灵动的柔美形态;纵横之间的双向延展,实现空间的宽敞与开放,调和人的情感与空间的情绪。
最高阶的空间设计,犹如爱,是持续自然调频的,亲密时无间,独处时尊重,懂得分寸、持守尺度,克制而长足的温和。
极简的室内线条,温润的橡木饰面,没有过多复杂的装饰,进入其中的一刹那,一种纯粹景象便把人拽入平静、释然的精神世界。
设计师认为这是家庭中最温馨、最打动人心的时刻。在这一瞬间,空间仿佛与情景进行着深刻的对话,人心也因此找到了扎根的平凡理由。
一天之中的不同时刻,我们似乎都在等待空间与光接触的瞬间,色也因此有了彩,这种神秘却又有迹可循的变化令我们着迷。
情感被光包裹的片刻,是我们与外界纷扰的抽离,精神归于平静。这是简单普遍的形式,却是不可替代的特殊存在。
在选材方面,设计主要采用了带有自然的、浅色和米色色调的材料,温和的木饰面让空间内敛沉稳。
阳光透过,勾勒出宁静而协调的氛围,使人在这里感受到舒适和宁静。空间进一步注入了亲密和温暖,甚至带有一丝自然而戏剧性的氛围。
生活如同冗长的回声,柴米油盐酱醋茶,一切归于平淡。一家人围坐在餐桌旁,灯光柔和地洒在食物上,彼此分享着一天的收获与感悟。
木色润泽,光影间自然色调的微妙变化将空间的柔性点亮。家之意义,便是在万千浮华之后有一方归处。既身归,亦心归。
一旁的茶室空间,业主用于冥想舒适的所需,家是每一个人的情感港湾,在奔忙的最后,回归这一碗人间烟火,平凡生活。
利用走廊的角落,保留了天窗的使用,让原本昏暗的走廊得以提升,光感舒适。
安静的质感,常常不露声色地还原自然意境,叠搭起来,即可呈现空间的从容与悠然,独立存在,便以上乘的艺术号召力丰富生活情调。
质感演变的过程也是空间转场的过程,两者通过吻合的审美基调,阐明内敛的高贵气质,带人回归本真。
讲究质感的设计,善用昙花一现的美造就隽永的时光印记,赋能生活质感与乐趣,扩充空间表情和精神内核。
通达的栖居体验,让采撷细微之美的敏感度渐升,质感在其中保持令人耳目一新的态度,描摹深邃图景,转译心情,交融浪漫。
拒绝繁复,于简单里挖掘巧思,是设计语言,亦是生活态度。
客服
消息
收藏
下载
最近
























