查看完整案例


收藏

下载
项目位于南京新区商品房底商,快速造城运动导致的文脉困惑,与酒吧是基于对西方文化的空间想象,有着某种本质的暗合。不满足于空洞的布景,让我们决定从内部入手,塑造项目的核心精神场域。
The project is located at the community business of commercial housing in Nanjing New District. The contextual confusion caused by the rapid city-building movement has a certain inherent coincidence with the spatial imagination of the bar based on Western culture. Not satisfied with the empty scenery, we decided to start from the inside and shape the core spiritual site of the project.
▼沿街立面,the facade along the street © Ingallery
▼主入口,the main entrance © Ingallery
空间的显学 The Transparency of Space
酒吧的焦点永远是吧台,平面上轴心布局U形吧台,垂直轴线便是酒墙。拆除两间商铺单元的楼梯,形成了中心区域的局部通高空间,让一种精神象征空间成为可能。人字坡顶的置入,让空间在剖面上形成切割、贯穿与赋形,是空间的显学。成型之时,突然感觉一种类似筱原一男的象征空间,创造了一种空间深度。
The focus of the bar is always the bar counter. The U-shaped bar counter is arranged on the axis in the plan, and the vertical axis is the wine wall. The stairs of two shop units were demolished to form a double-height space in the central area, making it possible to create a spiritual symbolic space. The placement of the herringbone roof allows the space to form cuts, penetrations, and shapes in the section, which is the transparency of space. When it was shaped, I suddenly felt a kind of space similar to Kazuo Shinohar’s symbolic space, creating a kind of spatial depth.
▼门厅,lobby © Ingallery
▼主吧台,the main bar counter © Ingallery
▼客座区,the guest seat area © Ingallery
▼中庭,the double-height space © Ingallery
空间的隐学 The Ambiguity of Space
酒吧的时间永远是夜晚,当夜幕降临,只有灯光可以照亮和重塑空间。灵感来自于詹姆士・特瑞尔的艺术创作,空间可以是光的装置艺术。渐变灯光膜让光成为一种弥散介质,模糊了真实空间,类似酒精的致幻作用,带来感官放松和快感。此时,空间仿佛失去了物理深度,去往纯粹且抽象的精神世界,这便是空间的隐学。
The time for the bar is always night. When night falls, only light can illuminate and reshape the space. Inspired by the art of James Turrell, space can be an installation art of light. Light membrane allows light to become a dispersing medium, blurring the real space, similar to the hallucinogenic effect of alcohol, bringing sensory relaxation and pleasure. At this time, space seems to have lost its physical depth and has gone to a pure and abstract spiritual world. This is the ambiguity of space.
▼空间剖面,the cross-sectional view © Ingallery
▼水波纹不锈钢,water corrugated stainless steel © Ingallery
▼灯光膜,light membrane © Ingallery
▼灯光装置,installation art of light © Ingallery
我们一直在探索空间的可能性,从场所、时间、材质等去探讨空间的本质。如果说Farvahar Lounge是一种新的尝试,灯光可以是一种语言,诉说了酒吧文化在这片土壤的新精神。
We have been exploring the possibilities of space, exploring the essence of space from site, time, material, etc. If Farvahar Lounge is a new attempt, lighting can be a language that tells the new spirit of bar culture in this site.
▼二层空间,the second floor space © Ingallery
▼次吧台,the secondary bar counter © Ingallery
▼VIP室,the VIP room © Ingallery
▼空间的隐学,the ambiguity of space © Ingallery
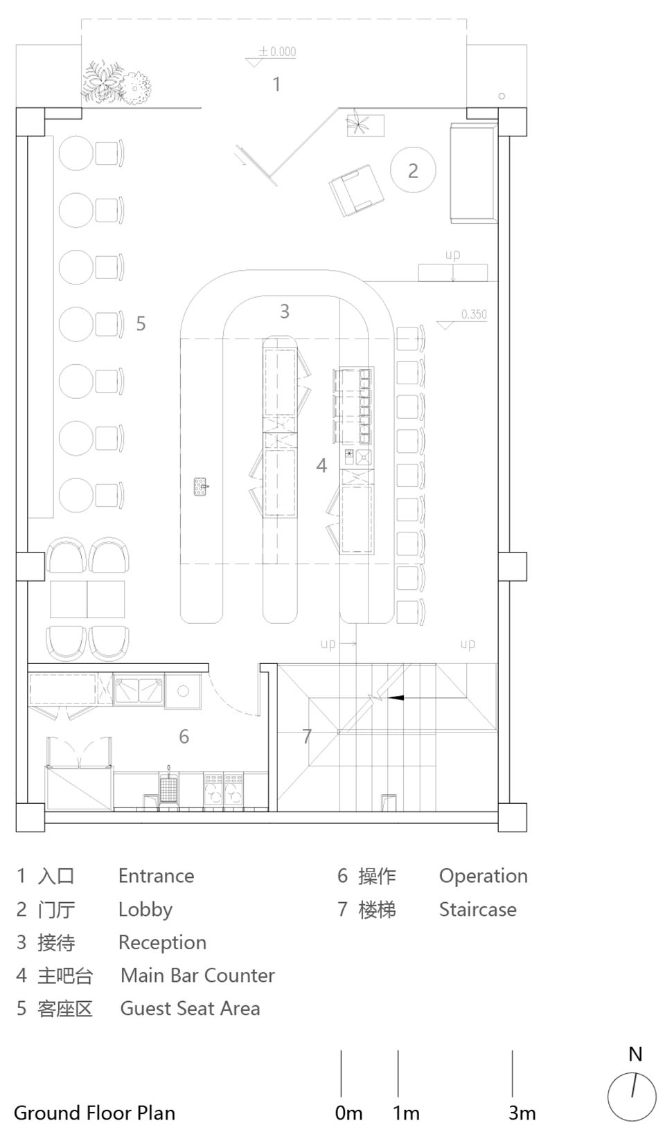
▼一层平面图,ground floor plan © 悦设空间设计
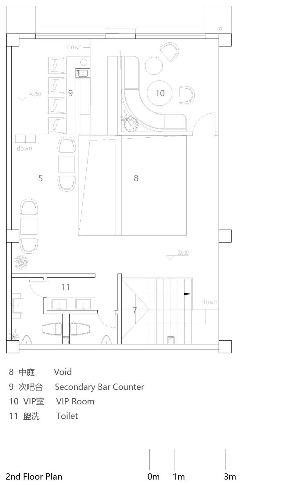
▼二层平面图,2nd floor plan © 悦设空间设计
项目名称:Farvahar Lounge酒吧 设计公司:南京悦设空间设计 设计主创:常辰 照明顾问:光维设计 绿植景观:植地雅栽 设计时间:2023.7-2023.12 施工时间:2023.9-2023.12 项目地址:定康街40号,南京 建筑面积:200㎡ 摄影版权:Ingallery、马杰睿、栖则 主要材质:玻璃砖、发光软膜、水波纹不锈钢 品牌:光维、沭然、奥妙
Project name: Farvahar Lounge Bar Design company: Yue-Design Space Design Studio Leader designer: Chang Chen Lighting Design: GW Lighting Design Space Plant Design: Zhidi Yazai Design period: 2023.7-2023.12 Construction period: 2023.9-2023.12 Project location: No.40, Dingkang Street, Nanjing Project area: 200㎡ Photo credits: Ingallery, Jerry Ma, Qi Ze Main material: glass brick, soft film, water corrugated stainless steel Products used in the project: GW, Shuran, Aomiao
客服
消息
收藏
下载
最近


















