查看完整案例

收藏

下载
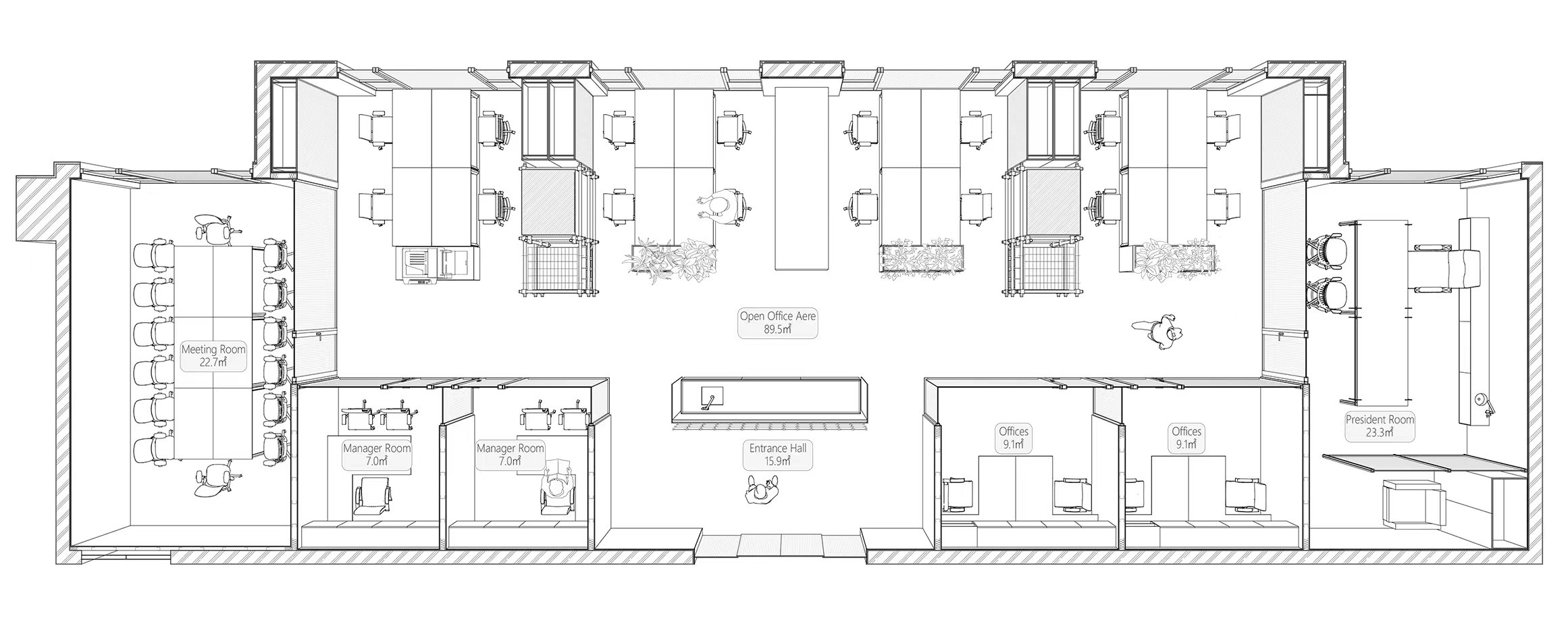
本案是著名进口建材公司中国西北区域经销商的后台办公室。
作为岩板领域领导者,客户希望设计和建造新的工作空间生态系统,
其身份是一个创新和国际化的场所,并散发出创造力、灵感、魅力和可持续性。
HE-AN DESIGN创造了一个充满光线和单色的办公空间,与工业美学产生共鸣,但仍要保持温暖舒适的可持续办公环境。
将传统的、平庸的材料通过在与之冲突的环境中加工和使用而具有新的价值,
并赋予内部一种抽象的、临时的特征,故意留下使用、挪用和未完成的想象空间。
环境和人的关系共存并持续进化。通过裸露建筑基底和工业化的元素融入,
模糊未完成的留白和高完成度细节之间的边界。装修完成只是办公环境进化的开始,通过设计源源不断的提供工作驱动力。
为了实现低成本,短周期的装修任务,确保细节的完整性,HE-AN DESIGN高度参与品控和施工过程,
实施创造性的施工解决方案,确保设计意图同时保证项目在可控预算内按时完成。
从系统分区到开关插座等入微细节,将这些不同的层次关系融合在一起,创造出一种非常别致的工作氛围。
定制设计的构架系统实现了开放性和视觉连接,并打破了办公室单一表情。
无处不在的金属、定制构件、混凝土预制体、裸露的天花和原始墙面等与工业制造过程呼应结合。
客服
消息
收藏
下载
最近

































