查看完整案例

收藏

下载
“形式服从功能。” --路易斯·沙利文
·
"Form follows the function." -- Louis Sullivan
空间与艺术的本身都需不断地探索,透过本身去看本质。而对木作最好的诠释或许便是承载着匠心工艺的传承。
▼丨起·S
ince
基于功能
始于形式
一帘入境,透过镂空望去,内部结构若隐若现。石·木·火多元化碰撞,为门面设计彰显不凡气质。
踏入玄关,四面墙体环绕好似闯进一处迷宫,秘不可测。侧光打入将路线重启,一场空间与艺术的碰撞即刻启程。
缓缓步过,将一缕缕光顺势轻洒,所映之处将木作纹理纤毫毕现。
▼丨承·B
Bearing
与木作相当
茶室融于其中
承载着至极至美之意
曲径通幽之时,木饰格栅为空间渲染着神秘之感,茶室弥漫而出的气息成为路引。进入茶室,精炼的线条感亦为空间增添着几分灵动。
承接着茶室回眸相望,雾化壁炉在身后燃起“火焰”,藏于玻璃身后的木作也在光线下熠熠生辉。
餐厅区域以新时代的标志映入眼帘,透光石与岩板相辅相成,光面烤漆板与玻璃材质的通透彰显饱满生机。
▼丨转·Turn
辗转中
空间变幻
明暗折射逐步交替
廊道空间融入光面设计,木作与玻璃的糅合萃取出流传的经典与现代的前卫。
继而向前,客厅展示区将设计融于功能,无论工艺或是形式都使得空间充满层次与呼吸。
水泥空心砖垒砌而成的墙体洋溢着秩序与力量,无形之中,空间美学别具一格的气质在此悠然浮现。
▼丨合·Join
匠心永恒,是终点,亦是起点。
置身廊道空间,深古铜色不锈钢与浮雕玻璃的加持,将暖光嵌入,空间结构张弛有度。
兜兜转转间,当双门面设计玻璃的清冷遇上木作的暖意,强烈的反差感又将迸发出怎样的奇幻之旅呢?
原始结构图
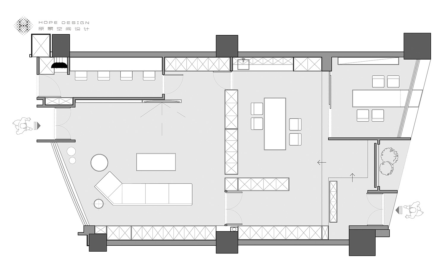
平面布置图
起承转合
一切皆是未知
关于木作匠心传承的探索之路
慢慢亦漫漫
项目信息
设计地址丨深圳·罗湖
项目名称丨一家神秘的木作展厅
项目设计丨原景空间设计
客服
消息
收藏
下载
最近




















