查看完整案例

收藏

下载
把家装扮成自己喜欢的样子,在自己的节奏中过好生活
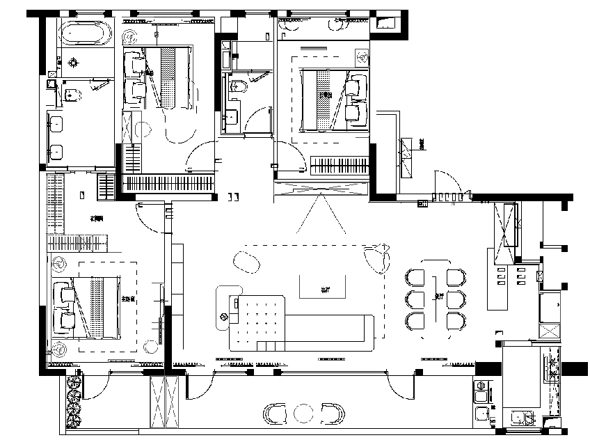
面积 Area : 188m
风格 Style : 现代黑白灰
户型 Type : 三室两厅两卫
精装设计
:
Design type
类型
时光里全案设计
:
Design type
团队
金茂府
:
Address
地址
很喜欢北野武的一句话:“虽然辛苦,我还是选择滚烫的人生。”
作为一个具有社会属性的人,生活中总是充斥着各种各样的工作和问题。忙是常态,但是要从忙碌的生活中寻找独属于自己的那份热爱和力量却是不易的。也许最好的生活就是,忙而有度,闲而有趣,在琐碎的日子中想办法取悦自己,一日三餐虽然简单,却是踏踏实实的幸福。
家装也是如此,一个小而温馨的家,简洁高级的装饰品,下了班买一束花,阳台上晒晒太阳,得空与家人,朋友在家中饮茶聊天,实属生活中独一份的闲情雅致。金茂府的钟哥和静姐也期望这种简单的快乐,装修便是另一个新生活的开始,他们
对家装设计也有着独特的审美追求,“精致,舒适,个性,时尚”是他们对于新家的定义。
设计思路分享
石材 \ 大理石 \ 木饰面 \ 木地板 \ 墙布
现代\简约\大气
玻璃 \ 皮质 \ 大理石 \烤漆 \ 棉麻布艺
现代\品质\酷雅
主卧
Master bedroom
简明的线条和色彩的组合,让空间更加开阔,舒适,室内多采用黑白灰为底色,以简要的装饰物为基底,并且以简要的装饰物品制造出一种平衡和谐的视觉效果,黑白色让空间更有深度,白色和浅灰色让空间更加明亮。
儿童房
Childern's room
儿童房的整体色调是偏奶茶色的白,进门是一个定制衣柜,大收纳设计,可以存放四季的衣物,床头的靠垫,贴纸和书桌中间书架颜色都采用了蓝色做点缀,迎合小男孩无限探索世界的心理。
客房
Guest room
客房主要以灰白色空间为主要基调,米白色的床品,四周用简约的黑色条纹做点缀,搭配奶茶粉的靠枕,阳台表面采用白色大理石饰面,加上不同材质的装饰品相呼应,整体视觉十分和谐与统一。宽大的窗帘赋予了较好的采光,想象一下,微风带动窗帘微微拂过脸颊的感觉,是不是会有些许的睡意来临?
客厅
Living room
客厅主要以黑白灰为主调,彰显朴素大气之美,白色电视墙,黑白沙发,用小部分蓝色和绿色做点缀,使整个空间更加简洁。灰色地砖通铺搭配浅灰色地毯,呈现出鲜明的层次感和节奏韵律。沙发于大横厅居中放置,打造流畅精简的
洄流动线。
餐厨区
Kitchen
岩板餐桌搭配高级灰的皮质餐椅,黑色的无把手储物柜,放置潮流玩具,格调简直拉满。餐厅吊灯下拉,不仅能照亮食物,还让餐厅更加高级简约。
阳台区
Balcony
Before
and
After
同角度软装前后对比照
软装进场前后对比真的好明显!搭配合适的软装才能真正打造一个温馨的家~
软装清单
客服
消息
收藏
下载
最近


























