查看完整案例

收藏

下载
以轻简向生,以简驭繁。
晴山设计团队
01UPWARD STRETCH
向上延伸
构建法则
从原有建筑结构进行思考,将 1-3 层的空间打通,通过弧形楼梯的蜿蜒向上延伸,将空间有效的串联起来。
从内观,空间与空间形成互动;从外看,弧形楼梯成为展厅的符号。
P. 01
P. 02
P. 03
P. 04
把自然光引入室内,透明玻璃打造通透性视点,室内架构清晰而呈,打破内外界限,给人直观的视觉享受。
P. 05
P. 06
02POINT TO AREA
以点带面
构筑形体
空间形式上延伸的张力,需要温和建构法则,以点带面,将柜体与家具相融合,展厅场景亦居所环境。
P. 07
P. 08
空间融入柜体,直线与横线相交,穿插于空间各处从而搭建空间秩序。
柜体的体块与家具进行解构与融合,形成更具生活结构化的场域,在空间里,以形呈意彰显博领品牌基因。
P. 09
P. 10
P. 11
• 03
BUILD LINKS
产品空间
搭建链接
室内空间并非是独立存在,将其视为建筑空间的向内延续,将故事与产品诉诸于室内空间之内。
以整体空间形式进行宣发和深化,让观者对产品有所感触,从而“居住空间”成为情感寄托的有形载体,这是家的真正意义。
P. 12
P. 13
P. 14
P. 15 以产品与空间之间的链接,以此消解各区域的边界感,构筑出生活居所美学。
一刚
让厨房成为既是相对独立的功能场域,也可以是灵动的中心区。
P. 16
P. 17
• 04
TEXTURE PRESENT
质感呈现
有效表达
以简洁的线条、块面的叠落来演绎空间构成关系,空间多处运用不同材质的碰撞,强调细腻的变化对比,大面积木纹纹理与无机石材的混搭应用,纯粹、自然。
P. 18
P. 19
P. 20
P. 21
二层的金属展示柜,有着极致视觉张力感。运用构建手法,塑造出独特的空间架构。
烟熏色的方木块,以精巧的方式穿插排列,而内嵌的灯带则以柔和的灯光为每一件藏品打造出独特的展示效果。让就餐空间更具艺术性,突突显产品的质感。
P. 22
P. 23
P. 24
P. 25
流动的旋转楼梯打破秩序的边界,联通上下三层的空间关系。
设计师希望在流动的动线中空间拥有更多探索的可能,将理性与感性交融,形成自我与彼此的合鸣。
P. 26
P. 27
• 05
DESIGN CONCEPT
设计理念
品牌空间
品牌向外界传达产品理念的方式,不仅是广告宣传,更是通过展厅构筑家的“温度”诠释其时间沉淀后的品牌内核理念。
P. 28
P. 29
P. 30
做生活的观察者,透过建筑空间去探索生活美学,让人、物件与空间存着无限互动。让观者在其中感受到舒适、自由和宁静,从而找到内心的平衡与和谐。
P. 31
P. 32
• 05
ANALYSIS
DIAGRAM
分析图
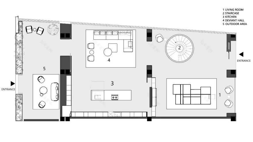
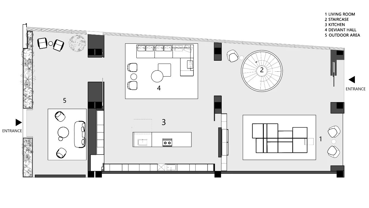
外立面 P. 33
滑动查看 1F 2F 3F 平面图 P. 34
INFO
- 项目名称 -
PLAIN HOMELAND
博领家居总部展厅
- 设计机构 -
CHANGE DESIGN
晴山设计
- 室内设计
苏妙慧 叶承坤
深化设计 -
刘美仪
装置陈列
黄子珊 陈叶桦
- 项目面积 -
900㎡
- 项目地址 -
广东 佛山
- 项目摄影 -
覃昭量
DESIGN COMPANY
CHANGE DESIGN 晴山设计成立于 2022 年,坐落于中国佛山。以改善城市人居环境为理念,汇集优秀室内设计师、视觉设计师和建造工程师,擅长展厅、会所、私宅等各类空间的设计和场景打造。团队始终保持国际化的视野和设计创新力,主要有三大业务板块,分别是:室内设计及施工、软装设计及实施、品牌策划设计及运营。基于对当下空间功能需求和艺术美学的研究,通过设计,在更高的层面上提升空间及品牌的综合价值。
客服
消息
收藏
下载
最近







































