查看完整案例


收藏

下载
Yue shan Mansion 阅山 X 碧海 YUESHANBIHAI Be hai yun tianVilla 广州之南,古为香山,岭南府邸,毗邻狮头山,群峦环抱,寻自然野逸。广州之东,文溪为界,珠江莞城,面朝狮子洋,依水而兴,择雅岸而居。H DESIGN 与佳兆业合作,从当代年轻客群的独特性出发,在中山、东莞两地,打造【阅山府】与【碧海云天别墅】两处大隐隐于市的简奢居所。融合“见山”与“临江”的核心概念,以迥然不同的地理方位将山水“重组”,翻开自古理想人居中“依山而居”与“傍水而栖”的生活模式。O1 琴音乐山 样板间 145 户型丨prototype room
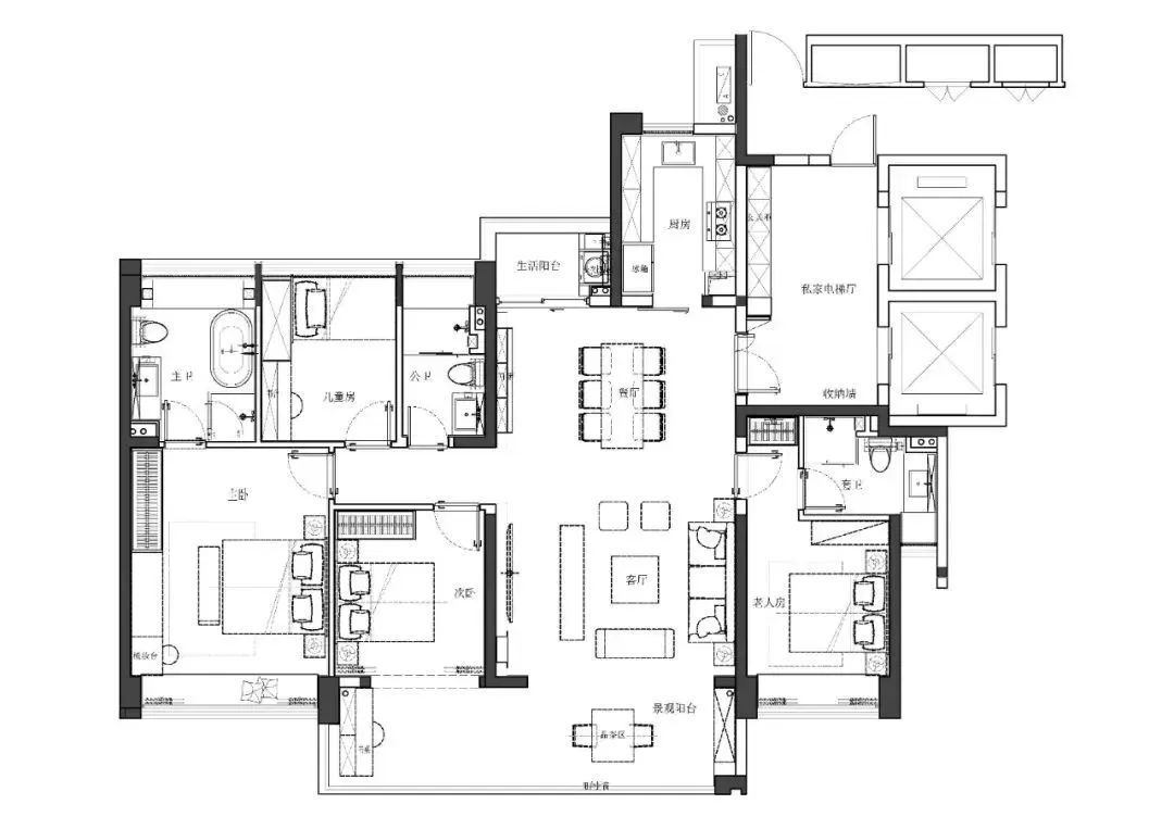
悦山府 145 样板间以三代之家的双层户型为蓝本,“会客琴房”与“健身阳台”的设定,塑造以屋主兴趣为主导的多功能居住空间。悦耳的听觉与赏心的视觉联动,有什么空间比情感流动的空间更加迷人呢?
留白成为整个空间的精神基调,大量的情绪得以在自由中抒发。会客厅作为整个户型的灵魂,在设计师对艺术雅趣的高度概括下进行。柔和的曲线被合理地穿插、安排在这个方正的空间中。曲面电视墙与吊顶作为过渡,打破原始结构柱的生硬,赋予空间流动感。
半包对角移门的设置,给予厨房空间可封闭、可开放的组合选择。柔光砖的地面、灰木纹的石材以及素色的烤漆板将餐厨与会客场所的调性统一。
“住宅的物质空间是人精神世界的外化”,象牙白、青绿、藕色,营造出富有 vintage 韵味的家居质感。
一层以客餐厅为主,二层是卧室等偏私密的空间。针对不同使用需求,主人房、长辈房、儿童房呈现出不同的“性格特征”。
长辈房以翰墨书画为主导,黑白色床品与粉墨装饰画呼应,深色金属线性灯可调整光源方向,为阅读提供便利。
主人房将景观优势发挥得无以复加,所谓“目既往返,心亦吐纳”。夜晚,回到幕后自己的内心世界,坐于飘窗,斟一杯酒,背靠群山,任云卷云舒。
儿童房从二层一侧“探出”,带着孩子在丛林中“探险”。恐龙形态的装饰柜别出心裁,热带雨林图案的壁纸饶有童趣而不失其空间调性。
一层面积:79㎡
二层面积:64㎡
*左右滑动查看更多*
项目地址:广东中山
设计范围:硬装设计
设计团队:胡坤、李敏宜、张敏、黄启伦
陈设设计:深圳市朴悦设计顾问有限公司
施工单位:深圳景源达建设集团有限公司
摄影:艺间坊建筑空间摄影
O2 笔绘丹青
样板间 165 户型丨prototype room
165 样板间以“有艺术爱好的三口之家”为设定,相较于 145 样板间的素净,该户型在简约的基础上更具活跃色彩,灰雅空间中暗橙色家具的加入,呼应了我国古代绘画艺术“丹青”中常用的“朱红和青”二色,也使其成为汇集轻奢与典雅的精华。
一户一梯的设置,使私人电梯厅兼具玄关功能,玄关柜与换鞋凳实现功能的融合,洞洞板收纳立面中陈列精致户外工具,颇有即将出门登山的动态感,也彰显了屋主热爱野奢,将荒野的魅力同奢华的享受相结合的生活方式。
会客厅通过白色大理石岩板和赭红壁炉的丹青手法隔断空间,大面积木饰面奠定温润底色,跳跃的暗橙色家具如红日落霞,串联餐客厅空间,西厨操作台结合立面置酒柜丰富餐厅功能性。
阳台的茶艺空间以黄铜及白色岩板作为主要的装饰材料,透着空间的典雅与高贵。远处的山景跃然于茶桌旁,一缕茶香飘过令人心醉神迷。
缓歌弦,停酒斝,待得香风吹下,独特的香水研究室体现出女主人的业余志趣,这处空间的主角不是视觉而是嗅觉。素色的木饰面陈列柜弱化载体,既不喧宾夺主,又让视觉暂缓,丰富而精致的各色香料容器以及蒸馏工具为空间带来了浓烈的专业气质。
卧室采用大面积的暖色调装饰,如赭色的皮革床、皮革凳以及茶色的复古台灯,给人以温暖。禅意浸润,可静心弦,笔墨尽头,更见功底。木制拐杖,奢侈品的老花手套挂件以及丝巾,略带年代感的黄铜的吊灯,胡桃色的壁挂模块让整个卧室透着高贵以及豁达的深沉。
项目面积:131㎡
-平面图-
项目地址:广东中山
设计范围:硬装设计
设计团队:胡坤、李敏宜、张敏、黄启伦
甲方单位:佳兆业湾区发展有限公司
陈设设计:广州市欧镱装饰工程有限公司
施工单位:深圳景源达建设集团有限公司
摄影:艺间坊建筑空间摄影
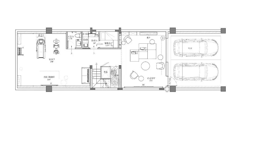
O3 碧海云天别墅㎡丨villaroom
碧海云天别墅的负一空间,这里像是个赛博俱乐部。入口以“赛车与电竞”为主题,布满整个空间的蓝色氛围灯像是光之碧海,大面积用来放置手办的柜体,充满艺术感的沙发如同绿洲小岛,将整个空间的潮流属性推向顶峰。
行至一层客餐厅处,大面积的暗色玻璃酒柜,浅灰色的大理石地面,黄铜质地的灯具及装饰椅脚在色彩、材质、肌理上进行着高贵优雅的探索。装饰画的画框作银幕布景设计,彰显屋主对艺术的品味。白天从这里离家,展开一天的“剧情”,傍晚回家,回到“幕后”的世界。
客厅延续了戏剧性的空间调性:仿佛《教父》中的经典场景,深胡桃木色的墙面搭配皮质座椅,彰显身份的同时体现出厚重的质感。木格栅板以及黑色的金属材质壁柜给人以奢华的黑金气质感受。
挑高的活动厅采用大面积岩板饰面,犹如一张巨幅的山水画,方形的围合立面与弧形沙发形成了鲜明的对比。这里可以是摆放艺术品、书籍、玩具的“小黑屋”,也可以是夜晚与好友长谈,听歌,喝酒的会客室。
车库和健身房则采用工业风的设计语言,线性灯和大面积的发光立面设计营造出无限动感和力量感。
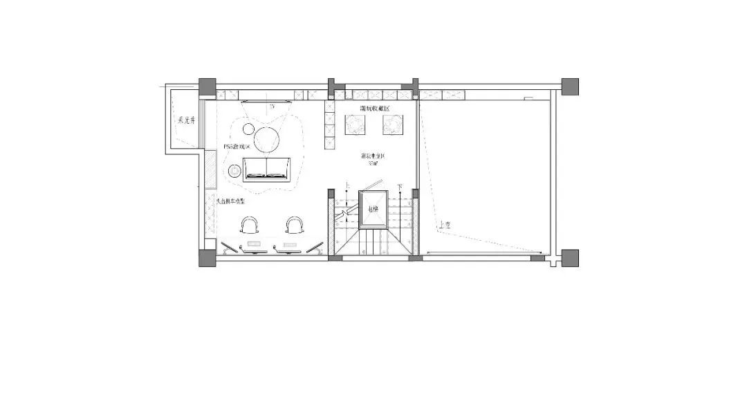
卧室的设计极尽优雅与古典,素色的扪皮饰面与灰胡桃色的木饰面将空间渲染成了一种高品质的灰色调,搭配上铜灯以及古典的画框形成一处极富高级感的空间。
户外庭院采用了较多的弧面设计,融入了包括水景在内的各色园林景观,与整体建筑立面相互辉映。木栅栏将墙的概念弱化,封而不闭,隔中有通。抬头看天,白云和叶子一起在院中生长。隔耳听海,楼上的欢声笑语与涛声一道涌来。
客服
消息
收藏
下载
最近

















































